One Devonshire
1 Devonshire Road
S$ 3,600,000
5
Beds
3
Baths
1,195
sqft (floor)
S$ 3,013
psf (floor)
380 m (5 mins) from NS23 Somerset MRT
About this property
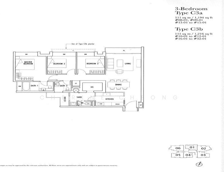
Freehold D09 5BR $3.6m High Floor $9.5k Rent (3.2% Yield) Min to Mrt
**THE UNIT**
* **Rare 5-Bedroom Layout:** Thoughtfully reconfigured from a 3BR to 5BR, maximizing utility and rental potential.
* **Size:** 1,195 sqft of efficient, usable space.
* **High Floor:** Bright and airy with an unblocked, serene pool view.
* **South Facing:** Preferred main door orientation (South).
* **Garden Living:** Located on a unique "Sky Garden" floor—perfect for alfresco dining and a tranquil lifestyle.
* **Functional Spaces:** Includes a balcony and a separate maid’s/utility area.
**INVESTMENT POTENTIAL**
* **High Yield:** Currently tenanted at $9,500/mth, offering a robust ~3.17% gross yield (rare for Freehold D09).
* **Flexibility:** Available for sale with tenancy (immediate income) or vacant possession for own stay.
* **Capital Growth:** Freehold tenure in the heart of District 9 ensures long-term value retention.
**UNBEATABLE LOCATION**
* **Walk to MRT:** Only a 4-minute stroll to Somerset MRT (NS Line).
* **Lifestyle & Amenities:** Minutes to Orchard Road shopping belt, Killiney Road eateries, and 24-hour FairPrice Finest.
* **Prestige:** One Devonshire is known for its iconic 7-themed sky gardens and full-scale facilities.
**FINANCIAL SUMMARY (Guide Only)**
* **Asking Price:** $3,600,000 (Negotiable)
* **25% Downpayment Required:** $900,000
* **Potential Monthly Rent:** $9,500
* **Estimated Gross Yield:** 3.17%
* **Estimated Return on Equity (ROE):** ~9.6% (Based on standard leverage)
**FULL CONDO FACILITIES**
50m Lap Pool | Tennis Court | Basketball Court | Golf Spa | Gym | BBQ Pits | 7 Unique Sky Gardens | Clubhouse
---
Rarely available 5-bedroom configuration in this stack. High floor units with this rental profile move fast!
Call/WhatsApp Cherine Cheong (Asset Progression Strategist) @ 9***** for an exclusive viewing or a detailed financial breakdown today.
Amenities
Air conditioner
Balcony
Barbeque pavilion
Barbeque pits
Common facilities
24 hours security
Barbeque pits
Clubhouse
Covered car park
Affordability
Tell us your monthly income and expenses to see if this home fits your budget.
One Devonshire

One Devonshire is a distinguished freehold condominium located at No. 1, Devonshire Road, 239896, in the highly desirable Orchard / River Valley area of Singapore. Developed by Devonshire Peak Pte Ltd, a subsidiary of Allgreen Properties Ltd, this modern development was completed in 2012 and comprises 152 residential units. One Devonshire offers a selection of three-bedroom units with three bathrooms, catering to various residential preferences.This condominium development is notable for its contemporary architecture and unique 7-sky-gardens concept, each with its theme, creating a tranquil and refreshing environment. Residents also enjoy the convenience of a basement car park, along with communal amenities like a clubhouse, swimming pool, and tennis court, making it a well-rounded residential choice in a prime location.One Devonshire's prime location in the Orchard / River Valley area provides residents with exceptional connectivity to the Central Business District (CBD) and major expressways. It offers a comfortable city lifestyle with top facilities like a swimming pool, jacuzzi, and a well-equipped gym.What makes One Devonshire special is its 7-sky-gardens. These themed gardens create a peaceful escape within the busy city, giving residents beautiful green spaces to relax and unwind. The mix of nature and modern design makes it an excellent choice for anyone looking for a stylish yet calm home in one of Singapore's most popular areas.One Devonshire enjoys outstanding connectivity and easy access to public transport and major roads. The condominium is within walking distance of three MRT stations: Great World MRT Station (TE15), Somerset MRT Station (NS23), and Orchard MRT Station (TE14). This provides residents seamless access to different parts of Singapore, including the business and shopping districts.For residents who drive, One Devonshire has easy access to major roads like River Valley Road and the Central Expressway (CTE). This makes travelling to important places quick and hassle-free, usually taking less than 10 minutes. The vibrant neighbourhood of Devonshire Road further enhances its appeal, as it is just minutes away from Orchard Road, a dynamic shopping and lifestyle hub featuring top-tier retail stores, dining establishments, and entertainment options.One Devonshire has many great facilities to make life more comfortable. There are spaces for relaxing, staying active, and spending time with family and friends, giving residents a well-rounded living experience. The development features:Barbeque AreaCovered car parkClubhouseFitness cornerGymnasium roomJacuzziMulti-purpose hallPlayground24-hour securitySquash courtSwimming poolTennis courtsThese well-planned facilities make life more comfortable, giving residents a modern and convenient living space. Everything is designed to create a smooth and enjoyable lifestyle.Families residing at One Devonshire have convenient access to several choice educational institutions, making it an ideal location for those with school-going children. Schools near the development include:Anglo-Chinese School (Junior)River Valley Primary SchoolSuperland Pre-school (River Valley)Dimensions International CollegeAmity Global Institute (AGI)These schools give families many options nearby, making it easy for children of all ages to get an education.Residents of One Devonshire benefit from proximity to several healthcare facilities, ensuring quick access to medical services when needed. Nearby medical centres and clinics include:SKN MediAesthetics (Centrepoint)Aptus Surgery CentreMount Elizabeth Medical CentreUnity 111 SomersetNishino PharmacyThis ensures peace of mind for residents, knowing that healthcare services are readily available within a short distance from their homes.Residents of One Devonshire have many food options nearby. From local favourites to international dishes, there's something for everyone. Dining spots near the development include:Josh's Grill @ 313 @ SomersetEden RestaurantBonding Kitchen Orchard SingaporeKimchi Dining | Korean Restaurant SingaporeFire Ramen & Izakaya by Menbaka @ The CentrepointThese dining options ensure that residents can access various culinary experiences without travelling far from home.Grocery shopping is convenient for residents because several supermarkets are located nearby. These include:FairPrice Finest CentrepointFairPrice Finest 111 SomersetDON DON DONKI Orchard CentralCold Storage TakashimayaEccellente by HAO mart (TASTE Orchard)With multiple supermarket options close by, residents can easily access fresh produce, household essentials, and gourmet products whenever needed.One Devonshire is a high-rise development strategically located at No. 1, Devonshire Road, in the Orchard / River Valley area. The development has 152 homes, with sizes between 915 and 1,604 sq ft.Its architectural design embodies sleek glass facades, offering breathtaking views of the surrounding cityscape. Integrating modern design elements with natural landscapes ensures a beautiful mix of city living and peaceful nature. One Devonshire Condominium 9 36 152 residential units: One Devonshire offers a selection of three-bedroom homes designed to maximise space and natural light. The unit types include:Two-bedroom units (915 sq ft)Three-bedroom units (1,216 sq ft – 1,410 sq ft)Four-bedroom units (1,496 sq ft – 1,604 sq ft)These spacious homes provide residents with a comfortable living environment, featuring modern kitchens, open-plan living areas, and panoramic city views.One Devonshire was built by Devonshire Peak Pte Ltd, which is part of Allgreen Properties Ltd. Allgreen Properties has created many well-designed and high-quality buildings in Singapore. They focus on building well-architected homes that people love to live in. Their projects are thoughtfully planned to offer comfort, convenience, and modern living spaces.Other notable residential properties include:RoyalgreenPasir Ris 8Fourth Avenue ResidencesOne Devonshire is in a lively neighbourhood with many other well-known homes. This makes the area a great place to live with a strong sense of community. Nearby projects include:Boulevard 88d'Leedon (Former Farrer Court)Nouvel 18One Devonshire is a great choice for anyone looking for a comfortable and stylish home in a prime part of Singapore. Modern facilities, easy transport access, and well-designed living spaces offer a convenient and enjoyable city lifestyle for families.Visit One Devonshire's sale or rent page today to explore available units and experience elevated city living.
View project details


















