Northwave EC
111 Woodlands View
S$ 1,360,000
Starting From3
Beds
2
Baths
1,098
sqft
S$ 1,239
psf
About this property
Serious Seller with Straightforward Timeline
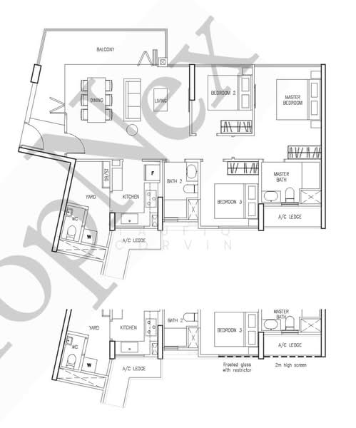
This 3-bedroom unit at Northwave Executive Condominium offers a well-balanced layout that prioritises both comfort and functionality. The space flows naturally from the living into the dining area, creating a home that feels open, practical, and easy to live in.
The layout is efficient, with minimal wasted space — something that becomes increasingly important not just for daily living, but also for long-term resale appeal. Each bedroom is well-proportioned, giving flexibility for families, work-from-home setups, or future lifestyle changes.
Completed in 2019, Northwave EC is a full-facility development designed for modern living. Residents enjoy access to a range of amenities including a 50m lap pool, gym, tennis court, and landscaped spaces that provide a comfortable environment for both relaxation and recreation.
For many buyers, executive condominiums represent a strategic step into private property — offering the benefits of condo living at a more accessible entry price point compared to fully private developments.
LOCATION & TRANSFORMATION
Woodlands is undergoing a significant transformation that is reshaping how the area is perceived.
Key developments include:
* The Woodlands Regional Centre, planned as a major economic hub in the north
* The upcoming RTS Link connecting Singapore to Johor Bahru
* Enhanced connectivity via the Thomson-East Coast Line
As these developments take shape, the area is gradually transitioning from a purely residential town into a more dynamic and connected regional centre.
* Efficient and functional 3-bedroom layout
* Suitable for both own stay and long-term planning
* Full condominium facilities within a well-established development
* Strategic entry into private property via EC segment
* Located within a transformation corridor with future growth potential
⸻
Amenities
Air conditioner
Balcony
Bedroom cabinets
Covered car parking
Common facilities
24 hours security
Barbeque pits
Basement car park
Basketball court
Affordability
Tell us your monthly income and expenses to see if this home fits your budget.
Northwave EC
NorthwaveNorthwave is an executive condominium located in District 25 in between Admiralty, Woodlands, Sembawang and Yishun. This gives residents of Northwave the choice of and benefit from several urban hubs, while at the same time, not suffering from the noise and pollution that living in the centre of one can give. It is a 15-minute walk from Northwave to both Admiralty and Sembawang MRT Stations, with the SLE and forthcoming NSC also next to the development. Northwave itself is well designed particularly in terms of its use of space, with a good range of facilities including a 50m swimming pool, BBQ pavilion, skate park, basketball /futsal court, fitness garden, hydro-spa pool, gymnasium, and badminton court.Hao Yuan (Woodlands) Pte Ltd is a subsidiary of the MCC Group in Singapore which is in turn a subsidiary of the Fortune 500 company Metallurgy Corporation of China Ltd. It is a total building services provider with capabilities in property development, construction and project management, as well as engineering services.Northwave – Unique Selling PointsNorthwave is in the ideal position of being reasonably close to several urban hubs and hence the convenience, the choice, the connectivity and the accessibility that comes with that, but by the same time being far enough away from it all not to suffer from undue noise pollution. Residents at Northwave can pick and choose where to dine, shop and entertain themselves from Woodlands itself, Admiralty, Sembawang and Yishun – all within a short drive, without having any forced down their throat. Relative to much of its competition, the units and rooms within Northwave are also very spacious, with what space the is utilised very well.Northwave- AccessibilityNorthwave is equidistant between Admiralty and Sembawang MRT stations. Both are on the North South Line, and both are a 15-minute walk from the development. Taking the bus to Admiralty will cut the journey to 5 minutes. In terms of driving, Northwave is located close to the SLE (easily accessed via Woodlands Avenue 12) which in turn gives access to the island’s other expressways. Also, Singapore’s next major expressway – the North South Corridor, which will also feature an adjacent cycle path, will run behind Northwave.Northwave - Amenities & AttractionsDining near Northwave:Siam Square MookataWhite RestaurantSakae SushiPeri Peri Grille PastaShopping near Northwave:Northpoint Shopping CentreSun PlazaCauseway PointSembawang Shopping CentreSchools and Education near Northwave:Greenwood Primary SchoolSembawang Secondary SchoolSingapore American SchoolSingapore Sports SchoolNorthwave - Project informationNorthwave is an executive condominium centrally located between Admiralty, Sembawang and Yishun. Its six, 16 storey towers are home to 358 units made up of 2, 3, 4 and 5 bed apartments as well as 6 penthouses. One of the features of the units and rooms at Northwave is not only are they spacious – especially when compared to its competitors, but very good use is made of that space. You will not find unnecessarily long corridors, or overlarge balconies in Northwave, rather every room is designed and built, fit for purpose.Facilities at Northwave are numerous and imaginative, and include a wading pool, Jacuzzi, 50m swimming pool, BBQ pavilion, skate park, basketball /futsal court, fitness garden, hydro-spa pool, gymnasium, and badminton court.Project Name: NorthwaveAddress: Woodlands ViewType: Executive CondominiumSite area: 13,33,47 sqftTenure: 99-year leaseholdDistrict: 25Configuration: 358 units in 6 blocks of 16 storeysUnit types:47 x 2BR units (678 – 752 sqft)121 x 3BR units (893 – 1,001 sqft)138 x 3BR Premium units (1,097 – 1,130 sqft)31 x 4BR units (1,270 sqft)15 x 5BR units (1,496 sqft)6 x Penthouse units (1,593 – 1,722 sqft)Parking lots: 358 carpark lots incl. 4 handicapped lots and 60 bicycle lotsExpected TOP: 2019Northwave - Related ProjectsThe following projects are by the same developer as Northwave:Sea HorizonThe Poiz ResidencesThe SantoriniNorthwave - Nearby ProjectsThe following developments are in the same neighbourhood as Northwave:Woodgrove CondoWoodhavenCasablancaRosewood
View project details
















