Naturalis
2 Lorong M Telok Kurau
S$ 1,360,000
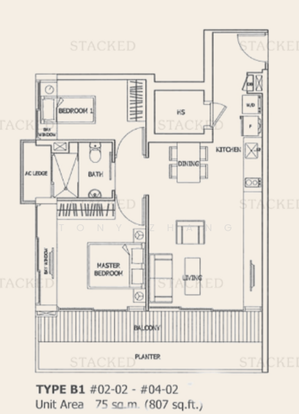
2
Beds
1
Bath
807
sqft
S$ 1,685
psf
1 km (12 mins) from TE27 Marine Terrace MRT
About this property
Spacious 2 Bedroom Unit For sale
- freehold and well maintained
- swimming pool viewing
-WINTHIN 1KM to haig's girl school and tao nan primary school
- close proximity to many great eateries and Katong mall
- walking distance to east coast beach and park
Amenities
Air conditioner
Balcony
Common facilities
Barbeque pits
Fitness corner
Jacuzzi
Playground
Affordability
Tell us your monthly income and expenses to see if this home fits your budget.
Naturalis

Naturalis is an apartment project that was built in the year 2011. The project was led by Abacus Development Pte Ltd, a small sized real estate organization that has only done this project in Singapore. The apartment has a total of 43 freehold units and 5 floors to the building. Naturalis is located at Lorong M Telok Kurau in District 15. The closest MRT station to the apartment is Kembangan MRT station. Recreational spots such as Parkland Golf Driving Range and East Coast Park are nearby Naturalis apartment. Residents have easy access to restaurants, shops, banks and post office in the area. Residents of Naturalis apartment can enjoy a vast variety of facilities provided by the apartment. For those who enjoy getting together over food and drinks, there is a barbeque area that they can make use of. There is even a Jacuzzi for residents who enjoy soaking while taking in the evening sky. A fitness corner is available for residents who prefer working out in the comfort of their own home and for those who are looking for a more relaxed leisure activity can head to the swimming pool to enjoy a dip. For the little children of Naturalis apartment, there is a playground available for them to enjoy and get in their daily exercise with their friends. Naturalis apartment residents have easy access to public transports available in the area. There are MRT stations and feeder bus stations that are in walking distance from the apartment. The closest MRT stations to the apartment are Eunos MRT Station, Kembangan MRT Station and Paya Lebar MRT Station. Residents can find feeder bus stops at areas such as at Katong Omega Apartment, D’Ecosia, East Coast Apartments, Flora East and at Parkway Easy Hospital. For residents with vehicles, getting to the business hub or shopping district via East Coast Parkway (ECP) and Pan Island Expressway (PIE) only takes about 15 minutes. Firebake- Woodfire Bakehouse & RestaurantTall Girl Chinese Restaurant328 Katong LaksaThe Garden Slug Family & Pet- Friendly Eating PlaceJai Thai Restaurant Victoria Junior CollegeTanjong Katong Secondary SchoolPresbyterian Recreation Secondary SchoolInno MontessoriTwo By Two Schoolhouse- Teluk Kurau Outlet Guardian SingaporeWellnes HomeopathyEu Van Sang (S) Pvt LtdUnity Marine ParadeMeditron International Pte Ltd SanchezmaryTelok Kurau Lorong N ParkMarine Parade Road ParkKoon Seng ParkMCV Our Kitchen Garden (Community Garden) Golden Village KatongCathay CineplexesParkway Cinema Katong PointBeautrix StudioKatong Square112 KatongSwaroyale JewelleryThe Nuts WarehouseGrocery StoreEspirito Santo-Latin Deli & ButcheryFixed Price Wholesale CentreCold Storage Katong Market Place Naturalis is a 43 unit apartment with 5 floors to the building. The apartment has a variety of units to choose from and it is conducive for singles, couples and families. The size of the units ranges from 517 square feet to 1,335 square feet. The sale price for these units range from S$ 858,000 to S$ 1,428,000. The PSF value for the units range from S$ 1,121 to S$ 1,378. Project Name: NaturalisType: ApartmentDistrict: 15Configuration: 43 residential units Unit types for Naturalis:1 bed + 1 bathroom (517 – 1,561 sqft)2 bed + 1 bathroom (764 – 904 sqft)2 bed + 2 bathroom (1,302 – 1,378 sqft)3 bed + 2 bathroom (1,033 – 1,335 sqft) The VanderlintVibes @ East CoastThe GeraniumSuites @ East CoastSiglap V
View project details










