Lange 28

Lange Road

S$ 2,500,000

Starting From

Beds

3

Beds

Baths

5

Baths

sqft (floor)

2,099

sqft (floor)

auto-size-o

S$ 1,191

psf (floor)


1.3 km (15 mins) from NE13 Kovan MRT


photo

Photos

floorplan

Floor Plan

video

Video

map

Map View

Property details

home-open-o
Cluster House for sale
furnished-o
Unfurnished
document-with-lines-o
TOP in Dec 2008
calendar-days-o
999-year lease
calendar-time-o
Listed on 14 Oct 2025
document-with-lines-o
Listing ID - 60160815

About this property

999year 3.5 Sty renovated cluster house at $1,1xx psf only in kovan

*3D SCAN/VIRTUAL TOUR ON ENQUIRY

Charming 3-Storey Cluster House @ Lange 28, District 19.

Basic specification
Lot Area: 195 sqm / 2099 sqft
TOP 2008
999-year leasehold
1 Personal Lot + Resident Parkin
3 En-suites 5 Bathrooms
Attic with a roof terrace

Exclusive boutique cluster houses that comprise 5 units only

[Key Highlights]

Residents who enjoy an active lifestyle surrounded by nature will find Lange 28 perfectly positioned. Within a mere 3-minute drive, they can unwind or work out amid the lush greenery of Richards Avenue Park and Surin Avenue Neighborhood Park— offering the ideal balance of tranquility and recreation.

Strategically located near both Kovan and Serangoon MRT stations, Lange 28 provides seamless connectivity across the island. For those who drive, major routes such as Upper Serangoon Road, Tampines Road, and the Kallang–Paya Lebar Expressway (KPE) ensure swift access to the Central Business District and popular shopping destinations in the city

With nearby condominiums reaching prices of up to $3 million, this 999-year leasehold cluster house offers remarkable value at just $1,1xx PSF. It’s an attractive opportunity for families seeking more space and a landed-style living experience — all without stretching their budget.

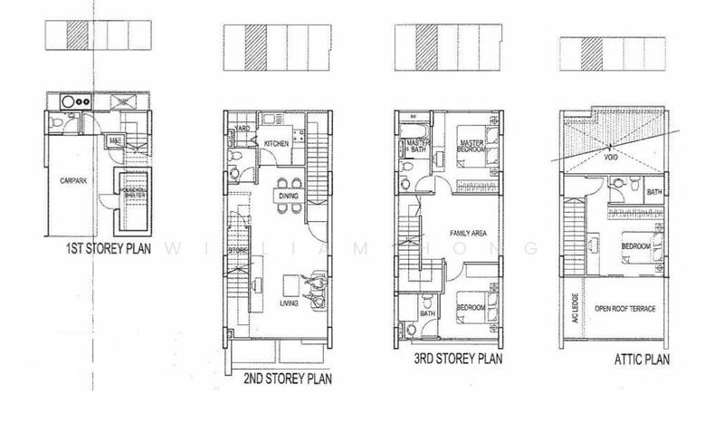
Property Details By Level:

Level 1:
Bomb Shelter
Carpark lot
Water closet

Level 2:
Living Hall
Store room
Open Kitchen
Yard Area

Level 3:
2 En-suites bedroom
Family Area

Attic:
1 En-suite bedroom
Open roof terrace

NOTE:
All land and built-up areas are approximate measurements and subject to final survey and shall not form part of any offer or contract nor constitute any warranty by the sale.

Contact me at 8.8.8.6.6.8.0.0 to arrange for an exclusive viewing appointment now!


Brought to you by,
William Hong
Huttons Landed Division
Amenities
aircon-o

Air-conditioning

balcony-o

Balcony

kitchen-o

Cooker hob/hood

renovated-o

Renovated

Common facilities
bbq-o

Barbeque pits

parking-o

Covered car park

outdoor-gym-o

Fitness corner

swim-o

Swimming pool

Affordability

Can I afford this property?

Tell us your monthly income and expenses to see if this home fits your budget.

Mortgage breakdown
Est. monthly repayment
S$ 0 / mo
0%
0%
S$ 0 Principal
S$ 0 Interest
Upfront costs
Total downpayment
S$ 0
0%
0%
Downpayment
S$ 0 Loan amount at 0% Loan-to-value

S$
S$
%
Yrs
Key to home analytics
Track this home's value
Get access to home valuation, mortgage tracking and home services all in one place.
trend iconTrack now

Lange 28

Lange 28 is a 999-year leasehold terrace House located at Lange Road in District 19Serangoon Garden of Singapore. It comprises of 5 units. This property was completed in 2008. There is no information of the developer to be found. Residents of Lange 28 can enjoy facilities provided such as swimming pool, fitness corner or enjoy quality time with the family at the barbeque corner. Shaded parking lots are provided hence residents need not worry about car park areas availability. In addition, residents who love to indulge in the nature greenery environment while working out can easily reach nearby parks within 3 minutes’ drive such as Richards Avenue Park, Surin Avenue Neighbourhood Park and Parry Avenue Interim Park. Lange 28 is located close to Kovan MRT Station and Serangoon MRT Station. The property is easily linked via many expressways. For the vehicle owners, they can take Upper Serangoon Road, Tampines Road and Kallang Paya Lebar Expressway to get to the business hub or shopping District in the city. Zhonghua Primary SchoolPeicai Secondary SchoolChan Dental Clinic & SurgeryComfort Clinic & SurgeryMedical Union ClinicYio Chu Kang Dental SurgeryMission Medical ClinicShop ‘N’ Save Yio Chu Kang RoadShop ‘N’ Save Kovan CentreICB Shopping CentreUpper Serangoon Shopping CentreCold Storage – Heartland Mall The 5 units of Lange 28 come at different sizes ranging from 2099 sqft to 2443 sqft. This project has few types of layout from 3 bedrooms to 5 bedrooms. Project Name: Lange 28Type: Terraced houseTenure: 999-year leaseholdDistrict: 19Configuration: 5 residential units Unit types:3 bedrooms4 bedrooms5 bedrooms The following developments are in the same neighbourhood as Lange 28:The Florence ResidencesAffinity At SerangoonRiverfront ResidencesLa FiestaKingsford WaterbaySengkang Grand Residences

View project details
FAQs
The sale price of this unit at Lange 28 is S$ 2,500,000.
Current PSF at Lange 28 is about S$ 1,191.04 psf.
The estimated loan repayment is S$ 7,330 / mo.
Lange 28 is located at Lange Road Hougang / Punggol / Sengkang Serangoon / Thomson (D19-20).
Floor size of this unit at Lange 28 is 2,099 sqft.