Kerrisdale
30 Sturdee Road
S$ 2,250,000
3
Beds
2
Baths
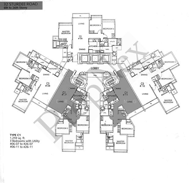
1,259
sqft (floor)
S$ 1,787
psf (floor)
480 m (6 mins) from NE8 Farrer Park MRT
780 m (10 mins) from DT23 Bendemeer MRT
About this property
City Square mall and Farrer Park MRT stone's throw away!
Spacious layout 1259sf
Open concept kitchen
Mid floor
No afternoon sun
Enjoy city fringe living with just minutes drive to Suntec, Bugis & Orchard Road.
Within 1km to 5 MRTs
Farrer Park, Bendemeer, Lavender , Jalan Besar & Boon Keng MRT
Surrounded with famous foodies and eateries
Not to be missed.
Common facilities
Barbeque pits
Basketball court
Clubhouse
Function room
Affordability
Tell us your monthly income and expenses to see if this home fits your budget.
Kerrisdale

Kerrisdale is a beautifully designed and a unique condominium development located in 30 Sturdee Road, District 08, Singapore. The construction of this development was done by a famous development company known as the Beatty Holdings Pte Ltd and the development of this project was completed in the year 2006. Kerrisdale offers great facilities and features that the residents of many new developments only dream of having. The residents of the development can enjoy a Jacuzzi and a lap pool facility in the development. There is a function room in the development which can be used on different occasions by the residents. The residents can also enjoy a lovely barbecue area in the development and spend some unforgettable time with their family and friends. Furthermore, the residents of the development can also enjoy a basketball court, a jogging track, a wading pool, tennis courts, a reflexology path and a great gymnasium in the development. The development offers complete car parking facility for its residents. Most importantly, the development is equipped with latest security gadgets and provides 24 hour security to its residents to make sure that the residents are protected from any kind of external threats while they are in the development. Kerrisdale was developed strategically keeping in mind the importance of accessibility of the location. The residents do not have to worry about moving to and from the location even if they do not have their own vehicles. Public transportation is also available in the locality, making the area of the development even more attractive. The residents of the development can use the NE8 Farrer Park MRT Station, DT23 Bendemeer MRT Station and EW11 Lavender MRT Station to easily move to and from the location. The development is easily accessible and is connected via major roads and highways of the area from where the residents can reach any place in the city easily just by driving for a few minutes. Kerrisdale is located in a great area and is surrounded by a variety of amenities. The residents do not have to worry about anything in the area because everything is easily accessible in the locality. There are many great educational institutions in the area providing top class education services to the residents of the area. The residents do not have to worry about the education of their children. Few of the famous educational institutions in the area areFarrer Park Primary SchoolHong Wen SchoolStamford Primary School It is considered to be a great place for those who love to do shopping because there are many great shopping spots in the area from where the residents can shop for almost anything they want. Few of the famous shopping spots near the development areThree Leaves InternationalAmista MinimartNTUC FairPriceFragrance Bakkwa @ City Square Mall Many great food points are also available in the area where the residents can enjoy some fine quality dining facility with their family and friends. Few of the great food points near the development areBretonGopal RestaurantMcDonald�sMomiji Kerrisdale is a beautiful development and the buyers have the option to select from different designs of the units. The built up area of the units in the development ranges between 900sqf � 2540sf.Project Name: KerrisdaleDistrict: 08Configuration: 481 units The buyers can select from the following designs: 2 bedrooms unit3 bedrooms unit4 bedrooms unitPenthouse The owners also have the option to rent out the units, making the development attractive from investment point of view as well. The rent of the units in the development increases accordingly to the selection of the design of the unit. The development company of the Kerrisdale has developed many famous projects in the country and has always focused on giving value back to the stakeholders. The development company made sure that the Kerrisdale becomes a landmark for future developments and attracts people from all over the city. As discussed earlier, the Kerrisdale development is situated in a great area and is surrounded by many beautiful developments which are making the area attractive and charming. Few of the famous developments in the area are: CitylightsCavan Suites151A Tyrwhitt RoadHoa Nam BuildingBliss Regalia
View project details














