FREEHOLD NEAR MRT BELOW $1,600 PSF
S$ 2,599,999
Starting From4
Beds
4
Baths
1,647
sqft (floor)
S$ 1,579
psf (floor)
470 m (6 mins) from TE29 Bayshore MRT
About this property
Freehold near MRT in D16 below $1,600psf !!
NEW LISTING
General Details
- 4 Bed 4 Bath
- 1647 Sqft
- Minutes walk to MRT
- Close proximity to amenities
- NO EXTENSION NEEDED
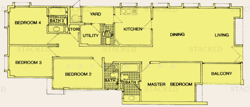
Floorplan as per attached
MRT
Bayshore MRT TE29 (312M)
Bedok South TE30 (882M)
Schools
Temasek Primary School (501m)
Bedok Green Primary School (939m)
*Photos are for illustration purposes only
General Details
- 4 Bed 4 Bath
- 1647 Sqft
- Minutes walk to MRT
- Close proximity to amenities
- NO EXTENSION NEEDED
Floorplan as per attached
MRT
Bayshore MRT TE29 (312M)
Bedok South TE30 (882M)
Schools
Temasek Primary School (501m)
Bedok Green Primary School (939m)
*Photos are for illustration purposes only
Affordability
Can I afford this property?
Tell us your monthly income and expenses to see if this home fits your budget.
Mortgage breakdown
Est. monthly repayment
S$ 0 / mo
S$ 0 Principal
S$ 0 Interest
Upfront costs
Total downpayment
S$ 0
Downpayment
S$ 0 Loan amount at 0% Loan-to-value
FAQs
The sale price of this unit at FREEHOLD NEAR MRT BELOW $1,600 PSF is S$ 2,599,999.
Current PSF at FREEHOLD NEAR MRT BELOW $1,600 PSF is about S$ 1,578.63 psf.
The estimated loan repayment is S$ 7,623 / mo.
FREEHOLD NEAR MRT BELOW $1,600 PSF is located at Bedok / Upper East Coast East Coast (D15-16).
Floor size of this unit at FREEHOLD NEAR MRT BELOW $1,600 PSF is 1,647 sqft.
Explore other options in and around Bedok / Upper East Coast
Based on the property criteria, you might be interested on the following
Condominium For Sale
Nearest MRT Stations






