ELTA

10 Clementi Avenue 1

S$ 3,894,000

Starting From

Beds

5

Beds

Baths

4

Baths

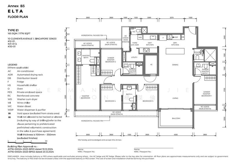
sqft (floor)

1,776

sqft (floor)

auto-size-o

S$ 2,193

psf (floor)


1.1 km (13 mins) from EW23 Clementi MRT


photo

Photos

floorplan

Floor Plans

video

Videos

virtualTour

Virtual Tour

map

Map View

Property details

home-open-o
Apartment for sale
furnished-o
Partially furnished
document-with-lines-o
TOP in 2028
calendar-days-o
99-year lease
calendar-time-o
Listed on 12 Oct 2025
document-with-lines-o
Listing ID - 60158596

About this property

Cheap and Rare! Large unit 1776 sqft from low psf!

Rare 5-Bedroom Unit at Elta – Spacious, Functional Layout in Clementi

Discover this rare 5-bedroom unit at Elta, the newest residential launch in Clementi in over 4 years. With a spacious layout of approximately 1,776 sqft, this premium unit is ideal for large families or multi-generational living.

Thoughtfully designed with distinct living and dining zones, a dry and wet kitchen, family room, and utility space with bathroom. Natural light fills the home, complemented by quality finishes throughout.

Located at Clementi Avenue 1, Elta offers seamless connectivity via AYE/PIE and is within 15 minutes’ walk to Clementi MRT. Close proximity to top schools such as Nan Hua High, NUS High School, and Pei Tong Primary adds to the family appeal.

Enjoy over 50 condo facilities including a clubhouse, 50m lap pool, sky garden, gym, and more – all set within a green, tranquil environment.

TOP estimated in 2029. This is a 99-year leasehold project jointly developed by MCL Land and CSC Land.

Connect with Herman Yong Jie Loon at 9***** / www.h***** now to schedule a viewing or request a brochure and floor plan.
Amenities
aircon-o

Air-conditioning

balcony-o

Balcony

room-o

Bombshelter

buildings-o

City view

Common facilities
security-access-control-o

24 hours security

restroom-o

Accessible washroom/shower

outdoor-gym-o

Adult fitness stations

aircon-o

Aircon facilities

Affordability

Can I afford this property?

Tell us your monthly income and expenses to see if this home fits your budget.

Mortgage breakdown
Est. monthly repayment
S$ 0 / mo
0%
0%
S$ 0 Principal
S$ 0 Interest
Upfront costs
Total downpayment
S$ 0
0%
0%
Downpayment
S$ 0 Loan amount at 0% Loan-to-value

S$
S$
%
Yrs
Key to home analytics
Track this home's value
Get access to home valuation, mortgage tracking and home services all in one place.
trend iconTrack now

ELTA

Elta is a 99-year leasehold new launch condominium at Clementi Avenue 1, in the highly demanding District 5, including Singapore's vibrant Buona Vista and West Coast areas. This distinguished development is brought to life by the collaboration between MCL Land and CSC Land Group, renowned entities in the real estate market known for their commitment to quality and innovation. Elta comprises 501 residential units, offering various options ranging from one-bedroom with study apartments to expansive five-bedroom units. Expected to be completed by 2031, Elta integrates modern living with convenience and provides a luxurious urban lifestyle. It is designed to cater to diverse residential preferences. Elta's prime location in District 5 ensures residents enjoy exceptional connectivity to key areas such as the Central Business District (CBD), making it a preferred choice for those who value accessibility. Its proximity to multiple MRT stations further enhances the development's connectivity. The nearest MRT stations to Elta are Clementi MRT Station (EW23), Dover MRT Station (EW22) and One-North MRT Station (CC23). Drivers can conveniently access Ayer Rajah Expressway (AYE) and Clementi Road from the site. This allows future residents of ELTA to reach key areas, such as the upcoming Jurong Lake District. Elta's strategic positioning offers residents unmatched convenient connectivity to public transport and major expressways. The development is near Clementi MRT station (EW23), ensuring swift connectivity across Singapore. Additionally, the vicinity is well-served by several bus stops, providing further commuting options. For those who drive, Elta's proximity to major expressways such as the Ayer Rajah Expressway (AYE) and Pan Island Expressway (PIE) facilitates smooth commutes to key destinations like the Central Business District and beyond. The vibrant neighbourhood around Clementi Avenue 1 further adds to its allure, with shopping malls like Clementi Mall and recreational hotspots just around the corner. Elta is carefully designed to meet different lifestyle needs. It also has many features that help create a complete living space. The development includes: A 50-metre lap pool for relaxation and recreation A sky terrace providing panoramic views and a space for social gatherings A fully equipped gymnasium for fitness enthusiasts BBQ pits for communal gatherings and events Lush landscaped gardens offer a peaceful retreat for residents A clubhouse equipped to host gatherings and foster community interaction Private dining pavilions for hosting dinner parties or family gatherings A residents' lounge for relaxation and socialising These features are carefully chosen to provide residents with chances for relaxation, exercise, and social gatherings. The green gardens and clean shared areas create a calm feeling. Here, nature and modern living go well together. Families residing in Elta benefit from proximity to several choice educational institutions, enhancing the appeal for families with school-going children. The area offers access to primary and secondary schools, tertiary institutions, and international schools, including: Nan Hua Primary School Clementi Primary School Clementi Woods Secondary School International Community School (Singapore) Elta offers various food choices and many great places to eat. Residents can access a range of dining options, including: Clementi 448 Food Centre 353 Clementi Food Centre Five Blessings Food Hall The local dining scene is vibrant, with many options for diverse palates and preferences. Residents of Elta have access to various medical facilities within proximity, ensuring prompt healthcare services. Nearby medical centres include: A leading dental practice in Clementi offering family dentistry services with a focus on quality care at affordable prices. A medical group providing comprehensive healthcare services. A general practitioner clinic in Clementi offering a wide range of medical services, including acute care, chronic disease management, and health screenings. While specialised medical services are not immediately mentioned, the area's excellent connectivity ensures access to more comprehensive healthcare facilities throughout Singapore. Convenience is further enhanced with several supermarkets nearby, such as: Clementi Mall Grantral Mall @ Clementi West Coast Plaza These establishments ensure residents can access daily necessities and various shopping options. Elta is located in a great spot at Clementi Avenue 1 in District 5. The development is architecturally distinct and is expected to rise to approximately 40 storeys. The design harmoniously blends urban elegance with natural serenity, showcasing sleek architectural elements highlighting form and function. The site will have many features, like a swimming pool, a gym, a community clubhouse, BBQ pits, and a playground. Everything is made to use space well and keep a beautiful view. Elta Condominium 5 501 residential units Elta has a range of unit types, from one-bedroom with study to five-bedroom homes, designed to meet different lifestyle needs. Each unit maximise space and light, also come with modern kitchens, spacious living areas, and stunning views. In November 2022, the Urban Redevelopment Authority (URA) launched the Clementi Ave 1 GLS site, paving the way for the ELTA new project, which spans a site area of 13,451.1 sqm. A partnership between MCL Land and CSC Land Group creates Elta. Together, they share their strengths and skills. MCL Land is known for its focus on sustainable and quality living ideas. CSC Land Group adds its rich experience in completing projects that mix luxury and usefulness. The group won the Clementi Avenue 1 site bid, showing the demand for this development. Here are some of the projects made by developers of Elta: Sol Acres: MCL Land (Brighton) Pte Ltd Lake Grande: MCL Land (Vantage) Pte Ltd Margaret Ville: MCL Land Limited Elta is situated in a neighbourhood with several other prominent residential developments, contributing to the vibrant community atmosphere. Nearby projects include: The Clement Canopy Clavon Parc Clematis Elta is an excellent choice for luxury living in a top Singapore spot. It has modern facilities and good connections. This development offers a chance for individuals and families who want a high-quality city lifestyle. Check out ELTA listings for sale and units rental on PropertyGuru Singapore.

View project details
FAQs
The sale price of this unit at ELTA is S$ 3,894,000.
Current PSF at ELTA is about S$ 2,192.57 psf.
The estimated loan repayment is S$ 11,691 / mo.
ELTA is located at 10 Clementi Avenue 1 Buona Vista / West Coast / Clementi New Town City & South West (D01-08).
Floor size of this unit at ELTA is 1,776 sqft.