Corner Terrace Kovan Road
S$ 7,780,000
Starting From7
Beds
5
Baths
2,550
sqft (land)
S$ 3,050.98
psf (land)
320 m (4 mins) from NE13 Kovan MRT
About this property
Newly built three storey corner terrace with mezzanine level 7 bedroom
☆NEW Corner Terrace Listing ☆
3 storey corner terrace house with mezzaine level, attic and an internal lift. Total 5 levels of 7 ensuite bedrooms plus helper room.
WhatsApp *+*6*5*8*7*2*2*4*6*0*0* Dulcie for viewing.
Local shopping and dining facilities are available at Kovan Heartland Mall, Hougang Mall and shophouses along Upper Serangoon Road as well as the food centre
and wet market at the nearby neighbourhood centre. Accessibility is good and Kovan MRT Station is located near to the subject property. Public transportation is readily available along Upper Serangoon Road.
16-3 Kovan Road Singapore 548061
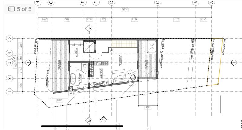
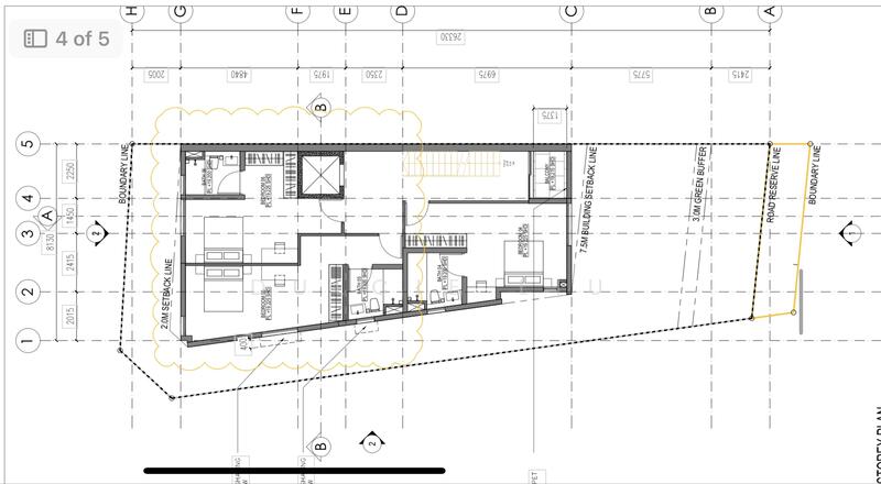
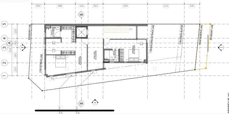
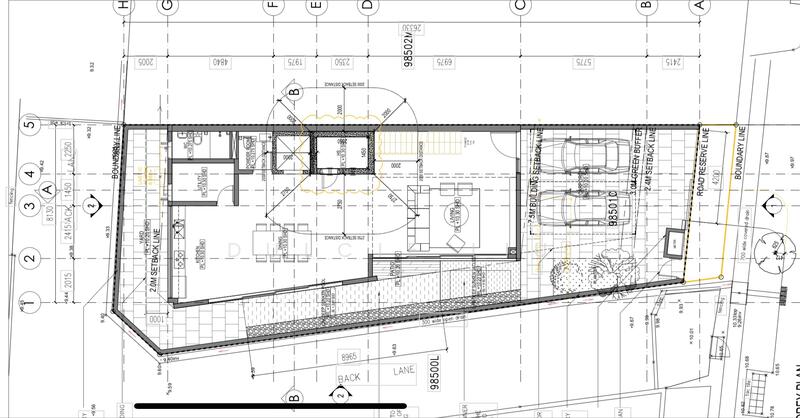
Land : 2550 sqft
Build-up : 8800 sqft (according to developer)
16-3 Kovan Floor Area
As-is: (As measured on site, subject to survey)
Approx. 183.4 sq m (approx. 1,974 sq ft); [excluding covered carporch and front terrace of
approx. 22.2 sq m (approx. 239 sq ft)]
Total Proposed: (Information as provided by client’s consultant, subject to survey)
1st lvl Approx. 118.0 sq m (approx. 1,270 sq ft)
2nd lvl Approx. 93.0 sq m (approx. 1,001 sq ft)
3rd lvl Approx. 121.0 sq m (approx. 1,302 sq ft)
4th lvl Approx. 121.0 sq m (approx. 1,302 sq ft)
5th lvl Approx. 83.0 sq m (approx. 893 sq ft)
Total Approx. 536.0 sq m (approx. 5,768 sq ft)
Disclaimer: All land sizes, built-up areas and built-in areas are based on approximate measurements and are subject to final survey. Information provided shall not form part of any offer or contract or constitute any warranty by the salesperson and shall not be regarded as statements or representations of fact.
3 storey corner terrace house with mezzaine level, attic and an internal lift. Total 5 levels of 7 ensuite bedrooms plus helper room.
WhatsApp *+*6*5*8*7*2*2*4*6*0*0* Dulcie for viewing.
Local shopping and dining facilities are available at Kovan Heartland Mall, Hougang Mall and shophouses along Upper Serangoon Road as well as the food centre
and wet market at the nearby neighbourhood centre. Accessibility is good and Kovan MRT Station is located near to the subject property. Public transportation is readily available along Upper Serangoon Road.
16-3 Kovan Road Singapore 548061
Land : 2550 sqft
Build-up : 8800 sqft (according to developer)
16-3 Kovan Floor Area
As-is: (As measured on site, subject to survey)
Approx. 183.4 sq m (approx. 1,974 sq ft); [excluding covered carporch and front terrace of
approx. 22.2 sq m (approx. 239 sq ft)]
Total Proposed: (Information as provided by client’s consultant, subject to survey)
1st lvl Approx. 118.0 sq m (approx. 1,270 sq ft)
2nd lvl Approx. 93.0 sq m (approx. 1,001 sq ft)
3rd lvl Approx. 121.0 sq m (approx. 1,302 sq ft)
4th lvl Approx. 121.0 sq m (approx. 1,302 sq ft)
5th lvl Approx. 83.0 sq m (approx. 893 sq ft)
Total Approx. 536.0 sq m (approx. 5,768 sq ft)
Disclaimer: All land sizes, built-up areas and built-in areas are based on approximate measurements and are subject to final survey. Information provided shall not form part of any offer or contract or constitute any warranty by the salesperson and shall not be regarded as statements or representations of fact.
Amenities
Air conditioner
Balcony
Covered car parking
Affordability
Can I afford this property?
Tell us your monthly income and expenses to see if this home fits your budget.
Mortgage breakdown
Est. monthly repayment
S$ 0 / mo
S$ 0 Principal
S$ 0 Interest
Upfront costs
Total downpayment
S$ 0
Downpayment
S$ 0 Loan amount at 0% Loan-to-value
FAQs
The sale price of this unit at Corner Terrace Kovan Road is S$ 7,780,000.
Current PSF at Corner Terrace Kovan Road is about S$ 3,050.98 psf.
The estimated loan repayment is S$ 22,813 / mo.
Corner Terrace Kovan Road is located at Hougang / Punggol / Sengkang .
Floor size of this unit at Corner Terrace Kovan Road is 8,800 sqft.
Explore other options in and around Hougang / Punggol / Sengkang
Based on the property criteria, you might be interested on the following
Corner Terrace For Sale
Nearest MRT Stations













