Canberra Crescent Residences - 97 Units for Sale
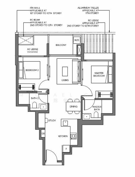
Canberra Crescent Residences, a 99-year leasehold residential development, is located at 51, 53, 55, and 57 Canberra Crescent, Singapore 759827, within District 27, which encompasses the Sembawang and Yishun neighbourhoods. Developed by Peak Crescent Pte Ltd, a joint venture between Kheng Leong Co. and Low Keng Huat (Singapore) Limited, the condominium project encompasses 376 residential units across 12-storey blocks. A broad selection of unit types, from one- to four-bedroom homes, caters to diverse living preferences. A low-density design ensures privacy and exclusivity, giving the development a distinct identity within the area. Scheduled to be completed in 2029. A prime location within District 27 offers seamless connectivity to key destinations, including the Central Business District (CBD) and Orchard Road. Surrounding features include scenic views of conserved black-and-white houses and convenient access to the Northern Explorer Loop, which functions as both a recreational and community hub. The thoughtful balance of modern facilities, integration with nature, and community-focused features creates an address with a calm yet well-connected character. Additional advantages stem from the low-density design, which offers privacy within a spacious setting, while nearby retail and dining options enhance daily convenience. The neighbourhood environment supports both active and relaxed lifestyles. Canberra Crescent Residences enjoys convenient transport links through both road and rail. Canberra MRT Station (NS12) on the North-South Line rests within a short walking distance of around five minutes. Direct train services run towards Orchard Road, the Central Business District (CBD), and connect onwards to the Johor Bahru Rapid Transit System (RTS) Link. For motorists, road access includes the Seletar Expressway (SLE) and the developing North-South Corridor, linking the residence with significant areas of Singapore. The surrounding neighbourhood carries significant appeal, with Bukit Canberra and Canberra Plaza offering options for sports, recreation, retail, and dining. Residents experience a convenient balance of lifestyle amenities without sacrificing a sense of tranquillity. Canberra Crescent Residences incorporates a carefully curated set of communal spaces, shaping a holistic lifestyle environment. Facilities extend across recreational, wellness, and social areas, encouraging residents to enjoy both relaxation and active pursuits. Thoughtful landscaping complements the modern design, creating an inviting atmosphere throughout the residential grounds. Facilities include: BBQ Clubhouse Gym Lap Pool Pavilion Playground Pool Deck These features encourage fitness, relaxation, and social activities within a landscaped setting. Green spaces and shared facilities contribute to a balanced environment that combines relaxation with everyday convenience. Families within Canberra Crescent Residences benefit from the convenience of nearby educational facilities. Options within the area include: Wellington Primary School My First Skool at Blk 491 Admiralty Link Canberra Secondary School Dining options around Canberra Crescent Residences offer a variety of choices and accessibility. Eateries in the area include: Mata Thai (105 Canberra Street) Hai Liang Mala Hotpot Mala Xiang Guo Joyful Seafood at 120 Canberra Crescent Healthcare access remains straightforward with several medical centres and clinics nearby, including: Canberra Care Medical Clinic EH Medical Family Clinic (Woodlands) My Doctor @ Admiralty Daily essentials and grocery needs find easy solutions through nearby supermarkets, such as: Sheng Siong Supermarket HAO mart Teo Chin Huat Canberra Crescent Residences occupies a defined site at 51, 53, 55, and 57 Canberra Crescent in District 27. The development spans a carefully allocated land area, featuring four residential blocks that rise to 12 storeys each. A design approach blending modern architectural elements with landscaped greenery reflects both functionality and aesthetic charm. Attention to detail across layouts and shared spaces enhances the living experience within the community. : Canberra Crescent Residences : Condominium : 27 : 376 residential units : One Bedroom: 409 sq ft Two Bedroom Compact: 570 sq ft Two Bedroom Premium: 667 sq ft Three Bedroom Compact: 797 to 883 sq ft Three Bedroom Premium: 990 sq ft Four Bedroom Compact: 1,163 to 1,173 sq ft Four Bedroom Standard: 1,216 sq ft Four Bedroom Premium: 1,324 sq ft Layouts maximise functionality, natural light, and space efficiency, with larger units including ensuite bedrooms and refined finishes. Canberra Crescent Residences falls under Peak Crescent Pte Ltd, a partnership formed between Kheng Leong Co. and Low Keng Huat (Singapore) Limited. Kheng Leong carries extensive experience in both local and international real estate. Low Keng Huat has a long-standing presence in Singapore’s property market, with developments such as Dalvey Haus and The Minton in its portfolio. Both developers are known for delivering quality construction, adopting sustainable practices, and upholding architectural standards that create residential spaces of lasting value. Their joint ventures reflect a shared vision of creating communities that strike a balance between comfort, aesthetics, and long-term value. This collaboration at Canberra Crescent Residences illustrates their capability to deliver developments that cater to diverse lifestyles while enhancing the overall living environment. Other residential projects by the developer feature modern design, functional layouts, and well-planned amenities: 21 Anderson 32 Gilstead 15 Holland Hill The neighbourhood surrounding Canberra Crescent Residences contains several established residential developments, contributing to a lively and well-rounded community. Notable nearby projects include: Provence Residence The Brownstone The Visionaire Canberra Crescent Residences reflects a thoughtful mix of modern facilities, community-focused features, and natural surroundings within District 27. Strategic connectivity, lifestyle convenience, and design quality establish the project as a distinctive residential address. Individuals and families seeking refined yet practical living find an appealing option in this development. The surrounding neighbourhood further adds to its appeal, offering access to schools, dining, retail, and recreation, which creates a wholesome environment for daily life. A combination of lush greenery and contemporary architecture enhances the charm of the residence, while well-planned amenities offer a balance between relaxation, wellness, and social interaction. Check out the Canberra Crescent Residences sales page for complete details.
DeveloperKheng Leong And Low Keng Huat
















