Brand New Freehold 3.5 Storey Inter-Terrace with Private Lift & Mezzanine in Kovan Estate
Simon Lane | Florence Rd | Simon Place
S$ 6,500,000
6
Beds
7
Baths
1,600
sqft (land)
S$ 4,062.50
psf (land)
1.1 km (13 mins) from NE13 Kovan MRT
1.2 km (15 mins) from CR8/NE14 Hougang MRT
About this property
Walking distance to MRT and eateries. 1km to 3 schools.
Brand New 3.5 Storey Inter-Terrace with Private Lift & Mezzanine in Prime District 19 – Just Bring Your Luggage Will Do!
⸻
Property Highlights
• Land Size: Approx. 1,600 sqft
• Built-Up Area: Approx. 5,100 sqft
• Bedrooms: 6
• Bathrooms: 7
• Frontage: ~6.1m | Depth: ~24m
• Main Door Facing: South East
• Parking: Park 2 car inside; ample space for more outside
• Tenure: Freehold
⸻
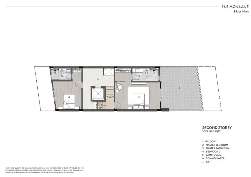
Layout Overview
1st Storey:
• Living & dining area
• Wet & dry kitchen
• Helper’s room
• Bathroom
• Yard
1st Storey Mezzanine:
• Bedroom 1 en-suite
2nd Storey:
• Master bedroom 1 en-suite with balcony
2nd Storey Mezzanine:
• Bedroom 2 en-suite
3rd Storey:
• Master bedroom 2 en-suite
3rd Storey Mezzanine:
• Bedroom 3 en-suite
Attic Storey:
• Bedroom 4 en-suite with balcony
• Family area
⸻
Nearby Amenities
Primary Schools within 1km:
• Holy Innocents’ Primary School
• Xinghua Primary School
• Xinmin Primary School
MRT Stations Nearby:
• Kovan MRT (NE13, North East Line)
⸻
Contact Mak Hui Lyn at 9834.3123 for an exclusive viewing today!
Disclaimer: The information provided in this advertisement is for general informational purposes only and does not constitute an offer, contract, or guarantee of any kind. All property details, including but not limited to prices, availability, specifications, and features, are subject to change without prior notice. Images, floor plans, and descriptions are for illustrative purposes only and may differ from the actual property. Buyers and tenants are encouraged to conduct their own due diligence and verify all information with the developer, seller, or relevant authorities before making any decisions. The advertiser assumes no liability for any inaccuracies, errors, or omissions in this listing.
⸻
Property Highlights
• Land Size: Approx. 1,600 sqft
• Built-Up Area: Approx. 5,100 sqft
• Bedrooms: 6
• Bathrooms: 7
• Frontage: ~6.1m | Depth: ~24m
• Main Door Facing: South East
• Parking: Park 2 car inside; ample space for more outside
• Tenure: Freehold
⸻
Layout Overview
1st Storey:
• Living & dining area
• Wet & dry kitchen
• Helper’s room
• Bathroom
• Yard
1st Storey Mezzanine:
• Bedroom 1 en-suite
2nd Storey:
• Master bedroom 1 en-suite with balcony
2nd Storey Mezzanine:
• Bedroom 2 en-suite
3rd Storey:
• Master bedroom 2 en-suite
3rd Storey Mezzanine:
• Bedroom 3 en-suite
Attic Storey:
• Bedroom 4 en-suite with balcony
• Family area
⸻
Nearby Amenities
Primary Schools within 1km:
• Holy Innocents’ Primary School
• Xinghua Primary School
• Xinmin Primary School
MRT Stations Nearby:
• Kovan MRT (NE13, North East Line)
⸻
Contact Mak Hui Lyn at 9834.3123 for an exclusive viewing today!
Disclaimer: The information provided in this advertisement is for general informational purposes only and does not constitute an offer, contract, or guarantee of any kind. All property details, including but not limited to prices, availability, specifications, and features, are subject to change without prior notice. Images, floor plans, and descriptions are for illustrative purposes only and may differ from the actual property. Buyers and tenants are encouraged to conduct their own due diligence and verify all information with the developer, seller, or relevant authorities before making any decisions. The advertiser assumes no liability for any inaccuracies, errors, or omissions in this listing.
Affordability
Can I afford this property?
Tell us your monthly income and expenses to see if this home fits your budget.
Mortgage breakdown
Est. monthly repayment
S$ 0 / mo
S$ 0 Principal
S$ 0 Interest
Upfront costs
Total downpayment
S$ 0
Downpayment
S$ 0 Loan amount at 0% Loan-to-value
FAQs
The sale price of this unit at Brand New Freehold 3.5 Storey Inter-Terrace with Private Lift & Mezzanine in Kovan Estate is S$ 6,500,000.
Current PSF at Brand New Freehold 3.5 Storey Inter-Terrace with Private Lift & Mezzanine in Kovan Estate is about S$ 4,062.50 psf.
The estimated loan repayment is S$ 19,059 / mo.
Brand New Freehold 3.5 Storey Inter-Terrace with Private Lift & Mezzanine in Kovan Estate is located at Simon Lane | Florence Rd | Simon Place Hougang / Punggol / Sengkang Serangoon / Thomson (D19-20).
Floor size of this unit at Brand New Freehold 3.5 Storey Inter-Terrace with Private Lift & Mezzanine in Kovan Estate is 5,100 sqft.
Explore other options in and around Hougang / Punggol / Sengkang
Based on the property criteria, you might be interested on the following
Terraced House For Sale
Nearest MRT Stations



























