1953
1 Tessensohn Road
S$ 2,250,000
Starting From3
Beds
4
Baths
1,152
sqft
S$ 1,953
psf
580 m (7 mins) from NE8 Farrer Park MRT
890 m (11 mins) from DT23 Bendemeer MRT
About this property
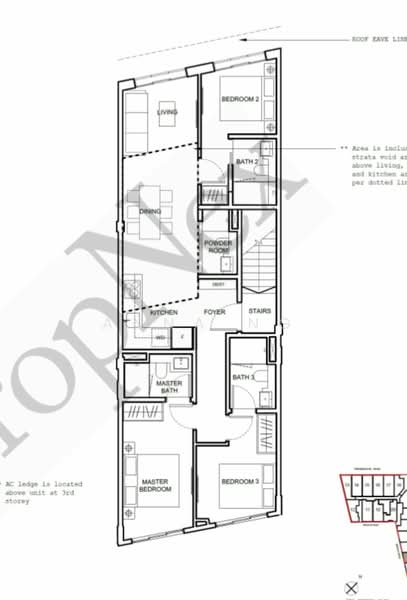
Rare freehold 3 bedroom ensuite in D08, selling Vacant, maint $531pm
Property Details
• 3 Bedrooms + 4 Bathrooms
• Approx. 1,152sf
• moder layout
• Bright and airy unit with high ceiling feel
• Well-maintained condition
• Suitable for own stay or investment
• Freehold property
Why Buyers Like This Unit
• Rare freehold unit in location and size
• Functional layout with multiple bathrooms for convenience
• Good privacy between living and bedroom levels
• Ideal for families or multi-generation living
Convenient Location
• Minutes to Novena and Orchard Road
• Close to shopping malls, supermarkets, cafes and eateries
• Easy access to major roads and expressways
• Near medical hub including Mount Elizabeth Novena Hospital
A rare opportunity to own a freehold 3-bedroom ensuite in the city fringe.
Contact Anna Ng (Client Centric Property) at 9***** to arrange a viewing today.
Common facilities
Car park
Community garden
Fitness corner
Pool deck
Affordability
Tell us your monthly income and expenses to see if this home fits your budget.
1953

1953 is a blend of Heritage Shophouses and Modern Contemporary Design Apartments creating a unique and interesting façade. Located at Tessensohn Road in District 8, it is a freehold mixed development by Oxley Holdings Limited, a homegrown Singapore company which has many successful development projects and created a strong foothold both locally and overseas. As one of Singapore’s most prolific developers, the Group focus on key elements such as prime locations, attractive design and lifestyle features that appeal to its target market. 1953 condo is the most recent advancement of the company that envelops the dedication to supply quality houses beyond the assumptions of the purchasers. Targeted to be completed by year 2023, 1953 will adopt a unique Art Deco style in tune with the project’s namesake 1953. Sitting on a plot of 17,938 square feet, the developer has cleverly merged the seven conserved shophouses with a block of modern concept apartments to revamp this historical site. The project continues the tradition of the archetypal Singapore shophouse with commercial shops at ground floor and living spaces above that. The architecture of the development will evoke a sense of historical nostalgia balanced with the modern sensibilities of today’s home buyers. Complementing the living necessities for its residents, there are a range of state-of-art facilities provided for the indulgence of the residents at Level 4 of 1953 such as communal swimming pool, flora sanctuary, western grill corner, fitness corner, lantern walk, and a cascading water feature. 1953 is strategically located on the prime Central Business District fringe. Farrer Park MRT Station (approximately 7 minutes) and Boon Keng MRT Station (approximately 5 minutes) are just a walking distance away to provide seamless connectivity to the different parts of Singapore. Vehicles owners can take Tessensohn Road, Balestier Road and Central Expressway to get to the business hub or Orchard Shopping Paradise in the city. The merging of commercial and residential aspects of this mixed development greatly increase accessibility and convenience to the residents. Besides, it is situated in a convenient location, close to all local amenities. Bendemeer Primary SchoolBendemeer Scondary SchoolFarrer Park Primary SchoolHong Wen SchoolFarrer Park HospitalTan Tock Seng HospitalKwong Wai Shiu HospitalMustafa CentreJalan Besar PlazaCity Square MallCentrium Square 1953 is a 6 storey building with 14 retail shops and 58 units of apartment. 7 units of the retail shop and 9 units of the apartment are housed in the conserved shophouses, named “Heritage Collection”. Another 7 units of the retail shop and 40 units of the apartment named “Modern Collection”are in the new part of 1953 which also housed 9 “Penthouse Collection” apartments. The apartments come in 4 different styles ranging from one to five bedroom units with the built-up area of 441 square feet to 1,658 square feet. The 14 units of retail shop are in the size 366 square feet to 786 square feet.Project Name: 1953Type: Mixed developmentDistrict: 8Configuration: 58 residential units, 14 commercial strata units and addition & alteration to 7 units of conserved shop housesSite area: 17,938 square feet Unit types for 1953:Heritage Collection:Retail: 700 - 786 square feet2 Bedroom with Study: 614 - 786 square feet3 Bedroom: 1,130 - 1,152 square feet4 Bedroom: 1,399 square feetModern Collection:Retail: 366 - 560 square feetStudio: 441 square feet1 Bedroom: 549 square feet1 Bedroom with Study: 506 - 614 square feet3 Bedroom: 786 - 937 square feet3 Bedroom with Study: 915 - 969 square feetPenthouse Collection:2 Bedroom + Family: 1,130 square feet3 Bedroom: 1,120 square feet3 Bedroom + Family: 1,227 - 1,238 square feet5 Bedroom: 1,507 square feet5 Bedroom with Study: 1,658 square feet The following projects are by the same developer as 1953:The Verandah ResidencesSixteen35 ResidencesSea Pavillion Residences The following developments are in the same neighourhood as 1953:CitylightsKerrisdaleCity Square ResidencesCavan SuitesForte SuitesCityscape at Farrer Park
View project details















