$1,1xx PSF. 3.5 Storey Cluster House @ Lange 28, Kovan
Lange Road , Kovan - D19 Landed Agent 8886-6800
S$ 2,500,000
Starting From3
Beds
5
Baths
2,099
sqft (floor)
S$ 1,191
psf (floor)
860 m (10 mins) from NE13 Kovan MRT
About this property
Rare $1,1xx psf cluster house in Lange 28, kovan. All ensuites bedroom
*3D SCAN/VIRTUAL TOUR ON ENQUIRY
Charming 3-Storey Cluster House @ Lange 28, District 19.
Basic specification
Lot Area: 195 sqm / 2099 sqft
TOP 2008
999-year leasehold
1 Personal Lot + Resident Parking
3 En-suites 5 Bathrooms
Attic with a roof terrace
Exclusive boutique cluster houses that comprise 5 units only
[Key Highlights]
Residents who enjoy an active lifestyle surrounded by nature will find Lange 28 perfectly positioned. Within a mere 3-minute drive, they can unwind or work out amid the lush greenery of Richards Avenue Park and Surin Avenue Neighborhood Park— offering the ideal balance of tranquility and recreation.
Strategically located near both Kovan and Serangoon MRT stations, Lange 28 provides seamless connectivity across the island. For those who drive, major routes such as Upper Serangoon Road, Tampines Road, and the Kallang–Paya Lebar Expressway (KPE) ensure swift access to the Central Business District and popular shopping destinations in the city
With nearby condominiums reaching prices of up to $3 million, this 999-year leasehold cluster house offers remarkable value at just $1,1xx PSF. It’s an attractive opportunity for families seeking more space and a landed-style living experience — all without stretching their budget.
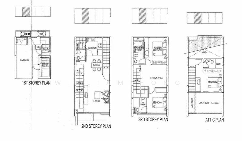
Property Details By Level:
Level 1:
Bomb Shelter
Carpark lot
Water closet
Level 2:
Living Hall
Store room
Open Kitchen
Yard Area
Level 3:
2 En-suites bedroom
Family Area
Attic:
1 En-suite bedroom
Open roof terrace
NOTE:
All land and built-up areas are approximate measurements and subject to final survey and shall not form part of any offer or contract nor constitute any warranty by the sale.
Contact me at 8.8.8.6.6.8.0.0 to arrange for an exclusive viewing appointment now!
Brought to you by,
William Hong
Huttons Landed Division
Charming 3-Storey Cluster House @ Lange 28, District 19.
Basic specification
Lot Area: 195 sqm / 2099 sqft
TOP 2008
999-year leasehold
1 Personal Lot + Resident Parking
3 En-suites 5 Bathrooms
Attic with a roof terrace
Exclusive boutique cluster houses that comprise 5 units only
[Key Highlights]
Residents who enjoy an active lifestyle surrounded by nature will find Lange 28 perfectly positioned. Within a mere 3-minute drive, they can unwind or work out amid the lush greenery of Richards Avenue Park and Surin Avenue Neighborhood Park— offering the ideal balance of tranquility and recreation.
Strategically located near both Kovan and Serangoon MRT stations, Lange 28 provides seamless connectivity across the island. For those who drive, major routes such as Upper Serangoon Road, Tampines Road, and the Kallang–Paya Lebar Expressway (KPE) ensure swift access to the Central Business District and popular shopping destinations in the city
With nearby condominiums reaching prices of up to $3 million, this 999-year leasehold cluster house offers remarkable value at just $1,1xx PSF. It’s an attractive opportunity for families seeking more space and a landed-style living experience — all without stretching their budget.
Property Details By Level:
Level 1:
Bomb Shelter
Carpark lot
Water closet
Level 2:
Living Hall
Store room
Open Kitchen
Yard Area
Level 3:
2 En-suites bedroom
Family Area
Attic:
1 En-suite bedroom
Open roof terrace
NOTE:
All land and built-up areas are approximate measurements and subject to final survey and shall not form part of any offer or contract nor constitute any warranty by the sale.
Contact me at 8.8.8.6.6.8.0.0 to arrange for an exclusive viewing appointment now!
Brought to you by,
William Hong
Huttons Landed Division
Amenities
Air-conditioning
Balcony
Renovated
Affordability
Can I afford this property?
Tell us your monthly income and expenses to see if this home fits your budget.
Mortgage breakdown
Est. monthly repayment
S$ 0 / mo
S$ 0 Principal
S$ 0 Interest
Upfront costs
Total downpayment
S$ 0
Downpayment
S$ 0 Loan amount at 0% Loan-to-value
FAQs
The sale price of this unit at $1,1xx PSF. 3.5 Storey Cluster House @ Lange 28, Kovan is S$ 2,500,000.
Current PSF at $1,1xx PSF. 3.5 Storey Cluster House @ Lange 28, Kovan is about S$ 1,191.04 psf.
The estimated loan repayment is S$ 7,330 / mo.
$1,1xx PSF. 3.5 Storey Cluster House @ Lange 28, Kovan is located at Lange Road , Kovan - D19 Landed Agent
8*****
Hougang / Punggol / Sengkang .
Floor size of this unit at $1,1xx PSF. 3.5 Storey Cluster House @ Lange 28, Kovan is 2,099 sqft.
Explore other options in and around Hougang / Punggol / Sengkang
Based on the property criteria, you might be interested on the following
Cluster House For Sale
Nearest MRT Stations