Waterfront Gold
750 Bedok Reservoir Road
S$ 6,000 /mo
Negotiable3
Beds
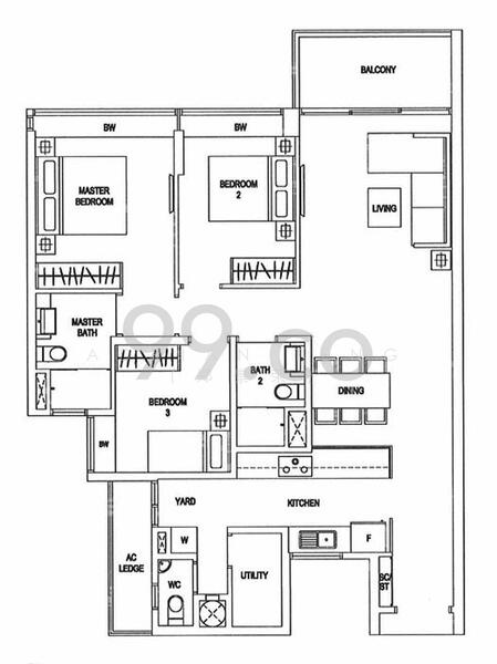
3
Baths
1,195
sqft (floor)
410 m (5 mins) from DT30 Bedok Reservoir MRT
Available from 31 Jan 2026
About this property
Rare reservoir view, spacious and bright house. Do not miss!
Rare, good size 1292sqft, 3 bedroom for rent
!!!Reservoir view!!!
!!!Unblock, Full Privacy!!
Amenities and eateries nearby
Convenient location. Well linked
Functional layout to place furniture
️Walk to MRT
️Short drive to city, highway (PIE)
️Food heaven, bistro, restaurant, eateries nearby
️Breezy unit. Good cross wind ventilation
️Spacious Common bedroom to fit Queens
Contact Adrian 8. 8. 0. 0. 6. 2. 2. 2. NOW!
Contact me for an exclusive viewing experience. Act now!
Adrian Teng
Hp: 8 8 .0 .0 6. 2. 2. 2.
Propnex Realty Pte Ltd (Luxury Team)
Propnex Millionaire Producerp
Associate Group Director
Disclaimer: All land and built up areas are base on approximate measurements and are subject to final survey and shall not form part of any offer or contact or constitute any warranty by the salesperson and shall not be regarded as statements or representations of fact.
Common facilities
Barbeque pits
Basement car park
Clubhouse
Fun pool
Waterfront Gold

Located at Bedok Reservoir Road, 479256, East Coast (D15-16), Waterfront Gold is a 99 year leasehold condominium in District 16. Completed in 2014, Waterfront Gold was developed by FCL Peak Pte Ltd. There are a total of 362 units spread across 15 floors at this property. As the name suggests, Waterfront Gold is actually located at the banks of Bedok Reservoir. This waterfront residential development is an extraordinary property that has magnificent views of the reservoir’s calm, glistening waters. Waterfront Gold is offers its residents a clean, peaceful and tranquil environment to return home to after a long day and is an ideal home for individuals as well as for families. While it is not in the city center, residents here will not have any problems reaching the city and all the conveniences that the city has to offer. Residents here can also take advantage of the full condominium facilities that are offered. There is a lap pool and a spa pool to relax and rejuvenate at, a fun pool and a wading pool for children, and tennis courts and a gymnasium for those who want to keep fit. There is also a barbeque area to cook up a delicious mouth-watering meal. For vehicle owners, there is a basement car park with plenty of parking bays. Waterfront Gold is indeed ‘gold’ for those who are looking for a home in this area. Waterfront Gold enjoys easy accessibility via public transportation. The closest MRT station located to the Waterfront Gold is the Bedok Reservoir MRT Station which is just a 5 minute walk away (410m). There are plenty of bus stops located in the area as well. The closest bus stops are located at the Waterfront Key and opposite the Waterfront Key, both of which are only a 2 minute walk away (130m). This is followed closely by the bus stops after the Waterfront Waves and Opposite the Waterfront Waves which are about 170 meters away. For vehicle owners, Waterfront Gold is easily accessible via main roads such as the Bedok Reservoir Road which is connected to Tampines Avenue 1 and Bedok North Road. Waterfront Gold also enjoys good connectivity to its surrounding areas as well as to the other parts of Singapore via major expressways such as the Pan Island Expressway. The East Coast Parkway is also easily reachable. Waterfront Gold is about a 20 minute drive to the Orchard Road Shopping District as well as the Central Business District via the Pan Island Expressway. In addition to this, Waterfront Gold is actually just walking distance to the Bedok Town Park. Sheik Jalani RestaurentT Bob's CornerHokkien Fried Prawn NoodleSeng Kee Black Chicken HerbalAm Mee Teochew Fishball Noodles Damai Secondary SchoolBedok Green Secondary SchoolRed Swastika SchoolTemasek Polytechnic Innovation & EntrepreneurTemasek Polytechnic School of HumanitiesPaper Scissors Stone Montessori Kindergarten Bedok Reservoir VillageBedok Shopping ComplexEastlink MallEastpoint Mall Waterfront Gold is a 99 year leasehold condominium that is located in District 16. This 15 storey property has a total of 362 units and was completed in 2014. The sub sale price range for units here at Waterfront Gold ranges between S$740,000 to S$1,830,000 per unit while the rental price range is between S$950 to S$3,200 per unit. Project Name: Waterfront GoldType: CondominiumDistrict: 16Configuration: 15 floors, 362 units Unit Types1 bedroom (581 - 667 square feet)2 bedrooms (872 - 893 square feet)3 bedrooms (1,012 - 1,399 square feet)4 bedrooms (1,475 - 1,647 square feet) Other projects by the same developer as Waterfront Gold includeCamelot by the WaterCompass HeightsCote D’AzurCaspianClementiWoods Condominium Other developments that are in the same neighborhood as Waterfront Gold that are worth checking out include :eCOGrandeur Park ResidencesUrban VistaThe GladesArchipelagoThe Bayshore
View project details














