The Trizon
8 Ridgewood Close
S$ 5,200 /mo
Negotiable2
Beds
2
Baths
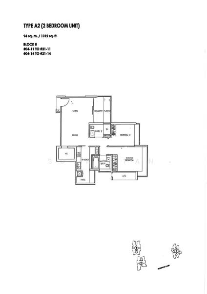
1,012
sqft
1.2 km (14 mins) from EW22 Dover MRT
Available from 15 Jun 2026
About this property
Swimming Pool View 2 Bedrooms For Rent
- Pool view
- Functional layout
- Well kept
- Avail: Mid June 2026
Amenities
Air-conditioning
Balcony
Bathtub
Intercom
Common facilities
Barbeque pits
Gymnasium room
Jacuzzi
Jogging track
The Trizon

The Trizon is a freehold Condominium development that is located at Ridgewood Close in District 9. It is a Condominium project that was completed recently. The project was completed in 2013 with a total of 289 units available for sale or rent. The Condominium development is located close to public transportation that allows residents to move easily from one place to another from the condominium. There are many shops and amenities close to the Condominium development which would ease the process for residents and they do not need to go far to find what they need as it is built in a strategic place. The project was developed by Ideal Homes Pte Ltd. - The Trizon is a beautiful Condominium development that has many charms to it. There are various facilities that residents can enjoy while living in The Trizon. Residents of The Trizon would not have to travel far to get their basic necessities as everything is close within their reach. Residents can enjoy the Barbeque Area, Jacuzzi, Gymnasium Room, swimming pool, tennis court, a jogging for those who love to take a morning or evening jog and they even provide a swimming pool for the residents to enjoy. There is a number of public transportation close to The Trizon that residents can make use of. The closest MRT station to the Condominium is Dover MRT Station. The closest bus stops are located at Royal Mas Singapore Pte Ltd, Bet House Nos. 33/35/Mt Sinai Dr, Evian Condo/Moonbeam Walk and Opposite School Of Science & Tech. For those with vehicles, the shopping district located at Orchard Road can be easily accessed via the Holland Road, Dunearn Road and Ayer Rajah Expressway in 20 to 25 minutes. Amico Chef SingaporePoulet Vous Rotisserie ChickenPonte & Partners Pte LtdThe Meeting Place Seafood BarbequeDelifrance Singapore Little Ones KindergartenKinderland Preschool @ Pandan ValleyNexus International SchoolNew Town Secondary SchoolEunoia Junior College Wan Seng Medical HallRidgewood Medical ClinicKinder Clinic Pte LtdHo Medical Centre Pte Ltd FairPrice Clementi Ave 2U Stars Supermarket @ 345Cold Storage JelitaCasabella Mini-mart The Trizon is a Condominium development that is made up of a total of 289 units in 23-storey high building. There are 5 types of unit available with various layouts that residents can browse through. The size for the unit ranges between 1,012 square feet to 7,083 square feet. The layouts for the units in The Trizon aim to provide residents with homes that is comfortable for working adults, couples or families looking to own a spacious and manageable Condominium unit. The sale price for the units can go up to S$ 7,188,888. The rental for the units ranges between S$ 4,600 to S$ 8,500. Project Name: The TrizonType: CondominiumDistrict: 9Configuration: 210 residential units Unit Types: 2 bedroom (1,012 sqft – 1,345 sqft)3 bedroom (1,550 sqft – 21,067 sqft)4 bedroom (2,110 sqft – 2,443 sqft)5 bedroom (5,737 sqft)6 bedroom (7,083 sqft) The following developments are in the same neighborhood as The Trizon:8 St ThomasMartin ModernScotts SquareThe Ritz-Carlton ResidencesTwentyOne Angullia ParkHaus On Handy
View project details


























































