The Skywoods

7 Dairy Farm Heights

S$ 5,800 /mo

Negotiable

Beds

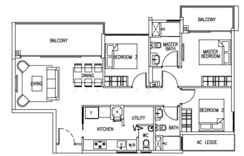
3

Beds

Baths

3

Baths

sqft (floor)

1,173

sqft (floor)


810 m (10 mins) from DT3 Hillview MRT

loading-bay-o

Ready to move in Condominium


photo

Photos

floorplan

Floor Plans

video

Videos

virtualTour

Virtual Tour

map

Map View

Property details

home-open-o
Condominium for rent
furnished-o
Partially furnished
document-with-lines-o
TOP in Jan 2017
asterisk-o
2 years lease
calendar-time-o
Listed on 9 Oct 2025
document-with-lines-o
Listing ID - 21911948

About this property

The Skywoods

Nice ground floor unit

Mins walk to Hillview MRT station (downtown line)
Next to GESS International School


Unit has high ceiling
Pics are before putting up curtains and lights

Near bukit Panjang plaza, the Rail Mall, Junction 10, HillV2 Mall

3 bedder plus utilities
Full condo facilities


April Koh
Cea Reg no R060054J
9*****
ERA
Amenities
aircon-o

Air-conditioning

balcony-o

Balcony

kitchen-o

Cooker hob/hood

asterisk-o

Fridge

Common facilities
security-access-control-o

24 hours security

taxi-o

Drop off point

outdoor-gym-o

Fitness corner

lounge-o

Function room

Key to home analytics
Track this home's value
Get access to home valuation, mortgage tracking and home services all in one place.
trend iconTrack now

The Skywoods

The SkywoodsLocated in a very quiet, as of yet undeveloped part of Bukit Panjang in District 23, The Skywoods is a residential development comprised of six 15 storey towers. Its 420 units range from 1 bed + study up to penthouses. The 3 and 4 bed units at The Skywoods come in a choice of standard and compact, and there is also the option of going for the higher ceilinged (4.25 m) 3 bed ground floor units. The Skywoods is – in Singapore terms at least – an isolated development surrounded by a green, natural environment. This does mean there are no amenities in its immediate vicinity, but it is still only an 8-minute walk to the nearest MRT and shopping mall. The Skywoods is developed by Bukit Timah Green Development Pte Ltd, a joint venture between Hock Lian Seng Holdings Limited, King Wan Corporation Limited and TA Corporation Ltd.The Skywoods – Unique Selling PointsThe overriding reason that people would choose to live in The Skywoods is the desire to be surrounded by natural beauty and scenery, and that is exactly what you get. It overlooks the 63 hectare Dairy Farm Nature Park, and due to The Skywoods’ position on a slight hill, it offers residents a tranquil and green, scenic and unspoilt view that is almost unheard of in Singapore.The Skywoods – AccessibilityThe relative isolation of The Skywoods (certainly in terms of Singapore) does mean that there are not a host of amenities on its doorstep, but that should not be a concern for those buying property here. That said Hillview MRT Station is only an 8-minute walk from the development. From there you Bugis is a 20 minute ride and you can be in the CBD in under 40 minutes. Residents of The Skywoods with a car can be on the BKE very quickly and easily, a result of the very low traffic volumes in the area, from where the other expressways are accessible.The Skywoods - Amenities & AttractionsDining near The Skywoods:Tenryu Dining and TeahouseWine ConnectionKinsa Sushi RestaurantJoyden Canton KitchenThe ARTShopping near The Skywoods:Hill V2The Rail MallBeauty World Shopping CentreBukit Timah Shopping CentreWest MallSchools and Education near The Skywoods:CHIJ Our Lady Queen of PeaceAssumption English SchoolAssumption Pathway SchoolChestnut Drive Secondary SchoolThe Skywoods - Project informationThe Skywoods is a residential development located in a hitherto undeveloped part of Bukit Panjang overlooking Dairy Farm Nature Park. Its 420 units, split over six 15 storey blocks range from 1 bed + study up to 4 bed units, as well as 28 penthouses. The 3 and 4 bed units come in either compact or standard configurations. The ceiling height at The Skywoods depends on the units. The ground floor 3 bed 1,184 sqft units come with an impressive (if slightly wasted in some areas) ceiling height of 4.25m. Other units (apart from the 15th floor penthouses which have a height of 3.4m) have 3.25m high ceilings.Project Name: The SkywoodsAddress: Dairy Farm Heights S677666Type: CondominiumSite area: Approx. 188,863 sqftTenure: 99-years leasehold from 21st December 2012District: 23Configuration: 420 units over 6 blocks and 15 storeysUnit types:28 x 1-bedroom + study (527 – 581 sqft)70 x 2-bedrooms (614 – 840 sqft)84 x 3-bedrooms compact (872 – 1,119sqft)126 x 3-bedrooms standard (990 – 1,184 sqft)56 x 4-bedrooms compact (1,119 – 1,389 sqft)28 x 4-bedrooms standard (1,292 – 1,496 sqft)28 x Penthouses: 1-bedroom + study to 4-bedrooms (592 – 1,625 sqft)Parking lots: 420 + 3 handicap lotsExpected TOP: Dec 2016The Skywoods - Historical DataAs of December 2015, the number of caveated transactions at The Skywoods stood at approximately 270 out of a total number of 420 units available. The majority of those fell in the $1M to $1.5M range. With regards to the median prices for The Skywoods, from those sales the figures for the 1 bed+ study was $1,342 psf, that for the 2 bed was $1,292 psf and that for the 3 bed compact and 3 bed standard were $1,225 psf and $1,104 psf respectively. The figures for the 4 bed compact and 4 bed standard were $1,167 psf and $1,166 psf while that for the penthouse was $1,189 psf.The Skywoods - Nearby ProjectsThe following developments are in the same neighbourhood as The Skywoods:The Kingsford Hillview Peakthe HillierHillview ParkGlendale Park

View project details
FAQs
There are 3 bedroom(s) with 3 bathroom(s) in this unit.
The rent of this unit at The Skywoods is about S$ 5,800 /mo.
The current rental PSF at The Skywoods is about S$ 4.94 psf.
The Skywoods is located at 7 Dairy Farm Heights Dairy Farm / Bukit Panjang / Choa Chu Kang West (D22-24).
Floor size of this unit at The Skywoods is 1,173 sqft.