The Esta
37 Amber Gardens
S$ 7,000 /mo
3
Beds
3
Baths
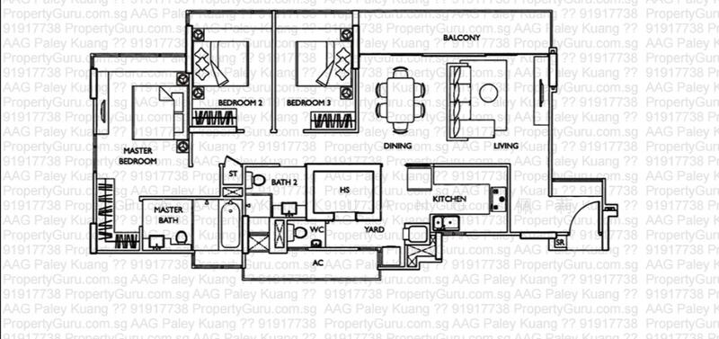
1,345
sqft (floor)
650 m (8 mins) from TE25 Tanjong Katong MRT
Ready to move in Condominium
About this property
Good Size, Good Facing, Good Stack with Good Location
Pls Call Paley 9***** / Marcus 9*****
- Act Fast , Don’t Miss !
- Freehold
- 3 Brm
- 1345sq ft
- High flr
- Partial Furnished
- Available 1 Weeks of Jan 2026
- Regular Shape Balcony
- Unblock Nice View
- No West Sun
- Mins to future MRT Station
- Available Immed
- Near Katong i12 mall, Parkway Parade Shopping Mall, Katong Shopping Ctr,
- Many Eateries and Restaurants Around
Description for This Project
The Esta is a Freehold apartment property located at Marna Road in District D15. The Esta is close to Dakota MRT CC8 , and the future Tanjong Katong TE25 of Thomson East Coast Line that is due completion in 2023.
Amenities near The Esta
The Esta is a short drive to Katong Shopping Centre and Paramount Shopping Centre. It is also not far from several
schools such as Tanjong Katong Primary School, Tanjong Katong Secondary School and Tanjong Katong Girls School.
The Esta is accessible via Tanjong Katong Road, Mountbatten Road and East Coast Parkway Expressway (ECP).
Amenities
Air-conditioning
Balcony
Bombshelter
Cooker hob/hood
Common facilities
Barbeque pits
Clubhouse
Fitness corner
Function room
The Esta

The Estais aFreeholdapartment property located atMarna Roadin DistrictD15.It is developed by Richdeal Ptd Ltd. it comprises of 21 floors and 400 units. it is completed in 2008. The Esta is full of facilities such as; BBQ area, fitness corner, gymnasium car parking, playground, basement car parking, swimming pools, 24 hours security, pool deck, tennis court, clubhouse, and many more other facilities as well. The Estais close toDakota MRT CC8, and the futureTanjong Katong TE25ofThomson East Coast Linethat is due completion in2023. The Estais a short drive toKatong Shopping CentreandParamount Shopping Centre. It is also not far from several schools such asShaws Preschool @ Mountbatten Road, Shaws Little League, and Voice Works Language Centre.The Estais accessible viaTanjong Katong Road,Mountbatten RoadandEast Coast Parkway Expressway (ECP). There are various bedrooms and bathrooms at various sqft areas as per the personal demand of people. The Estais one of the most luxurious yet affordable residential developments in the area. There are a swimming pool and steam bath within the building which enhances the comfort of the residents. A gymnasium room is also available within the development. Furthermore, a tennis court is also present for everyone. Moreover, the facility of roof terrace ensures that anyone can get a fresh breeze and an adequate amount of sunshine without any hindrance. Lastly it has a walkway and ramp to its basement car parking which is designed in a way to be easily accessible yet secure for the residents. Lastly, there is a barbeque area for food lovers. The Esta is located at the place where all the necessities of daily life are easily available such as; well-known and reputable schools of the area; Shaws Preschool @ Mountbatten Road, Shaws Little League, and Voice Works Language Centre is short walking distance away. Well-known hospitals such as; Wellness Homeopathy, Guardian Singapore and Kai Yuen Chinese Medical Hall are short drives away from The Esta. Supermarket Katong Mobile, FairPrice Finest Katong Village Hotel and Lee Yee Heng Trading Company are few minutes' walking distances away. ATMs UOB and DBS ATM - Katong Shopping Centre is 3 minutes' walking distance away. Parks and gyms of the area; Katong park, Haig Walk and Parkland Green are short walking distance away. Restaurants Delicious Boneless Chicken Rice, Miki Kitchen. Oriental Cuisine and Man Zhu Restaurant are 2 to 5 minutes' walking distance away. Malls Katong Shopping Centre, Odeon Katong Shopping Complex and Odeon Katong Shopping Complex are 3 to 5 minutes away. Places of worships Cornerstone Community Church and Saint Hilda's Church Marine Parade are 5 to 8 minutes walking distance away from The Esta. Shaws Preschool @ Mountbatten RoadShaws Little LeagueVoice Works Language CentreWellness HomeopathyKai Yuen Chinese Medical HallKatong Shopping CentreOdeon Katong Shopping ComplexOdeon Katong Shopping Complex The Estais aFreeholdapartment property.It comprises of 21 floors and 400 units. It is completed in 2008. There are various bedrooms and bathrooms at various sqft areas as per the personal demand of people. Project Name: The EstaDistrict: 15Configuration: 400 residential units Unit types : 3 bedrooms with 3 bathrooms (1399 sqft )4 bedrooms with 3 bathrooms (1410 sqft )4 bedrooms with 3 bathrooms (1561 sqft )4 bedrooms with 3 bathrooms (1474 sqft ) The following developments are in the same neighbourhood as The Esta: Amber ParkMeyer MansionSeaside ResidencesSilverseaAmber 45Frankel Estate
View project details



















