The Compass At Chancery
6U Chancery Hill Road
S$ 9,500 /mo
Negotiable4
Beds
4
Baths
2,506
sqft (floor)
720 m (9 mins) from TE10 Mount Pleasant MRT
Available from 15 Mar 2026
About this property
15 Mar 2026. Townhouse. 3 Storey with basement. 2 Private Car Park Lot
- Lease Term: Min 2 years lease
- Furnished Term: Partial Furnished.
- The Compass @ Chancery.
- Townhouse / Cluster House.
- 3 Storey with Basement
- 2 Private Car Park Lots
- 4 Bedrooms + 1 Maid’s room
- 4 Bathrooms + 1 Helper’s Toilet
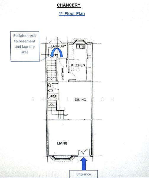
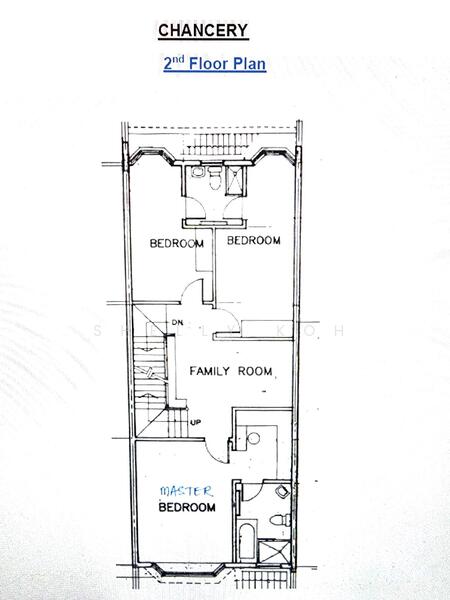
House Layout:
- Basement: 2 Car Private Park lots, Maid’s room + Maid’s Toilet.
- Level 1: Living, Dining & Kitchen. 1 Common Bathroom.
- Level 2: Master Bedroom with ensuite Bathroom, 2 Common Bedrooms with 1 Common Bathroom. Family Area
- Level 3: 1 Common Bedroom with ensuite Bathroom,
Facilities:
- 24-hour security,
- Swimming pool,
- Gymnasium,
- Children’s playground and
- BBQ area
For viewing appointment; Please call:
Shelly: 9*****
SK: 9*****
Amenities
Air-conditioning
Cooker hob/hood
Dishwasher
Dryer
Common facilities
Barbeque pits
Swimming pool
The Compass At Chancery
The Compass At Chancery is a freehold apartment located at Chancery Hill Road in District D11 of Singapore. It comprises of 23 units. There is no information of the developer. The Compass At Chancery’s main selling point is its strategic location which makes it easily accessible while providing convenience to its residents. The residence is surrounded by many amenities of eateries, supermarkets, retailing stores which are mostly available within working distances. The Compass At Chancery is safely guarded under 24-hour security, hence providing ease of mind to residents. Residents living in The Compass At Chancery can enjoy facilities such as a swimming pool and barbecue area. Besides, situated nearby are a few parks such as Novena Rise Park, Novena Park and Gentle Drive Playground, providing the residents of The Compass At Chancery abundant of choices for recreational activities. The Compass At Chancery is accessible via nearby Novena, Newton and Toa Payoh MRT Stations. The property is easily linked via many expressways. The Compass At Chancery is highly accessible via Thomson Road and Balestier Road. The nearest bus stop locations are situated at Novena Lodge and Thomson Medical Centre. Anglo-Chinese Junior SchoolFirst Toa Payoh Secondary SchoolKeng Cheng SchoolSan Yu Adventist SchoolSt Jospeh Institutional International Family Health Clinic & SurgeryOnedoctors Family ClinicChng Dental SurgeryDr Yvonne Chan Clinic For WomenJeanette Chen Women’s Clinic Velocity @ Novena SquareUnited SquareBalestier Hill Shopping CentreCold Storage – NovenaCold Storage – Chancery Court The property is comprising a total of 23 units. This property consists of 3 storey building. At basement level, there is a good size helper’s room with bathroom. At level 1, there are living room, dining room, kitchen and toilet. While for level 2, there are a room with ensuite and a master room. Lastly for level 3, there is a room with ensuite. The units come at different sizes ranging from 2405 sqft to 3500 sqft. This project has few types of layout such as the house with 3 bedrooms to 4 bedrooms. Project Name: The Compass At ChanceryType: ApartmentTenure: FreeholdDistrict: 11Configuration: 23 residential units Unit types for The Compass At Chancery:3 bedrooms and 3 bathrooms3 bedrooms and 4 bathrooms3 bedrooms and 5 bathrooms4 bedrooms and 4 bathrooms4 bedrooms and 5 bathrooms The following developments are in the same neighbourhood as The Compass At Chancery:Fyve DerbyshirePullman ResidencesNeu at Novena35 GilsteadThe Whitley Residences26 Newton
View project details























