The Amarelle
49 Lim Ah Woo Road
S$ 4,299 /mo
Negotiable2
Beds
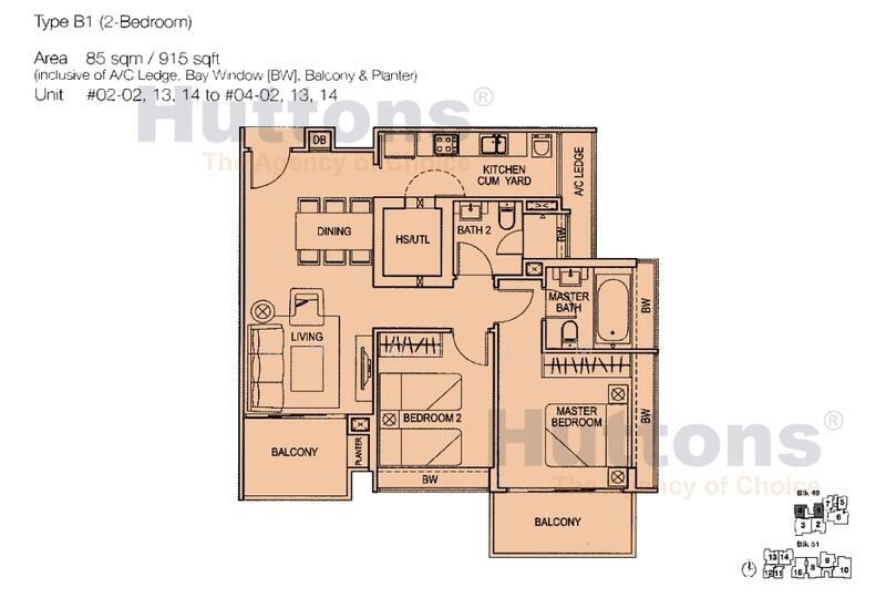
2
Baths
915
sqft (floor)
640 m (8 mins) from EW8/CC9 Paya Lebar MRT
Ready to move in Condominium
About this property
Near paya lebar mrt and plq mall. 2 bedrooms with enclosed kitchen
✅️6 mins walk to PLQ Mall
✅️Spacious apartment with 2 balconies
✅️Pool view
✅️Enclosed kitchen
✅️Store room
✅️Lap pool, Gym room, BBQ pits and playground
✅️Available from 15th January 2026
✅️Call Chloe at 9***** for viewing now
Amenities
Air-conditioning
Balcony
Bathtub
Bombshelter
Common facilities
24 hours security
Barbeque pits
Gymnasium room
Swimming pool
The Amarelle

The Amarelle is a freehold apartment development located along Lim Ah Woo Road in District 15. It is located about 6 kilometres northwest from the city centre, and even closer to the East Coast Park. The Amarelle was built in 2009 by Ecco Properties Pte Ltd., one of the leading private real estate development companies in Malaysia, with more than thirteen years of experience in developing luxury residences. Cosy and exclusive, as it has been called by many of its reviewers, this family themed home offers its residents an urban lifestyle coupled with the peace and tranquillity one will find in the suburbs. It stands out because of its façade of brown and turquoise shades, which make it appealing to the eye. One of its best features is the large, L-shaped outdoor swimming pool, well maintained by the maintenance staff. Located between the two blocks, it is closed off from the public eye. The Amarelle is located in a residential neighbourhood surrounded by many amenities. The OneKM shopping mall at Paya Lebar Square offers grocery stores, shops, bars, cafes, restaurants, and other amenities for one’s daily necessities. With plenty of food from its nearby eateries in malls, and its Haig street market and various shophouses in Geylang, Katong and Joo Chiat area, it is well suited for spending a Sunday afternoon with friends. The Amarelle is perfect for young families, as it is close to many schools including Chung Cheng High School and Tanjong Katong Secondary School. Step outside, and get some sun on the patio, or take a swim in the swimming-pool while your children play in the indoor wading pool. On a sunny afternoon you can invite your friends and have a picnic, using quality-material BBQ pits. The 24-hour security makes this residence a safe place to live. The development also comes with an indoor gym, making The Amarelle a rather exceptional dwelling place. The Amarelle is located less than a 10-minute walk away from Paya Lebar MRT, an interchange station for both the Circle and East West lines. A multitude of bus stops can also be found less than a 5-minute walk away that can take you straight into downtown Singapore. For private vehicle owners, travelling to the business district will take around 25 minutes via the Pan Island Expressway (PIE). Alternatively, those heading to the Orchard Road shopping district can take the PIE and expect to reach within 15 – 20 minutes. Stick To EatMerdandy bar & CaféBaikohken RamenKong Hwa SchoolDunman Primary SchoolIP Academy SingaporeCity PlazaTanjong Katong ComplexPaya Lebar SquareParkway East HospitalTay ClinicKatong Family Clinic The Amarelle is a freehold apartment consisting of two blocks and 60 total units. With prices ranging from S$ 795,000 to S$ 1,600,000, its cost per square foot is from S$ 1,297 to S$ 1,598. A typical apartment consists of two floors, and comes partially furnished. Upstairs there is the master bedroom, a suite and a balcony. Downstairs is the kitchen, dining room, bathroom, bomb-shelter, living-room, study and another balcony. The condo also comes with air-conditioning, a cooker, fridge, patio, washing machine and a water heater. Project Name: The AmarelleType: Freehold ApartmentDistrict: 15 Unit Types:1-bedroom (549 – 1,000 sqft)2-bedroom (900 – 1,200 sqft)3-bedroom (1,100 – 1,700 sqft)4-bedroom (1,400 – 1,500 sqft) The following developments are in the same neighbourhood as The Amarelle:11 Amber Road123 Langsat Road16 @ Amber
View project details
























