The Alps Residences
107 Tampines Street 86
S$ 3,600 /mo
Starting From2
Beds
2
Baths
700
sqft (floor)
Available from 23 May 2026
About this property
Spacious 2 Bed 2 Bath For Rent
• 883 sqft
• Bright and Breezy
•Well-maintained & nicely renovated
• Tasteful renovations done by owner
• Excellent move-in condition
•Spacious & functional layout
•Breezy with good sized balcony
•Minutes walk to amenities
•Walking distance to Bus Stop
•Shuttle bus provided
Contact Agnes 8***** for exclusive viewing
Amenities
Air conditioner
Balcony
Security guard
Common facilities
24 hours security
Barbeque pits
Children's playground
Clubhouse
The Alps Residences

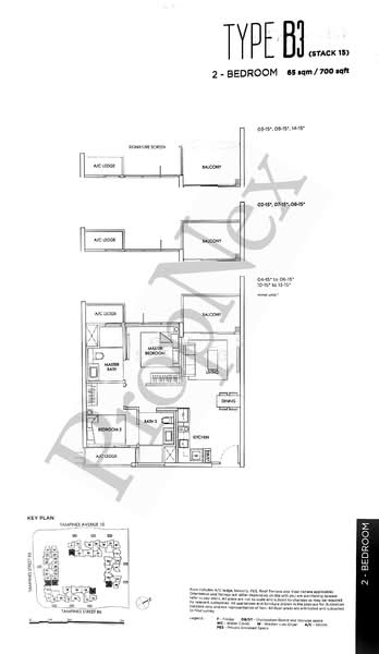
The Alps ResidencesSituated in the mature estate of Tampines along Tampines Street 86 in District 18, The Alps Residences is a very competitively priced, very well designed and built leasehold condominium completed in late 2019 comprising 626 residential units. Drawing inspiration from the Swiss alpine region, the condominium features architectural elements reminiscent of the Alps. Its cascading façade mirrors the natural contours of mountainous landscapes, while gabled structures echo traditional Swiss chalet roofs. Balconies are designed with a subtle "snowcap" element, collectively reflecting refined European design influences. Beyond its distinctive aesthetics, The Alps Residences offers thoughtfully planned unit layouts that prioritise space efficiency and practical living. Residents also enjoy a comprehensive range of condominium facilities.MCC Land (Singapore) Pte Ltd is part of the MCC Group in Singapore which is a subsidiary of the Fortune 500 company Metallurgy Corporation of China Ltd. It is a total building services provider with capabilities in property development, construction, project management, as well as engineering services. MCC Singapore is an ISO9001, ISO14001 and ISO18001 certified developer and has received numerous prestigious awards.The Alps Residences – Unique Selling PointsThe Alps Residences represents an ideal opportunity to buy into – at very competitive prices – a popular and sought-after area of Tampines. The development blends thoughtful design, quality finishes and practical layouts. It is located in a vibrant mature estate and benefits from strong transport connectivity and a wealth of amenities, making it suitable for families and investors alike.The Alps Residences – AccessibilityThe development is well served by public transport despite not being immediately adjacent to an MRT station. Tampines MRT (East-West and Downtown Lines) and Tampines West MRT (Downtown Line) stations are both within accessible distance. Multiple bus stops lie close by, including one just outside the side gate on Tampines Avenue 10 which offers express feeder services to these MRT stations. MCC provides two dedicated shuttle buses – one servicing Tampines MRT Station and the other linking to Poiz Residences, one of its mixed developments with a shopping mall.For drivers, Tampines Avenue 10 leads to the Tampines Expressway (TPE), which connects conveniently to the Pan Island Expressway (PIE) and East Coast Parkway (ECP). Courts Megastore, Giant and IKEA Tampines are a short drive away.The Alps Residences – Amenities & AttractionsDining near The Alps Residences:Soi Thai KitchenAlsalam RestaurantSeoul Garden RestaurantCrystal Jade KitchenJin Hock SeafoodHappy Hawkers (Blk 872C)Glasshouse Creamery (within the development) Shopping near The Alps Residences:Tampines 1Tampines MallCentury SquareIKEA TampinesOur Tampines Hub Schools and Education near The Alps Residences:St Hilda's Secondary SchoolEast View Primary SchoolSpringfield Secondary SchoolMeridian Junior CollegeUnited World College South-East Asia (UWC)Poi Ching Primary SchoolTemasek PolytechnicProject InformationThe Alps Residences is a residential development located in Tampines. MCC Land has created a very affordable condominium that concentrates on making the most of the space it has, including sacrificing balconies in many units to maximise internal layouts. The units are well designed, with quality improving proportionally with size and cost.Project Name: The Alps ResidencesAddress: Tampines Street 86, Singapore 528773Type: CondominiumSite area: approx. 168,567 sqftTenure: 99-year leaseholdDistrict: 18Configuration: 626 residential unitsUnit types:56 x 1BR (441 – 463 sqft)126 x 1BR + Study (495 – 506 sqft)183 x 2BR (689 – 700 sqft)55 x 2BR + Study (689 sqft)178 x 3BR (936 – 1,087 sqft)22 x 4BR (1,410 sqft)4 x 4BR Penthouse (1,668 – 2,088 sqft)2 x 5BR Penthouse (2,486 sqft)TOP: Late 2019 Facilities Include: 50m Lap Pool, Children's Pool with Water Play Accessories, Jacuzzi Pools, Tennis Court, Children's Playground, Gymnasium, Outdoor Fitness Corners, Outdoor Yoga Deck, Outdoor Living Corner, Recreational Lawn, Sky Gardens, Jogging Path, BBQ Pits, Function Room, Two Basement Carparks, EV Charging Stations, Full Security, Digital Condominium Management App, Two Commercial Shop Lots (Clinic and Ice Cream Café).Historical DataThe Alps Residences was officially launched on the weekend of 1st and 2nd October 2016, selling 270 of 626 units during that period. 88% of these were 1- or 2-bedroom units. Prices at launch were among the lowest for condominiums in Singapore, with 1-bedroom units starting at approximately $491,000. Launch pricing:1BR: $491k to $538k1+1BR: $536k to $610k2BR: $693k to $806k2+1BR: $691k to $751k3BR (smaller): $918k to $1.04m3BR (bigger): $1.04m to $1.14m4BR: $1.37m to $1.44mThe Alps Residences – Related ProjectsDeveloped by MCC Singapore, related projects include:Northwave ECSea HorizonThe Poiz ResidencesThe Alps Residences – Nearby ProjectsNeighbouring developments include:The SantoriniArc at TampinesQ Bay ResidencesWaterviewAdditional NotesAdjacent to the development, Paya Lebar Air Base is scheduled for relocation from 2030, opening land for a new mixed-use district with more housing options. The URA Master Plan 2025 envisages Tampines continuing its transformation into a vibrant Regional Centre, with further residential and commercial developments and pedestrianisation projects, which together are expected to enhance Tampines’ amenities and strengthen resale values in the area.
View project details
































