Sims Urban Oasis
12 Sims Drive
S$ 3,300 /mo
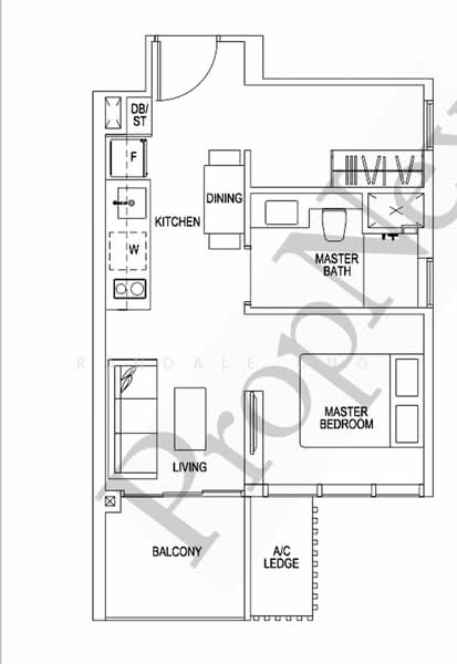
1
Bed
1
Bath
463
sqft
450 m (5 mins) from EW9 Aljunied MRT
Ready to move in Condominium
About this property
1 bedroom plus study unit with high ceiling, high floor
- unit comes in open concept style
- Available from 8th May 2026
- Comes partially furnished, bed frame, work table and chair, and white goods
- unblocked view
- Corner unit
- bettter ventilation as no blockage from neighbour blocks
- bright unit
- Comes with a work/study corner, that can be double up as a storage/guest room
- just stone throw to Aljunied MRT Station !
- for viewing, pls kindly arrange one day in advance
- please WhatsApp text me at 8*****
Amenities
Air-conditioning
Balcony
City view
Cooker hob/hood
Common facilities
24 hours security
Barbeque pits
Business centre
Clubhouse
Sims Urban Oasis

Sims Urban Oasis is a prestigious 99-year leasehold condominium in Sims Drive, District 14, Singapore. The surrounding areas, such as Eunos, Geylang, and Paya Lebar, are highly demanded because of their nearby transport links. This condominium property consists of 1,024 residential units in various types of apartments under the works of GuocoLand Limited.The development comprises one to five-bedroom types. Besides such types of apartments, other styles of residences do exist. Commercial areas and a childcare centre with amenities like basement car parking and community facilities will be convenient and cosy for all residents.Sims Urban Oasis is at the heart of the vibrant Eunos, Geylang, and Paya Lebar hub, where residents can seamlessly access prime destinations such as the Central Business District (CBD) and major expressways. The facilities in this condominium are cutting-edge, such as two 50-metre swimming pools, a fully equipped gym, and a rooftop sky park, all designed to enhance the living experience. Besides that, a modern facility with a thoughtful location close to an urban open space and regional cultural attraction ensures a pleasant mix of efficiency, luxury, and modern city life, which means that the residents of Sims Urban Oasis won't have anywhere else as good.Sims Urban Oasis is designed to provide maximum convenience. All public transport users have convenient access to the main roads. The same station lies within 5 minutes walking distance of the East-West MRT station(EW9) towards Aljunied. Along Mattar, the same station is also accessible by foot. Well, to the motorists, Sims Urban Oasis is almost reachable to all expressways, such as the Pan Island Expressway (PIE), Kallang-Paya Lebar Expressway (KPE), and Nicoll Highway, making it very easy for the motorists to get into key destinations such as CBD and Changi International Airport. This neighbourhood is quite interesting since it has Kallang Wave Mall, Paya Lebar Square, and NEX within walking distance.Sims Urban Oasis is exceptionally well planned for many facilities that cater to the needs of any lifestyle and let people live a wholesome life. Some of the facilities provided are given below:There are two 50-meter swimming poolsWell-equipped gymnasiumClubhouse for socialisationChildren's play area for kidsRooftop sky park with a view from all sidesCommercial units like childcare centreThese facilities are designed to de-stress, sweat out, and socialise among those dwelling there. The scenery is natural, keeping the community a peaceful abode where internationalised modern civilisation lives with nature.School and educational institute facilities that can be reached by parents visiting during their stay in Sims Urban Oasis are:Geylang Methodist Primary SchoolGeylang Methodist Secondary SchoolJames Cook UniversityNumerous accessible medical centres cater to the needs of healthcare services of its people, some of which are mentioned below.Parkway East HospitalHealthMark Family ClinicHealth Service Community ClinicAlthough the locality is not near any speciality medical centres, it is well-connected to the rest of Singapore to ensure that people can access better and more complete medical care.Numerous dining options near Sims Urban Oasis include hawker centers, cafes, and restaurants offering diverse local and international cuisines.The TuckshopBrawn & Brains CoffeeAlto CafeThe food there ranges from the stalls of street foods, which are very true to local preparations, to other notable restaurants.Comforting surrounding supermarkets. Some of them are:Sheng Siong SupermarketGiant SupermarketNTUC FairPriceThis prime property on Sims Drive occupies the coveted position of Eunos, Geylang, and Paya Lebar. Spread over a site area of about 257,000 sq ft, this project's architectural wizardry distinguishes it from others to rise about 25 floors. Urban sophistication and serenity of the outdoors will blend well in the flawless design with sleek architectural details and lush landscapes.: Sims Urban Oasis: Condominium: 14:1,024 residential units: Sims Urban Oasis offers one-—to five-bedroom apartments in dual-key configurations for added versatility. Each maximises living space and daylight with a well-equipped modern kitchen, spacious and expansive living rooms, and scenic city views.This joint venture, developed by GuocoLand Limited, stretches as far as experience in designing high-quality residential and commercial projects in its system to create the perfect blend of form and function in Sims Urban Oasis that speaks to sustainability in design for luxury created while maintaining construction standards.Other projects worth mentioning are:Martin ModernWallich ResidenceLeedon ResidenceOther notable residential projects are also near Sims Urban Oasis. Such that create the buzz of a city neighbourhood around Sims Urban Oasis include:Park Place ResidencesTRE ResidencesPenroseSims Urban Oasis epitomises luxury living for those who seek a sophisticated and complete lifestyle in one of Singapore's finest locations. Nestled in District 14, this exceptional development seamlessly blends modernity, connectivity, and potential growth, making it an ideal choice for individuals and families desiring top-tier urban living. The thoughtfully designed condominium features state-of-the-art facilities, including swimming pools, a gym, and a rooftop sky park, catering to diverse lifestyle needs. Its prime location ensures unparalleled convenience and proximity to MRT stations, major expressways, shopping malls, and renowned educational institutions.Sims Urban Oasis's sleek and trendy design is complemented by its lush landscaping and well-curated communal spaces, creating a harmonious blend of urban elegance and natural serenity. Developed by the reputable GuocoLand Limited, it promises a secure and rewarding investment opportunity. Sims Urban Oasis redefines modern living, offering a perfect balance of convenience, luxury, and style in the heart of Singapore.Discover details on purchasing or leasing residential units in Sims Urban Oasis on the Sims Urban Oasis for Sale or Sims Urban Oasis for Rent Page.Check out also the Commercial Sale page for ownership opportunities at Sims Urban Oasis and explore the Commercial Rent Page for available rental units at Sims Urban Oasis!
View project details















































































