Riviere
3 Jiak Kim Street
S$ 5,200 /mo
1
Bed
1
Bath
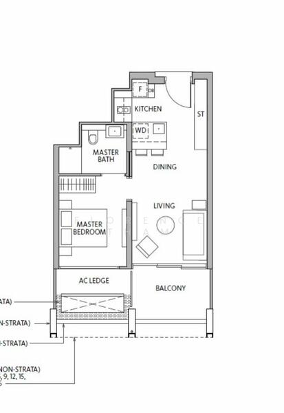
560
sqft (floor)
580 m (7 mins) from TE16 Havelock MRT
Ready to move in Condominium
About this property
Brand New High Floor 1 Bedroom for lease
-V high floor
- Unblock View of CBD n MBS n the River
- Bright n Breezy
- Functional Layout with quality finishes
- Can consider Fully Furnished
- Mixed development with lifestyle retails/restaurants
- Roberson Quay@ doorstep w Park Connector
- choices of transportation
walk to 2 MRTs (Great World MRT and Havelock MRT) and bus stop in at doorstep
- Great World City Mall w Cold Storage n Mediya 5 mins walk away
- Zion food Center 6 mins walk
- Avail early December 2025
Amenities
Balcony
High floor
Common facilities
Adult fitness stations
Aircon facilities
Barbeque pits
Car park
Riviere

Riverie is located in a quieter residential side of Robertson Quay at District 1, with the advantage where the residents will be able to enjoy their privacy better. The Central Business District and Marina Bay are just along the river, whereas Orchard Road is only a short 6 minutes drive by car. Rivière is a high rise luxury residential development with two towers and a total of 455 units. Rivière is also strategically located in the heart of Singapore River – Jiak Kim Street, which is within The luxury design of Rivière is a feature of this project from one of the most well known developers in Singapore. The vast majority of the units in Rivière is the 3 bedroom units, with unit sizes ranging from 1,141 sq ft to 1,249 sq ft, and the 3 bedroom premium & deluxe + lift, with unit sizes ranging from 1,507 to 1,711 sq ft. Rivière is developed by Fraser Property Singapore (FPS), a multinational company cum developer that has a strong reputation for the quality and expertise of their developments. FPS develops not only homes, but manages commercial properties and shopping malls as well, with the mission to deliver high quality living and memorable shopping experiences to their clients. The 3 bedroom premium & deluxe + lift units and the 4 bedroom deluxe + lift units are what make Rivière stands out as compared to other upcoming developments. Another thing is that Rivière is close to the Great World City MRT Station, where it is only within short walking distance. The Great World MRT Station that links to the Thomas East Coast Line is set to be operational by 2021. With this upcoming Great World City MRT Station, residents can easily go to Orchard Road under 30 minutes, where it is only one train station away. With this excellent transportation service, residents can enjoy easy access to many shopping centres, schools and other amenities nearby. The fact that Rivière is only walking distance to the MRT is a huge plus point for this development and is definitely one of the many reasons that people invest in. Orchard Train Station is only one station away and this means residents of Rivière can easily be on Orchard Road, The CBD or Marina Bay within minutes. The Orchard Train Station will also allow residents to easily get to Marina South Station, Shenton Way Station, East Coast Parkway and more. For vehicle owners, they will be able to enjoy the easy access to Downtown Financial District and Marina Bay Financial District through the expressways in the area. With the easy accessibility to the Marina Coast Expressway, Central Expressway and East Coast Parkway that link to River Valley Road and other roads, residents of Rivière can easily get to their desired destinations. Chef’s Rable by Chef StephanFood CapitalXin Cuisine Chinese RestaurantGrissiniNanjya Monjya WaterfrontRiver Valley Primary SchoolSuperland MontessoriEton House Pre SchoolAlexandra Primary SchoolISS International School313 @ SomersetOrchard CentreNgee Ann CityRobertson WalkUE Square Rivière is made up of two 36 storeys towers and 455 units in total, where 210 units consist of 1 bedroom and 2 bedroom, and 245 units consist of 3 bedroom and 4 bedroom. The one bedroom units come with only 560 sq ft, where it is sufficient for single adults. However, the attractive part of Rivière is that the 3 bedroom premium & deluxe unit and 4 bedroom deluxe unit come with lift, giving the residents absolute privacy that they need. Project Name: RivièreType: CondominiumSite area: approx. 13,476 sq mDistrict: 3 Unit types:70 x 1-bedroom (560 sq ft)140 x 2-bedrooms (818 - 840 sq ft)210 x 3-bedrooms (1,141 – 1,249 sq ft, 1,507 – 1,711 sq ft)35 x 4-bedrooms (2,002 sq ft)Expected TOP: 2023 The following projects are by the same developer as Rivière:Seaside Residences8 @ Mount Sophia8 @ WoodleighBoathouse ResidencesCamelot The following developments are in the same neighbourhood as Rivière:Marina One ResidencesThe Sail @ Marina BayMarina Bay ResidencesFive on Shenton (V on Shenton)One ShentonRiviere
View project details




























