Normanton Park
61 Normanton Park
S$ 9,000 /mo
Starting From4
Beds
2
Baths
1,195
sqft (floor)
Available from 11 Jan 2027
About this property
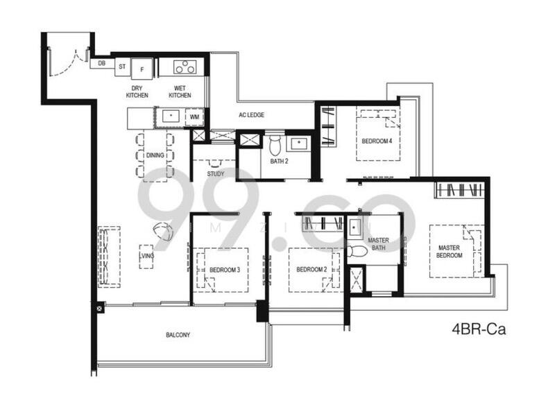
Rare 4 Bedroom With Greenery View
FULLY FURNISH UNIT
Nearby amenities (5-7min drive)
Cold Storage (Fusionopolis)
FairPrice (NUH Medical Centre)
Queensway Shopping Centre
Star Vista
Rochester Mall
Anchorpoint
Ikea
Nearby Primary Schools (between 1-2km):
Fairfield Methodist Primary School
Newtown Primary School
Queenstown Primary School
Short term lease welcomed!
Amenities
Air-conditioning
Balcony
Cooker hob/hood
Dryer
Common facilities
24 hours security
Adult fitness stations
Barbeque pits
Cafes
Normanton Park

Nestled in the heart of Singapore's District 05 at 117280, Buona Vista/West Coast, Normanton Park is a striking condominium development that redefines modern living. This 99-year leasehold development was completed in 2023 by Kingsford Huray Development, a subsidiary of Kingsford Development, this expansive project comprises 1,862 residential units and 22 strata-terrace houses. Normanton Park offers a mix of one - to five-bedroom apartments alongside villas catering to diverse lifestyle preferences. Beyond residences, the development features commercial spaces, serviced apartments, and a basement car park, ensuring convenience for all.Normanton Park's prime location in District 05 offers unparalleled access to key areas of Singapore. Residents benefit from excellent connectivity to the Central Business District (CBD) and major expressways, including the Ayer Rajah Expressway (AYE). With over 100 state-of-the-art amenities, such as swimming pools and fitness clubs, the development enhances daily living with luxury and convenience.South-facing units have clear views of the sea and green trees. They mix nature with city life. The well-planned spaces, nice amenities, and careful living make Normanton Park a great choice. It is perfect for people who want a calm but active life.Normanton Park is in a great spot that is easy to reach for drivers and people who use public transport. The Kent Ridge MRT Station (CC24) is about 1.2 kilometres away. This makes it a handy choice for those living there. For drivers, being close to the Ayer Rajah Expressway (AYE) means quick links to the CBD and other essential places.The nearby area is also lovely, with Kent Ridge Park close by. New developments across the road are set to bring more lifestyle options, including shopping, dining, and entertainment, which will make the area even more convenient and appealing. With various schools, hospitals, and recreational spots in the vicinity, it’s an ideal location for both work and leisure.Normanton Park wants to build a living space that mixes free time, exercise, and community connections. The development offers these facilities:Adult fitness stationsBarbeque areasCafésCovered and basement car parksCommunity GardenDrop-off pointsFitness cornersFun and lap poolsGame roomsGymnasiumLoungeMulti-purpose hallPool deckPlaygroundPutting greenSky LoungeSpa poolSwimming poolsTennis courtsWading poolThese facilities meet various interests and age groups. They help residents relax, stay active, and socialize in a friendly place. The landscaping adds to the feel of Normanton Park, making it a calm spot in the busy city.Normanton Park is conveniently situated near several choice educational institutions; it's an ideal option for families with children. Nearby options include:National University of Singapore (NUS)Anglo-Chinese School (Independent)Fairfield Methodist SchoolWith its proximity to various educational institutions, Normanton Park provides families with various options to support their children's academic journey.Access to healthcare is another advantage of living at Normanton Park. Residents can reach medical facilities with ease, including:National University Hospital (NUH)Alexandra HospitalDover Clinic & SurgeryThese nearby medical facilities ensure residents have convenient access to healthcare services for routine and urgent needs.Residents of Normanton Park are spoilt for choice, with a variety of dining options nearby, catering to diverse palates. Popular establishments include:Meet You CaféTiong Bahru BakeryDiamond KitchenSTOKEDWhether it's casual meals or gourmet experiences, the surrounding area offers something for everyone.Daily essentials are within easy reach, thanks to nearby supermarkets such as:Food-Joy Pte LtdFairPrice NUH Medical CentreCold Storage FusionopolisFairPrice PSA BranchThese options provide a mix of premium and everyday shopping experiences to meet diverse needs.Spread over a large area of 661,005 sq ft, Normanton Park's design blends modern style with nature. The development has 32 blocks that stand about 24 storeys high, offering 1,862 homes. The layout best uses space and natural light while closely linking with the green areas around it. Normanton Park Condominium 05 24 321,862 residential units Unit configurations include one - to five-bedroom apartments and villas resembling strata-terrace houses. These homes have modern kitchens, large living spaces, and beautiful views. Larger units offer additional bedrooms, en suite master suites, and premium finishes, catering to those seeking an elevated lifestyle.Normanton Park shows how Kingsford Huray Development cares about quality and new ideas. At first, the project faced some issues with its "no-sale" license. However, the developer received permission to sell units before getting the Occupation Permit. This permission depends on passing the Building and Construction Authority's (BCA) Quality Mark check. This shows their high work standards.Kingsford Huray Development is known for making stylish buildings. They are a trusted name in real estate. Normanton Park shows how the builder mixes modern design with practical use. This project improves living experiences and strengthens Kingsford's role in Singapore's property market.Kingsford Huray Development boasts an impressive portfolio of properties, including:Kingsford Hillview PeakKingsford WaterbayNormanton Park is in a great spot in District 05. It is close to several popular neighbourhoods. These nearby areas contribute to a vibrant community. They include:The InterlaceKent Ridge Hill ResidencesOne-North EdenNormanton Park offers an excellent chance for people who want to live in the city. It is in one of the best-connected areas in Singapore. With excellent facilities and easy transport, this place is ideal for individuals and families. The blend of city life and nature makes Normanton Park a favourite for buyers and investors.The excellent location in District 05 lets you reach a lively community and many services. Normanton Park offers different units and features to fit various housing needs, so there is something for everyone. The development's green design and lovely landscaping make it even more appealing. Whether as a home or an investment, Normanton Park represents a sound choice for those looking to enjoy modern comfort and long-term value.Check the Residential units in Normanton Park for sale and units for rental. And also don’t miss also the commercial units for sale and rental units too.
View project details















