LIV @ MB
114D Arthur Road
S$ 8,800 /mo
Negotiable3
Beds
3
Baths
1,270
sqft (floor)
260 m (3 mins) from TE24 Katong Park MRT
Ready to move in Condominium
About this property
Brand new Superb luxury comfort living - MRT/great view, amenities
# Newly TOP-ed, brand new development and super HIGH floor unit
## NO PETS!
# Great Location (Exclusive Quiet Private Estate estate)
- Just 500m to Katong Park MRT (TE24)
- Good connectivity, with quick access to ECP, MCE and KPE
- Bus-stop at side gate, served by numerous buses to CBD and other parts island
- Proximity to vast choices of amenities, eateries, hawker centres (Old Airport, Tanjong Rhu), wet market, supermarket
- East cost park and other nearby recreational facilities (National Stadium & Sport Hub)
- Well served by major shopping malls, Parkway Parade, 112 Katong, Kallang Leisure Park, Kallang Wave
- Nearby major reputable schools e.g. Dunman High School, Eton House International
# Choice Luxury Development:
- Just TOP-ed new development
- Modern condo facilities for great relax and stay
- 2 Sky terrace with sky pool, function hall and entertaining facilities
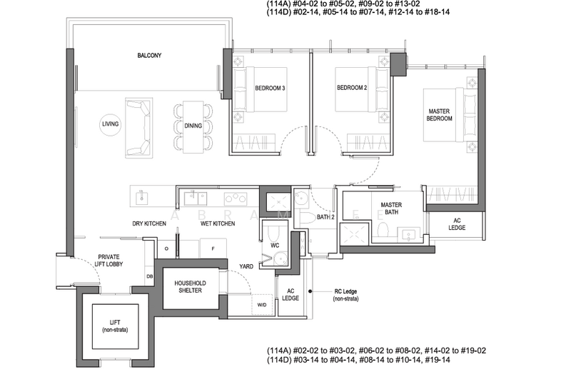
# Rare Premium unit BEST Layout (only 3Br type with Dry Kitchen):
- Likely the HIGHEST floor unit available for rent, offering breathtaking panoramic unblocked city view, pool view and sky terrace view
- Stylish, functional and spacious, 3Brm+Utilty+Yard
- Premium stack with best view and orientations
- Private lift lobby with grand entrance foyer, for full privacy and exclusiveness
- Spacious Living cum Dining area with full size balcony fronting offering great space for luxury living and entertaining with superb views
- Modern Wet and Dry kitchen giving the best food gourmet experience
- Home Shelter (Utility room) and spacious yard area for all house chores
- All bedrooms with great view and comfort living - Both common bedrooms are of SAME size, not big/sml
- Spacious master room with build-in safe within wardrobe
- Top notch finishes and branded appliances
- Available immediate
Contact me for more info and viewing appointment
Marketed by:
Abram Lee
9*****
a*****@*****
(Marketed by ERA Best Team 2***** )
Amenities
Air-conditioning
Balcony
Bombshelter
City view
Common facilities
Car park
Children's playground
Fun pool
Gymnasium room
LIV @ MB

Liv @ MB is a 99-year leasehold apartment that sits on Arthur Road in Marine Parade (D15), Singapore. The former Katong Park Tower was acquired by the acclaimed Bukit Sembawang Estates through an en bloc sale for S$345m. The company wasted no time in redeveloping the 140,758 sqft land and officially launched Liv @ MB in 2020 which is expected to be completed in 2023.For drivers, Liv @ MB is easily accessible via highways that course through the area including the Kallang-Paya Lebar Expressway, East Coast Park and Mount Batten Road. The development is also close to several train stations and bus stations. Katong Park MRT Station on the Thomson East-Coast Line that is set to be completed in 2023 will allow residents to travel with greater ease as the station is just a short walk from Live @ MB.It’s a 24-storey building comprising approximately 230 apartment units. Further details on the units remain unavailable.Designed to provide residents a comfortable and holistic city life, Liv @ MB comes equipped with amenities such as parking lots and security services. Buyers can expect more of the high-end facilities to be unveiled as the project nears its completion date.Several prestigious schools with the likes of Tanjong Katong Primary School, Broadrick Secondary School, Chung Cheng High School (main), Tanjong Katong Girl’s School and Dunman High School are just a stone’s throw away from Liv @ MB. Children that have yet to reach schooling age can also be sent to the day care centres surrounding the apartment. For tertiary education, the apartment is close to several renowned universities like Embry-Riddle Aeronautical University Asia, TMC Academy, James Cook University and Singapore Management University.Medical centres located close by include Cassia Clinic & Surgery, Katong Family Clinic, Chan Family Clinic and International Medical Clinic. Some of the nearest hospitals are Parkway East Hospital, Raffles Hospital, Kwong Wai Shiu Hospital and Tan Tock Seng Hospital.Shopping for groceries has never been easier with the apartment being so close to numerous shopping malls like the Katong Shopping Centre, Parkway Parade, PLQ Mall, KINEX, I12 Katong and Katong Plaza. If you want more, you could travel to central business area and the Orchard shopping district, both approximately 10 to 20 minutes away. Scarlett Supermarket (Geylang), NTUC Fairprice, Fairprice Finest and East Coast Groceries are loaded with a large selection of goods and fresh produce making them the perfect shops for homemakers.Whether you are looking for a pub, a café or a restaurant, you can effortlessly find them around Liv @ MB since this area is filled with countless eateries serving a wide range of delectable cuisines. For starters, you definitely do not want to miss the time-honoured original Katong Laksa of Janggut Laksa, the fresh and succulent chilli crab of No Signboard Seafood at Geylang, the aromatic chicken rice from Five Star Hainanese Chicken Rice Restaurant and the ‘wok-hei’ filled fried kway teow of Apollo Fresh Cockle Fried Kway Teow.For those who are looking for an escape from the hurly-burly of city life, then sign up on a thrilling luxurious cruise at the Aegean Paradise or Marina Bay Cruise Centre Singapore. If you prefer keeping your feet dry and on land, then perhaps pay a visit to various renowned attractions like Madame Tussauds Singapore, Singapore Botanic Garden, Cloud Forest, Gardens by the Bay and Haw Par Villa.Founded in 1911, the Singapore-based Bukit Sembawang Estates Limited had a humble beginning as a rubber company but in the 1950s the company began to diversify into various other industries. As of today, Bukit Sembawang Estates Limited is a revered company whose primary business is in property development, investment and other real-estates related ventures. The company has lived true to its mission of building quality homes for every generation as it successfully delivers exemplary developments like Lengkok Angsa, Luxus Hills Collection, Nim Collection, Vermont on Cairnhill, Paterson Suites and 8 St. Thomas. Over the past 6 decades, Bukit Sembawang Estates Limited has garnered numerous accolades including FIABCI World Prix d’Excellence Award 2021: World Silver Winner Residential High Rise Category (8 St Thomas); World Travel Award 2020: World’s Leading Serviced Apartments (Fraser Residence Orchard); PropertyGuru Asia Property Awards 2020: Best Landed Housing Development (Luxus Hills Contemporary Collection); Edge Prop Excellence Award 2020: Top Landed Development (Nim Collection Phase 1 & 2) and the list goes on.While the pricing of these apartment units remains to be confirmed by the developer, many expect the starting price to be around S$2 million. If you are interested in other projects within the same price range, check out this list of properties.Judging from the many successful projects of Bukit Sembawang Estates Limited, interested buyers can definitely look forward to a home with innovative design, build quality, comfort and practicality. Sitting on the edge of the Marine Parade next to the long beach of East Coast Park, Liv @ MB makes for an ideal home where folks can relax and unwind after going through a hectic work day.
View project details