Forte Suites
88 Mergui Road
S$ 4,000 /mo
Starting From3
Beds
2
Baths
658
sqft (floor)
720 m (9 mins) from NE8 Farrer Park MRT
Available from 1 May 2026
About this property
Brand New Listing, available in July 2023 & high floor unit
*** High floor unit ***
*** All races are welcome to rent ***
*** Partial or fully furnish is possible ***
*** Lease period can be discuss acooridingly ***
*** Hurry call Adrian +6***** for more information ***
Amenities
Air-conditioning
Balcony
Cooker hob/hood
Corner unit
Common facilities
24 hours security
Barbeque pits
Clubhouse
Drop off point
Forte Suites

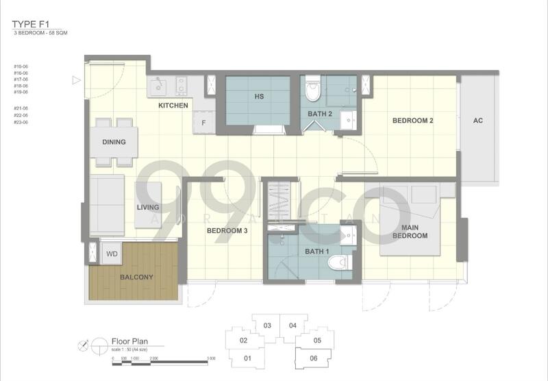
Forte SuitesLocated in the heart of the colourful and culturally rich Farrer Park District, Forte Suites is ideally situated for residents to take advantage of the abundance of local attractions. Several shopping malls, Little India and a wide array of wining and dining options to suit all tastes and wallets are within walking distance. Heading out just a little bit further and there are even more choices. Forte Suites is also just a 7 minute walk from Farrer Park MRT on the North East Line, meaning access to the CBD and Orchard Road is very quick and simple. The development itself is comprised of 106 units, including 6 penthouses in a single 25 storey tower.JL Asia Resources Pte Ltd, the developer for Forte Suites, made its name in hotel management before becoming successfully involved in the property management services sector, and in building and developing property.Forte Suites – Unique Selling PointsLocation is the biggest draw for Forte Suites. Situated in Farrer Park, just over 5 minutes’ walk away from Farrer Park MRT, access to the CBD and the island’s main shopping district is quick and hassle free. The immediate area is also a huge plus point however, with several shopping malls within walking distance, as well as Little India with its collection of restaurants and of course the 24 hour Mustafa Centre. It will also give the residents of Forte Suites peace of mind knowing that Connexion at Farrer Park is just a 6 minute walk away, offering emergency and outpatient care.Forte Suites – AccessibilityFarrer Park on the North East Line, is the nearest MRT station to Forte Suites and is approximately a 7 minute walk away. From there, Raffles Place is a 9 minute ride away. Alternatively, Dhoby Ghaut and City Hall MRT stations are 2 and 3 stops respectively, and the Orchard Road shopping belt a further one stop down the line. Car drivers can reach the CBD in a little over 5 minutes from Forte Suites, via the CTE, if the traffic is kind.The nearest bus stop – a short walk from the development, has routes serving among others, the CBD, Orchard, Bugis, Bukit Merah and Toa Payoh.Forte Suites - Amenities & AttractionsDining near Forte Suites:Qian-XiBan HengBoon Tong KeeShopping near Forte Suites:United SquareSquare 2VelocityCity Square MallSerangoon PlazaMustafa CentreSchools and Education near Forte Suites:Farrer Primary SchoolHong Wen SchoolStamford Primary SchoolStamford American International SchoolBendemeer Primary SchoolForte Suites - Project informationForte Suites is a 25 storey freehold residential development situated on Mergui Road in the Farrer Park area. Apart from the more roomy penthouses, the units at Forte Suites are relatively small, with the 3 bedroom units for example only being 624 sqft. The smallest 1 bed in the development is just 441 sqft. They are all well designed, modern apartments however, with high end kitchen and sanitary fittings provided by Hansgrohe, Franke, Johnson Suisse, Roca and Villeroy & Boch.Facility wise, Forte Suites also delivers, offering residents a good choice of options including a 37 metre swimming pool, Jacuzzi, outdoor gym, yoga deck, a sports lounge and billiard lounge. The facilities are spread over several levels.Project Name: Forte SuitesAddress: Mergui RoadSite area: Approx. 22,075 sqftTenure: FreeholdDistrict: 8Configuration: 106 unitsUnit types:16 x 1-bedroom units (441 – 474 sqft)68 x 2-bedroom units (603 – 700 sqft)16 x 3-bedroom units (624 sqft)6 x penthouse units (1,033 – 1,227 sqft)Parking lots:106 normal lots2 handicap lotsExpected TOP: 2018Expected legal completion: 2021Forte Suites - Historical DataAs of August 2016, the number of caveated transactions for Forte Suites stood at 50 with the recorded transaction prices ranging from $749K to $1.88M. Due to the nature of the project, the vast majority of those sales were below $1.5M, with 21 coming in below $1M. Only 2 sales were for a value greater than $1.5M.Regarding the median prices for those sales, 1 bed units had a figure of $1,1763 psf, 2 and 3 bedroom properties came in at $1,669 psf and $1,885 psf respectively and penthouses had a median price of $1,492 psf.Forte Suites - Nearby ProjectsThe following developments are in the same neighbourhood as Forte Suites:Cityscape at Farrer Park8 Farrer SuitesBliss Regalia
View project details
















