Forest Woods
11 Lorong Liew Lian
S$ 4,199 /mo
Negotiable2
Beds
1
Bath
635
sqft (floor)
420 m (5 mins) from NE12/CC13 Serangoon MRT
Available from 19 Apr 2026
About this property
Serious Landlord. Near Amenities. Near MRT. Nice Layout
欲知更多详情, 欢迎您与我联络!
Do Not Miss This Chance!
Interested Tenants & Agents Are All Welcome!
Please Provide Tenant Profile & Info Such As Move In Date & Lease! (Thank You)
Property Features:
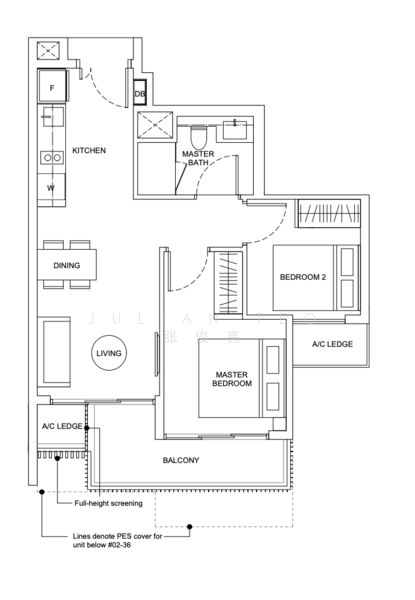
• Spacious And Well-Designed 2 Bedroom & 1 Bath Layout
• High-Quality Finishes And Modern Fixtures
• Cozy Bedroom With Built-In Wardrobes For Optimal Storage
• Stylish Bathroom With Elegant Fittings
• With Balcony & Panoramic Views
• Air Conditioning For Comfortable Living
• Access To Communal Facilities, Including A Swimming Pool And Fitness Center
• 24/7 Security
Key Highlights:
• Floor Plan Available
• Well-Proportioned Bedroom
• Noticeably Spacious Layouts Of Living & Dinning Hall
• Bright And Airy Living Room With Ample Natural Light
• Great Facing, Brightness of Natural Lights + Wind Flowing Inside the House
• Fully Equipped Kitchen With Top-Of-The-Line Appliances Setup with Refrigerator, Hood, Hob & Oven
Amenities
Air-conditioning
Balcony
Cooker hob/hood
Renovated
Common facilities
24 hours security
Barbeque pits
Gymnasium room
Lap pool
Forest Woods
Forest WoodsThe Forest Woods, situated in District 19, on Lorong Lew Lian area, there are comfortable, spacious and homely 519 residential units with 99 years tenure as from 5 Feb. 2016.The Forest Woods consists of seven blocks 12-storey residential modern facilities with communal facilities and car park that are evenly distributed across the Forest Woods development, which means you do not have to walk far from your parking lot back to home.Under TID Pte Ltd, a joint venture between Mitsui Fudosan of Japan and Hong Leong Holdings Limited. City Development Limited has a proven track record of managing properties in 91 locations across 25 countries in Australia, New Zealand, Europe, North America, Middle East and Asia.Hong Leong Holdings Limited (HLHL) a privately owned investment and property development arm of Hong Leong Group. It runs business projects and to date has developed numerous residential properties together with high-end to mid projects.LocationSerangoon is a residential and planning area situated in the Northeast part of Singapore. The project is made up of 7 subzones- Lorong Chuan, Serangoon Central, Upper Payar Lebar, Serangoon North, Serangoon Gardens, Serangoon North Industrial Estate and Seletar Hills. AccessibilityForest Woods is 5-7 minutes walk from Serangoon MRT. When traveling by train in the early mornings, at Raffles Place MRT is 18 minutes travel from the Serangoon MRT. Using a car it’s a ten-minute drive to town through the CTE when the traffic conditions are optimal.It can be reached via the Upper Serangoon Road and Upper Paya Lebar Road. A bus stop is outside the project, along Upper Serangoon RoadAmenities And AttractionsThe Forest Woods is near to many amenities that will help make your life easier. Heartland Mall, which is a 3-minutes drive away, offers dining options like Sakae Sushi and the supermarket Cold Storage will be available. The Market Square next to Woodleigh MRT will be another option for the residents. A bus interchange will also accessible from Forest Woods development. For the soccer fans and players, Kovan Sports Center is situated behind Heartland Mall.Amenities that is nearby:Nex Shopping MallSerangoon MRTUpper Serangoon Shopping CenterShaw cinemasSerangoon Public LibraryAdditionally, there are various clinics within the Serangoon area; Hougang Polyclinic is 5-minutes drive from Forest Woods and Raffles Medical has a Clinic at NEX as well. Tan Tock Seng Hospital is ten minutes drive from this project.There is good food around Forest Woods’ vicinity as well:Bee Kee Wanton NoodleMinistry of Pasta and GrillFood Park - Lor Lew LianThere are a number of good schools, which are within 1-5 Km away from Forest woods development. These schools include:Saint Gabriel’s Secondary SchoolPaya Lebar Methodist Girls’ School (Primary & Secondary)Zhonghua Secondary SchoolMaris Stella High SchoolSaint Gabriel’s Primary SchoolPeicai Secondary SchoolStamford American International SchoolAustralian International School Forest Woods is best for parents who wish to enroll their child in one of the local or International schools located within a walking distance from home. FacilitiesWhat makes Forest Woods stand out is the 7 twelve-story housing blocks with communal facilities distributed evenly within the development. The pool area is perfect for relaxing and lounging for the adults with kids play in the adventure zone. An indoor gym is to found on level 2 of the clubhouse. It is well equipped with modern, smart gym equipment allowing you to input your goals and track your progress stats. The lobby has WIFI lounge and with the assistance of the service center staff, the residents are better able to plan their lifestyle desires. The Forest Woods development has an option of 1-4 bedroom units that are spacious stacked in an alternating manner some overlooking the pool area and others facing outwards towards the street. The living room extends out to the balcony, which is of decent size. The living room is spacious without the balcony infringing in on it.Project InformationForest Woods residential development stands on an approximately 150,712 square feet lands. The seven 12 story housing blocks housing a total of 519 units. It has 69 1+1 study units of 506-517 square feet, 38 of 2 bedroom 603 - 818 square feet each, 76 of 2+1 study units of 635-786 square feet each, 88 of 2+1 study premium units of 721-904 square feet each, 133 of 3 bedroom 743 -1,130 square feet each, 59 of 3 bedroom premium units 969 -1,184 square feet each, 53 of 4 bedroom units of 1,238 -1,475 square feet each and three 5 bedroom penthouse units 2,045-2,185 square feet each.Show flats units for the 3 bedroom premium and 2 bedroom+ study units are available. The expected TOP is May 2021 and the legal completion is May 2024. Related ProjectsThere are three related projects to Forest Woods all of which are attractive to buyers and investors alike, and they include:Coco Palms - a 12 block of residential development at Pasir Ris Drive1 with a total of 944 UnitsOne Shenton -located at Shenton Wayin District D08, walking distance to Raffles Place MrtCommonwealth Towers – 99 years development with 845 units that is near Queenstown MrtNearby ProjectsThere are three other projects near the Forest Woods project, and they are:The Minton at 147 Hougang Street Minton Rise Condominium at 146 Hougang Street 11Central View at 50 Hougang Street 11
View project details












