✅⭐️ D05 – RARE 2 Yr Old 4 Bed Penthse | Kent Ridge Hill Res (590m to MRT)
Walk to Pasir Panjang MRT, shops, eateries
S$ 9,500 /mo
4
Beds
4
Baths
1,930
sqft (floor)
880 m (11 mins) from CC25 Haw Par Villa MRT
Ready to move in Condominium
About this property
Rare 2 yr old Dist 05 4-bedder penthouse 590m to Pasir Panjang MRT
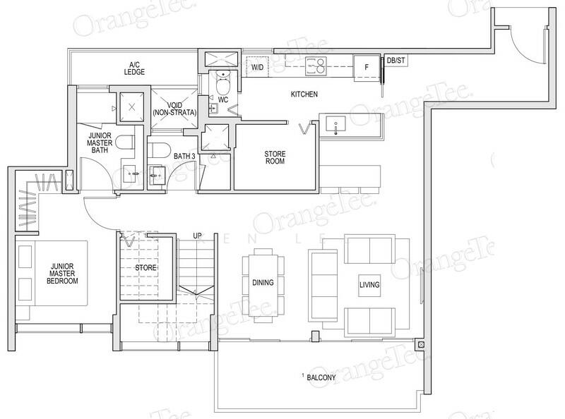
This is a gorgeous 4-bed 2-level penthouse in District 05, which is right next to District 03. Yes! All 1927 sqft of this penthouse is usable space! This penthouse is at Kent Ridge Hill Residences, located near Pasir Panjang MRT station.
The Penthouse
2 yr old unit!
4 Bedrooms of regular layout
4 Bathrooms
Bright and breezy
Level 1
Good sized living and dining areas
Balcony
Junior master bedroom
Junior master ensuite
Well-equipped and bright kitchen
Helper’s room
Helper’s bathroom
Level 2
Master bedroom w/ balcony
Master walk-in wardrobe
Master ensuite
Common room w/ balcony
Common bedroom 2
Common bedroom 3
Common bathroom
The Facilities
Full condo facilities including
3 Pools
BBQ Pits
Tennis Court
Jogging track
Gym
Function room
The Amenities
Convenient location!
- 8 mins walk (548m) to Pasir Panjang MRT (CC26)
- Easy access to transportation. Approx 3-5min walk to bus stops
- Easy drive / Grab to the Central Business District (CBD) and Marina Bay
- Nature:
- Close to recreational hubs and nature trails such as Kent Ridge Park, Hort Park, Labrador Park, West Coast Park and Mount Faber Park
- Short walk to many F&B outlets on South Buona Vista Rd, food centre and eateries
- Shopping malls nearby: Viva Vista Shopping Mall, The Oasis, Alexandra Retail Centre, Vivocity, Anchorpoint and IKEA
- Schools nearby: ISS International Sch, Global Indian International Sch (Queenstown Campus), Springwood High Sch, Tanglin Trust Sch, NUS Business Sch
- Numerous offices nearby:
This unit will also appeal to tenant who works in Harbour Front City, Vivo City, Maple Tree Business City, One North, Biopolis, Fusionpolis, NUS, Science Park and the Central Business District
Comes partially furnished
2 year old fridge, washer cum dryer and other newish appliances
All bedrooms come with built-in wardrobes
Come view!
Call Ken at 9***** right now!
Note: AI is applied with property’s original structure and condition intact while offering efficient, responsible improvements.
The Penthouse
2 yr old unit!
4 Bedrooms of regular layout
4 Bathrooms
Bright and breezy
Level 1
Good sized living and dining areas
Balcony
Junior master bedroom
Junior master ensuite
Well-equipped and bright kitchen
Helper’s room
Helper’s bathroom
Level 2
Master bedroom w/ balcony
Master walk-in wardrobe
Master ensuite
Common room w/ balcony
Common bedroom 2
Common bedroom 3
Common bathroom
The Facilities
Full condo facilities including
3 Pools
BBQ Pits
Tennis Court
Jogging track
Gym
Function room
The Amenities
Convenient location!
- 8 mins walk (548m) to Pasir Panjang MRT (CC26)
- Easy access to transportation. Approx 3-5min walk to bus stops
- Easy drive / Grab to the Central Business District (CBD) and Marina Bay
- Nature:
- Close to recreational hubs and nature trails such as Kent Ridge Park, Hort Park, Labrador Park, West Coast Park and Mount Faber Park
- Short walk to many F&B outlets on South Buona Vista Rd, food centre and eateries
- Shopping malls nearby: Viva Vista Shopping Mall, The Oasis, Alexandra Retail Centre, Vivocity, Anchorpoint and IKEA
- Schools nearby: ISS International Sch, Global Indian International Sch (Queenstown Campus), Springwood High Sch, Tanglin Trust Sch, NUS Business Sch
- Numerous offices nearby:
This unit will also appeal to tenant who works in Harbour Front City, Vivo City, Maple Tree Business City, One North, Biopolis, Fusionpolis, NUS, Science Park and the Central Business District
Comes partially furnished
2 year old fridge, washer cum dryer and other newish appliances
All bedrooms come with built-in wardrobes
Come view!
Call Ken at 9***** right now!
Note: AI is applied with property’s original structure and condition intact while offering efficient, responsible improvements.
Amenities
Air-conditioning
Balcony
Cooker hob/hood
Corner unit
Common facilities
24 hours security
Accessible washroom/shower
Adult fitness stations
Aircon facilities
FAQs
There are 4 bedroom(s) with 4 bathroom(s) in this unit.
The rent of this unit at ✅⭐️ D05 – RARE 2 Yr Old 4 Bed Penthse | Kent Ridge Hill Res (590m to MRT) is about S$ 9,500 /mo.
The current rental PSF at ✅⭐️ D05 – RARE 2 Yr Old 4 Bed Penthse | Kent Ridge Hill Res (590m to MRT) is about S$ 4.92 psf.
✅⭐️ D05 – RARE 2 Yr Old 4 Bed Penthse | Kent Ridge Hill Res (590m to MRT) is located at Walk to Pasir Panjang MRT, shops, eateries Alexandra / Commonwealth .
Floor size of this unit at ✅⭐️ D05 – RARE 2 Yr Old 4 Bed Penthse | Kent Ridge Hill Res (590m to MRT) is 1,930 sqft.
Explore other options in and around Alexandra / Commonwealth
Based on the property criteria, you might be interested on the following
Condominium For Rent
Nearest MRT Stations























