Bellewoods
108 Woodlands Avenue 5
S$ 4,300 /mo
Negotiable3
Beds
2
Baths
1,098
sqft (floor)
1.2 km (14 mins) from NS10 Admiralty MRT
Ready to move in Executive Condominium
About this property
All races welcome. Move in immediately
Unit Highlights:
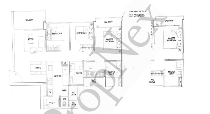
• Generous 3-bedroom layout – ideal for families
• Bright and airy with excellent natural light
• Functional living & dining space for everyday comfort
• Well-kept condition, move-in ready
• Comes with [fully / partial] furnishings (customise accordingly)
Why You’ll Love This Home:
• Located in a quiet, low-density environment
• Enjoy full condo facilities: swimming pool, gym, BBQ pits, playground & more
• Greenery views and a relaxing atmosphere
• Convenience at Your Doorstep:
• Minutes to Woodlands South MRT (Thomson-East Coast Line)
• Easy access to Woodlands Checkpoint & major expressways (BKE/SLE)
• Near supermarkets, eateries & amenities
Call/whatapps Kevin Li for exclusive viewing now!
Amenities
Air conditioner
Balcony
Covered car parking
Common facilities
24 hours security
Drop off point
Lift lobby
Main entrance
Bellewoods

BellewoodsBellewoods is an executive condominium located in Woodlands in District 25. Woodlands has been earmarked for major development in the coming years with infrastructure, amenities and residential developments all being added and improved. Bellewoods is a forest themed development, with 6 special zones that add not only to the aesthetic appeal of the project but also the air quality. Its 44 facilities offer something for everyone, adults and children alike. Bellewoods is 10 minutes on foot away from Admiralty MRT Station on the North South Line, and by 2019 it will be the same distance to the new Woodlands South station on the Thomson East Coast Line.Qingjian Realty is also a part of Qingjian Group Co. Ltd corporation with a business portfolio that ranges from real estate development to investments. They have been developing buildings throughout Singapore since 1999.Bellewoods– Unique Selling PointsBellewoods is a forest themed executive condominium located in Woodlands which is set for major developments over the coming years. The project is divided into 6 zones - Aquatic Forest, Bamboo Forest, Urban Forest, Evergreen Forest, Wellness Forest and Mangrove Forest, which not only make Bellewoods an attractive and unique development, they also help with the air quality in the vicinity. The development has 44 different facilities which are split between the 6 zones, and the units themselves are large and well designed.Bellewoods – AccessibilityThe nearest MRT to Bellewoods is Admiralty on the North South Line which is around a 10-minute walk away. Come 2019 however, residents at Bellewoods will also have the option of the new Woodlands South Station on the Thomson East Coast Line, which is the same distance from the development but will be a quicker option into Orchard and the CBD. For the first 2 years (until the new station is open basically), there is a free shuttle service between Bellewoods and Woodland MRT Station on the North South Line.Bellewoods - Amenities & AttractionsDining near Bellewoods:Siam Square MookataGlee PantryViva Food CourtPeri Peri Grille PastaShopping near Bellewoods:Causeway PointAdmiralty PlaceWoodlands North PlazaSchools and Education near Bellewoods:Woodlands Ring SecondaryWoodlands Ring PrimaryWoodgrove SecondaryGreenwood PrimaryBellewoods - Project informationBellewoods is an executive condominium located in the soon to be completely redeveloped Woodlands. Its 561 units are spread over twelve 11 and 12 storey blocks, and the whole development is designed and built around a forest theme. This includes the 6 zones, namely Aquatic Forest, Urban Forest, Bamboo Forest, Evergreen Forest, Wellness Forest and Mangrove Forest. These don’t just have an aesthetic value, the bamboo forest for example was chosen for its ability to absorb a higher proportion of carbon dioxide and produce more oxygen. The units at Bellewoods are very spacious compared to similar projects on the island, and have a good look and feel to them. Facility-wise, Bellewoods delivers, with 44 split between the 6 zones.Name: BellewoodsAddress: Woodlands Ave 5/6Type: Executive Condominium (EC)Site area: 21,004 sqmGross floor area: 59,400 sqmTenure: 99-years leasehold from 12th August 2013District: 25Configuration: 561 units over 12 blocks of 11 and 12 storeysUnit types:36 x 2-bedroom units (786 sqft)291 x 3-bedroom units (936 – 1,280 sqft)200 x 4-bedroom units (1,152 – 1,378 sqft)34 x 5-bedroom units (1,528 – 1,550 sqft)Parking lots: 566 including 5 handicap lots (Basement carpark)Shuttle service: 2 years free shuttle bus service to Woodlands MRT stationExpected TOP: November 2017Bellewoods - Historical DataAs of November 2015, the number of caveated transactions at Bellewoods stood at 240, out of a total of 561 available units, with all of the 2 bedders having been sold. The majority of those sales were in the $750K to $1M range. In terms of the median prices for Bellewoods, from that sales data we can see that the 2 and 3 bed units were at $832 psf and $779 psf respectively while the 4 and 5 bed units were at $759 psf and $770 psf respectively.Bellewoods - Related ProjectsThe following projects are by the same developer as Bellewoods:Le QuestNin ResidenceRiverparc ResidenceRiversound ResidenceRiver IslesBellewoods - Nearby ProjectsThe following developments are in the same neighbourhood as Bellewoods:Twin FountainsForestvilleLa Casa
View project details























