8 @ Woodleigh
8 Woodleigh Close
S$ 4,500 /mo
Negotiable2
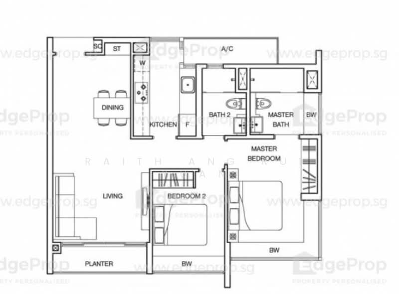
Beds
2
Baths
861
sqft
520 m (6 mins) from NE11 Woodleigh MRT
Available from 15 Jun 2026
About this property
Big 2 bed 2 bath unit for rent, walk to MRT!
Ready to move in after the 3rd week of June 2026 onwards!
Just a short 5 minutes walk to Woodleigh MRT Station (NE11)!
5 Different supermarket options within a 600m radius!
A plethora of good local and international schools surrounding this project!
Unit is bright and breezy with an unblock view!
Don't miss out on this unit for rental, Call/WhatsApp Raith Ang @ 9***** to find out more and get exclusive viewing appointments today!
Amenities
Air-conditioning
Balcony
Intercom
Low floor
Common facilities
24 hours security
Barbeque pits
Basement car park
Clubhouse
8 @ Woodleigh

8 @ Woodleigh, a high-profile, but affordable condominium, is a 99-year leasehold development located at 6 Woodleigh Close, Singapore 357902, considered one of Singapore’s most populated District 13. Originally developed by Frasers Centrepoint/ FCL Homes and completed in 2012. 8 @ Woodleigh has a total of 330 units, ranging from one four-bed unit. With modern architecture and all the characteristics of a resort-style development, this 15-story copper-clad building offers beautiful foliage and lush landscaping throughout the property. 8 @ Woodleigh comprises 4 blocks, each having its unique postal code with an underground parking structure, making access very easy and allowing for a comfortable lifestyle for the residents. 8 @ Woodleigh is located in District 13, which is a popular area for those who live there because it's centrally located within Singapore and provides both quick routes to work via either car or train (public transportation). This makes commuting easy and allows you to enjoy all that the rest of Singapore has to offer. In addition to excellent access to the many amenities offered by the developers, residents also enjoy amenities within the development itself. Modern facilities include swimming pools, fully equipped gyms, tennis courts, and socialising areas. As previously mentioned, because of its design and resort-like atmosphere, the property is commonly referred to as an "Italian-style" residence. The property has the unique quality of being within walking distance of the city while offering a sense of peace and privacy. Due to the property's convenience, high-quality finishes, and peaceful surroundings, 8 @ Woodleigh has remained a strong candidate for living. 8 @ Woodleigh is well-located for maximum ease and provides both public transport and major roads close by for its residents. It takes less than 4 minutes to reach the Woodleigh MRT from 8 @ Woodleigh. In addition to Woodleigh, Potong Pasir MRT Station (NE10) and Bartley MRT Station (CC12) are also close by and give residents access to a vast amount of Singapore's public transport system. 8 @ Woodleigh provides drivers with a direct link onto the Pan Island Expressway (PIE) and the Central Expressway (CTE) for smooth travelling to key areas, including the Central Business District and Orchard Road. 8 @ Woodleigh is located at the top spot in Singapore's District 13, at 6 Woodleigh Close. Architecturally, the development rises up to 15 storeys, giving it a strong vertical presence within the Bidadari–Woodleigh neighbourhood. : 8 @ Woodleigh : Condominium : 13 : - 99-year Leasehold : 330 residential units 8 @ Woodleigh is meticulously designed to offer a host of facilities that cater to various lifestyle needs, creating a holistic living environment. The development features: A lap pool A spa pool and jacuzzi A pool deck A steam bath or steam room A gymnasium room A tennis court A fitness corner BBQ pits or BBQ area A clubhouse A function room or multi-purpose hall A pavilion A basement car park 24-hour security These amenities are thoughtfully curated to provide opportunities for relaxation, fitness, and social interaction among residents, creating a tranquil atmosphere where modern living coexists with nature. Families residing in 8 @ Woodleigh benefit from proximity to several educational institutions, including: Cedar Girls’ Secondary School Saint Andrew’s Secondary School St Andrew’s Junior School Together, these nearby schools make 8 @ Woodleigh a convenient and attractive choice for families with children at different stages of their education. 8 @ Woodleigh is surrounded by a diverse range of culinary delights, including: - The Woodleigh Mall's restaurants (Brewerkz, Bukchon Korean, Ju Xiang Ge Hunan Cuisine) Woodleigh Village Hawker Centre Geylang East Food Centre Cafe Football It means residents always have plenty of nearby food options, whether they want a quick meal or a relaxed dining experience. Residents have access to various medical facilities, such as: Parkway MediCentre @ The Woodleigh Mall Raffles Medical at The Woodleigh Mall Our Woodleigh Family Clinic (Bidadari/ Bartley) Together, these clinics provide convenient everyday healthcare just minutes from home. Convenience is further enhanced with supermarkets nearby, including: FairPrice Finest The Woodleigh Mall Sheng Siong Supermarket (Potong Pasir Community Club) Prime Supermarket These options make everyday grocery shopping quick and convenient. With its beautiful landscaping and attractively designed communal areas, the development's overall look and feel is both urban and peaceful. The layout is planned to maximise privacy for residents while encouraging natural ventilation and greenery between the blocks. The site is also positioned within walking distance of Woodleigh MRT and The Woodleigh Mall, further enhancing daily convenience and long-term liveability. : One - to four-bedroom homes, ranging from: One bedroom: 398 - 560 sqft Two bedrooms: 829 - 1,163 sqft Three bedrooms: 958 - 1,453 sqft Four bedrooms: 1,378 sqft This well-rounded mix of unit sizes and layouts makes 8 @ Woodleigh suitable for everyone from singles to growing families. 8 @ Woodleigh is a product of Frasers Centrepoint / FCL Homes, a successful partnership with long-standing ties to the Singapore real estate market. As part of Frasers Property, Frasers Centrepoint Limited is an internationally recognised Property Developer and operates in the Residential, Retail, Commercial and Hospitality sectors around the world. 8 @ Woodleigh is surrounded by several notable residential developments that add to the appeal of the surrounding neighbourhood. Sky Eden @ Bedok Parc Greenwich The Orie Together, these nearby projects enhance the area’s liveability and reinforce its attractiveness as a well-connected residential enclave. 8 @ Woodleigh is located near several established residential developments that enhance the character and appeal of the neighbourhood. The Poiz Residences The Venue Residences The Tre Ver These nearby projects contribute to a well-connected and desirable residential environment around 8 @ Woodleigh. 8 @ Woodleigh brings together location, lifestyle, and long-term value in a way few District 13 developments can. With Woodleigh MRT just minutes away, daily essentials at The Woodleigh Mall, reputable schools nearby, and a full suite of resort-style facilities within the estate, it offers a living experience that is both convenient and calm. To learn more about available units at 8 @ Woodleigh, visit the PropertyGuru sales and rental pages for the latest listings.
View project details














