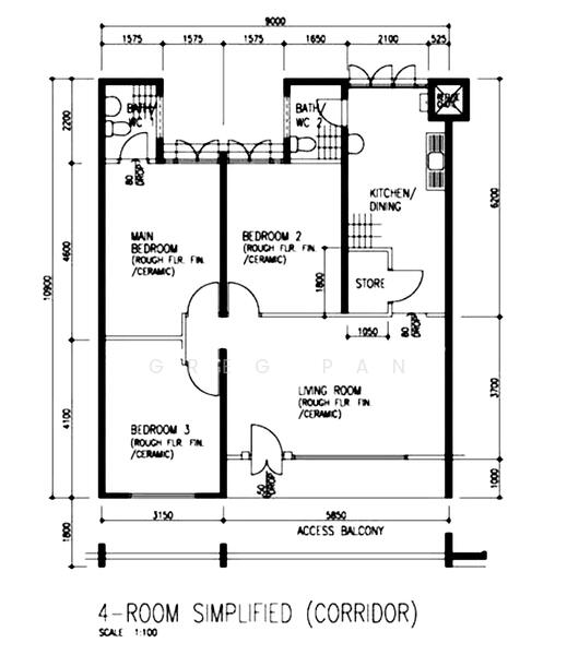
289 HDB Flats for Sale - Minimum Floor Area 750 Sqft near Xishan Primary School