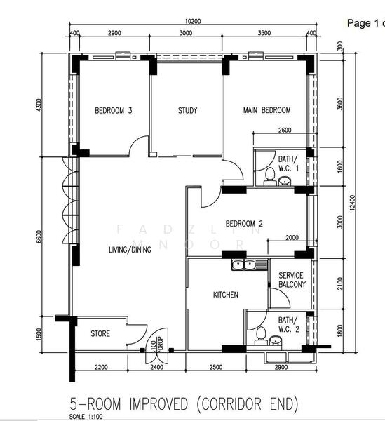
1 HDB Flat for Sale - 4 Bedrooms at 749 Pasir Ris Street 71
Map View
We’ve shown you all the matches
Almost there!
Refining your recommendations.
This may take a few seconds...
749 Pasir Ris Street 71
749 Pasir Ris Street 71 510749(D18) Pasir Ris / Tampines
Summary
749 Pasir Ris Street 71
Read more
Project details
TypeHDB
PriceS$ 659K - 780K
Completion year1995
Tenure99-year Leasehold
No. of blocks1
No. of floors16
DeveloperHousing & Development Board (HDB)
Explore PropertyGuru
Properties by ownership








