1 HDB Flat for Sale - 4 Bedrooms at 226A Sumang Lane
Map View
We’ve shown you all the matches
Almost there!
Refining your recommendations.
This may take a few seconds...
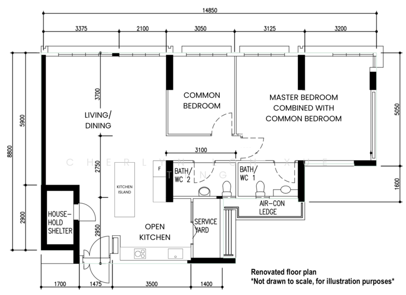
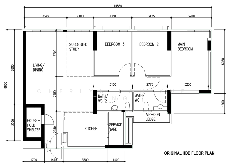
226A Sumang Lane
226A Sumang Lane 821226(D19) Hougang / Punggol / Sengkang
Summary
226A HDB The Verandah @ Matilda
Read more
Project details
TypeHDB
PriceS$ 590K - 790K
Completion year2016
Tenure99-year Leasehold
No. of blocks1
No. of floors17
Total units96
Top facilities
24 hours security
Children's playground
Covered car park
Fitness corner
DeveloperHousing & Development Board (HDB)
Explore PropertyGuru
Properties by ownership




















