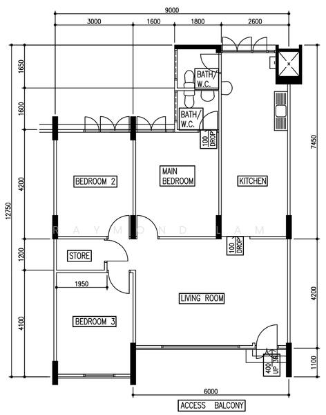
1 HDB Flat for Sale - 3 Bedrooms at 218 Serangoon Avenue 4
Map View
We’ve shown you all the matches
Almost there!
Refining your recommendations.
This may take a few seconds...
218 Serangoon Avenue 4
218 Serangoon Avenue 4 550218(D19) Hougang / Punggol / Sengkang
Summary
218 Serangoon Avenue 4
Read more
Project details
TypeHDB
PriceS$ 530K - 628K
Completion year1984
Tenure99-year Leasehold
No. of blocks1
No. of floors12
DeveloperHousing & Development Board (HDB)
Explore PropertyGuru
Properties by ownership











