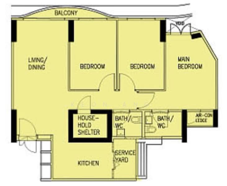
1 HDB Flat for Rent - 3 Bedrooms at 310A Punggol Walk
Map View
We’ve shown you all the matches
Almost there!
Refining your recommendations.
This may take a few seconds...
310A Punggol Walk
310A Punggol Walk 821310(D19) Hougang / Punggol / Sengkang
Summary
310A Punggol Walk
Read more
Project details
TypeHDB
PriceS$ 950 - 3.6K
Completion year2015
Tenure99-year Leasehold
No. of blocks1
No. of floors17
Top facilities
Car park
DeveloperHousing & Development Board (HDB)














