Park Nova is a luxury development located in District 10. Aside from its freehold status, the development also offers super spacious units and easy access to MRT stations and nearby amenities.
Updated 21/10/2016: The prices for The Venue Residences have been updated in the Price Analysis section below.
City Developments Limited (CDL) has long held a foothold in the property industry since 1963. It has developed more than 36,000 luxurious homes and owns close to 7.2 million square feet of commercial, retail, residential and hotel space locally and globally.
Project Name: The Venue Residences/Venue Shoppes
Address: Tai Thong Crescent
Type: Mixed development
Tenure: 99-year leasehold
District: 13
Configuration: 266 Residential/28 Commercial
Unit type: 24, 1-bedroom units (495 – 753 sqft)
120, 2-bedroom units (840 – 1,163 sqft)
86, 3-bedroom units (1,130 – 1,378 sqft)
28, 4-bedroom units (1,238 sqft)
8, Penthouse units (1,948 – 2,142 sqft)
Land size: Approx. 88,268 sqft
Parking lots: 292 including 7 handicapped lots (Residential)
30 for retail owners and 80 for visitors & public (commercial)
Expected TOP: 6th Sept 2017
Project Details
As of now, the foundation building process for The Venue Residences is underway. The project looks about 20-30% complete and development is expected to ratchet up once the preliminary groundwork has concluded.
The showroom closed in March 2015 so currently, there are no means of getting a feel of the development outside of visiting the actual site or viewing pictures. However, CDL is planning to erect a sales gallery in the next month or two with 3D models.
As Potong Pasir’s first mixed development, Venue Residences is designed to look and feel like a luxury project. Its look and finishes are expected to be of a quality that is on par with a CBD residence, albeit one sitting on the city fringe.
Facilities: The Venue Residences boasts ‘resort-style facilities’ located on level 2 of the development with cute names like Champaka Grove and Origami Cabanas.
Some of the facilities are:
- Infinity pool
- Club house (function room, gymnasium, changing & steam rooms)
- Kids’ playground (trampoline, hopscotch & play net)
- Yoga patio
- BBQ alfresco dining
- Kids’ pool
- Origami boat sculpture
There are sky terrace facilities as well though located at different blocks and levels:
- Reading garden – Blk 6, Level 5
- Meditation Garden – Blk 6, Level 12
- Yoga Garden – Blk 12, Level 5
- Relaxation Garden – Blk 14, Level 12
Venue Shoppes: Perhaps the ones to benefit the most with the inclusion of modern shopping in the vicinity are the neighbouring landed property owners.
The shops (or Shoppes) are located on level 1 and will likely frame the perimeter of the entire development.
There are no brands established yet, however, with 23 restaurant units and five shop units to take up room in the development, it’s feasible to expect some popular franchises to set up there.
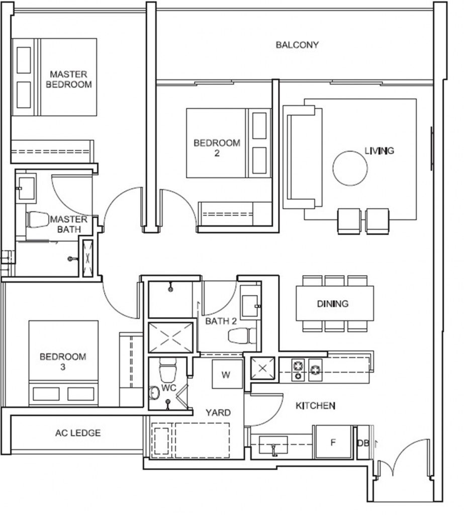
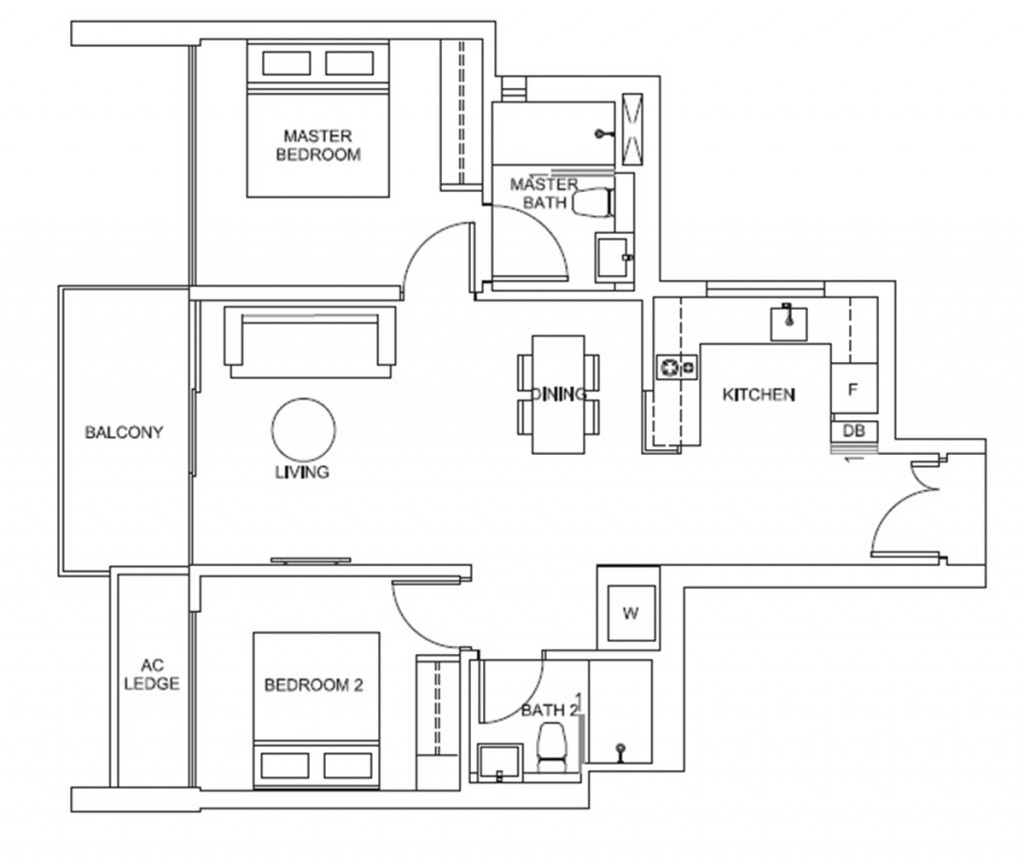
Units: Whether looking at the layout for a 1-bedroom unit, a 2-bedroom unit or even a 3-bedroom Dual Key unit, one thing is immediately identifiable; the layouts allow for a lot of usable space.
While many developments try to cram as much of whatever design or feature that is trending at the moment, The Venue Residences offer units that are of a smarter layout. Firstly, there are no bay windows taking up space.
It is true that bay windows add to the look and feel of a unit, but unless the unit is large, bay windows greatly reduce usable space.
Venue Residences cleverly excludes this and instead, offers much more usable space in all the areas, especially the kitchen and the yard.
The yard in many developments are tiny, cramped spaces where a single bed is forcibly inserted for the domestic helper. There’s barely any room to move around in.
Venue Residences attempts to offer a bigger and more comfortable yard, at least for 3-bedroom units and above where the bigger size allows for such things.
Top and bottom kitchen cabinets are provided and the counter are solid surface tops. Appliances like the kitchen hood, hob and oven are provided by Teka while the fridge is from Fisher & Paykel.
Every kitchen in all the units are further outfitted with the Hyflux Ultrafiltration System+.
Second and perhaps, most importantly, there are no bomb shelters taking up space in the kitchen and/or living rooms.
While bombs shelters are a novel idea, having them forced into every development regardless of the size it has to play with is terrible.
Just look at BTO flats, where in most cases the layout and smaller PSF makes the addition of a bomb shelter a wasteful addition to living space that could certainly do with a bigger kitchen or living room. And in situations where the layout is in question, a bomb shelter becomes a massive hurdle to plan around.
So, without bomb shelters, living rooms for 3-bedroom units and above are significantly more spacious. The dining room may hold a table for six or more people. Even 2-bedroom units offer a good chunk of practical space.
2-bedroom unit (78 sqm) floorplan from Venue Residences Sales Kit
The developer’s intent when designing and planning the layout and look of the units was to imbue each home with a private estate sort of feel.
It’s common in some developments to compromise on the space allocated to the kitchen, yard and common bedrooms so that the living room and master bedroom can be slightly bigger.
Venue Residences however, hopes to buckle that trend by ensuring that if you choose to live in a smaller unit, you’re not penalized for your choice.
Spaciousness is the word of the day and Venue Residences seems committed to providing all its units with a good dose of applicable space. All common bedrooms can fit a queen size bed, while master bedrooms can take a king size bed. This is standard fare for every development these days.
Of course, plans are subject to change so final verdict is reserved until the project is completed.
Lastly, ceiling height is about 2.9m which is just high enough to augment the space but low enough to elicit that cosy feel.
As is often the case, all 1-bedroom units have been fully sold out. Four out of eight penthouses have also been sold. As for commercial units, 11 are left, at the time of this writing.
Location
Etymology: Potong Pasir, which means ‘cut sand’ in Malay, earned its name from the sand-quarries that ruled the landscape from 1910 to 1937.
The first public housing estate – Potong Pasir Estate – began construction in 1982 with the first blocks completed in two years. Potong Pasir has seen rapid change across the decades with no end in sight.
Now, it is a mixture of landed, private property and HDB estates sitting along the city fringe. Upcoming large scale developments promise to change its look again, in the coming years.
Getting there: Venue Residences is actually well-connected despite the number of condominiums and mixed developments that crowd the narrow road.
Tai Thong Crescent, as it name implies, runs along a semi-circular shaped street, where roads and highways converge. It can be reached through MacPherson Road and Upper Serangoon Road (toward Bugis) via Upper Paya Lebar Road or Bartley Road.
It can also be accessed by Serangoon Road via Selegie Road if you’re coming from Bras Basah. The Pan Island Expressway (PIE), Kallang Expressway (KPE) and Central Expressway (CTE) interconnect and is approximately a five minute drive away.
The two closest highways – PIE and KPE – are next to the development while the CTE is slightly further away but accessible via the PIE. Getting to the CBD (Central Business District) takes roughly ten minutes of driving time on the CTE.
Because of its proximity to the highways, traffic can get bad during the mornings and evening rush hours.
Public transport is more convenient in this case as The Venue Residences is about a three minute walk, along the main road from Potong Pasir MRT station. Once you’re on street level, take the exit leading to Sennett Estate.
When you’re topside, with your back facing Sennett Residences and the bus stop in front of you, walk left.
If you keep on the path, you’ll pass by Saint Ritz, otherwise you can walk through the landed property and neighbourhood shops.
It is recommended to take the detour through Tai Thong Crescent though, since it can get rather hot with no sheltered walkway. Also, the path is not very wide. The Venue Residences in addition, takes up a huge plot of land so walking the full round can take anywhere between six to 10 minutes.
The surroundings: Until Venue Shoppes open for business, the nearest major shopping mall is two stations down at Nex in Serangoon. If you’ve braved the cavernous pathways of VivoCity and are determined for another retail challenge, then the labyrinthine fortress that is Nex Shopping Mall will keep you occupied for a few hours (days if you get lost).
Some of the shops in Nex are:
- Shaw theatres
- Fairprice Xtra 24 hours
- Food Republic
- H&M
- Uniqlo
- Courts
- Challenger
- Anytime Fitness 24 hour gym
Another mall, City Square – also a development by CDL – is at Farrer Park MRT. It is Singapore’s first eco-mall to be integrated into an urban park spanning 49,000 sqft called City Green.
Venue Residences Sales Kit
Some shops at City Square Mall are:
- Best Denki
- Golden Village
- Toys R’ Us
Additionally, several local shops that sell small-time groceries and tidbits line along Tai Thong Crescent, if you prefer to stick close to home.
For eateries, there are a few hawker centres, including the popular duck rice and (River South) prawn noodles along Tai Thong Crescent. There are also construction companies and spa centres nearby.
The entrance to The Venue Residences is directly in front of The River South Prawn Noodles hawker centre.
Surrounded by HDB estates, condominiums and landed property, The Venue Residences offers a nice juxtaposition of modern amenities and the existing, local ones.
There are also several schools – local and international in the area:
- Cedar Girls Secondary
- Cedar Primary
- St Andrew’s Secondary School and Junior College
The map above will give you a better idea of what schools there are and where they are in relation to the project.
Analysis
Updated 21/10/2016: These are the latest updated prices for The Venue Residences and Shoppes:
| Type | Floor Area (Starting from) | PSF | Starting Price |
| 2-Bedroom Suite | 861 | $1,307 | $1,126,000 |
| 3-Bedroom Suite | 1130 | $1,387 | $1,568,000 |
| 3-Bedroom Dual-Key Suite | 1378 | #1,343 | $1,851,000 |
| 4-Bedroom Suite | 1238 | $1,463 | $1,812,000 |
| Penthouse | 1984 | $1,430 | $2786,000 |
###
Tai Thong Crescent is about to be filled with thousands of new residents in the next five years with The Venue Residences and at least four more upcoming developments. Having that much competition will result in more than a few copycats, particularly where it concerns the price.
The two closest competitors would be Saint Ritz and Sennett Residences. The three developments sit in a row, along Upper Serangoon Road and within walking distance to Potong Pasir MRT station. With such close competition, prices and unit mixes are not expected to be wildly different.
For a comparison, we’ll look at the lowest transacted prices and PSF of 1 to 3-bedroom units with the size being led by Venue Residences.
| The Venue Residences (S$) | Sennett Residences (S$) | Saint Ritz (S$) |
| $744,000 (495 sqft) | $726,600 (484 sqft) | $761,201 (527 sqft) |
| $1,219,500 (840 sqft) | $1,207,000 (850 sqft) | $1,152,977 (883 sqft) |
| $1,555,995 (1,130 sqft) | $1,458,200 (1,130 sqft) | $1,393,850 (1,098 sqft) |
Unit sizes are more or less quite similar, with the Venue Residences prices being somewhere in the middle of the other two developments (with the exception of the 1,130 sqft unit) for clear reasons.
| The Venue Residences (PSF) | Sennett Residences (PSF) | Saint Ritz (PSF) |
| $1,503psf (495 sqft) | $1,500psf (484 sqft) | $1,443psf (527 sqft |
| $1,452psf (840 sqft) | $1,419psf (850 sqft) | $1,306psf (883 sqft) |
| $1,377psf (1,130 sqft) | $1,290psf (1,130 sqft) | $1,270psf (1,098 sqft) |
Its proximity to the highways and its status as a mixed development with 28 commercial units all but adds to its price. Yet it is not as close to the MRT station as Sennett Residences and Saint Ritz, though it is close enough for the distance to be negligible.
Saint Ritz has bigger 1-bedroom units and an all-round different aesthetics and style from the other two. Also, as it is sandwiched between Sennett Residences and The Venue Residences, it is closer Venue Residences and its 28 shops/restaurants.
However, for the larger units, the price differences start to grow wider. Bigger units tend to sell a lot slower than 1 or 2-bedroom units. Smaller units are commonly snapped up for investment purposes while bigger units tend to favour buyers with bigger families looking for a permanent or semi-permanent (five to 10 years) home.
Furthermore, as most buyers find the $1m to $1.5m range comfortable, The Venue Residences 1,130 sqft unit will be stretching the budget. The other two, especially Sennett Residences falls within that range.
Though from the prices alone, Saint Ritz feels like a better buy, partly because of its different aesthetics and style. Its part villa, part-condominium will appeal to buyers looking for something different, and since its sizing is more or less on par with the other two, its lower cost is significantly more attractive.
Renting out units for Saint Ritz might also be easier as it is closer to the MRT station than Venue Residences but its proximity to Venue Residences means residents get to enjoy the amenities Venue Residences will bring to the area without having to pay to live there.
But, The Venue Residences looks to have a better layout and overall more usable space than Saint Ritz. Its closeness to the highways and the fact that it is integrated with shops will always keep it competitive to its competition.
Venue Residences also has more units than Saint Ritz but is not as high density as Sennett Residences. Like its pricing, Venue Residences rests in the happy middle between the two.
Even 1-bedroom units appear to have high rental potential. Tai Thong Crescent has a median rental of 5% according to URA and based on that, a 1-bedroom unit can be rented out for as much as $7,000 minus whatever maintenance fees the landlord will have to add in.
This price owes much to the convenience of the MRT station and the assorted shops available within the development. However, with very close competitors in proximity, landlords may end up renting at lower prices to be attractive.
This, of course, remains to be seen. As it stands the projects with more units may find it difficult to achieve full occupancy on account of the numerous competition in the area.
All of this is speculation however as currently all three projects are being developed. A lot of factors will go into the final rental, chief among which is the promised redevelopment of Potong Pasir.
One big thing going for The Venue Residences though, is that its developer, CDL, is known for its attention to quality in all its projects. Market watchers would do well to consider this pedigree when deciding on which condo to purchase.
Summary
When CDL out bid seven others for the plot of land in Tai Thong Crescent, it did so at 11% above the second highest bid. For $245 million, it likely understood the raw potential of developing something good at this spot. On the flipside, this is also why units are priced as such.
Venue Residences units are shaping up to be bigger and more comfortable than its contemporaries but would also result in a higher quantum. The balance between these two factors have always been delicate.
This is to be expected, as it is mixed development, though the higher price point may make unit sales drag out a bit longer than it normally would. It is also easy to forget that as far as locations go, Venue Residences is at a focal point for many roads, including highways.
Getting to the CBD, city area and even Marina Bay Sands is quick when driving. Such convenience is typically factored into the price. What is often overlooked, is the traffic during rush hour. The roads along Sennett Residences toward Venue Residences are small enough to cause congestion during peak hours.
Fortunately, public transport is convenient, with bus stops and Potong Pasir MRT station situated within walking distance. From the MRT station, one can get to Orchard within 30 minutes or so, depending on the time of day and crowd levels.
While surrounded by existing condos like Woodsville and upcoming developments like Saint Ritz and Sennett Residences, Venue Residences stiffest and most relevant competition comes from Pavilion.
It is another mixed development located directly across the road from Sennett Residences, and just next to the MRT station exit. Pavilion TOPs a year after Venue Residences however so it may be able to tweak its pricing to be competitive.
But the real battle will be fought with the layout and design of the units.
Pricing aside, the existing residents are likely to benefit from this influx of modern amenities. While there are no big named grocery stores within walking distance, having modern restaurants and shops to compliment the more traditional and local ones is a good balance.
Landed property owners may have mixed feelings about the mixed development being so close to their homes though. What privacy they have been enjoying may slowly be eroded by the presence of a towering building expected to hold and attract huge crowds.
Still, it is a trade-off, between total peace and quiet and more amenities. There is a good chance that property prices will appreciate further given the new blood being injected into Tai Thong Crescent. Already, there are plans for three new HDB projects in the vicinity; Bidadari, Tampines North and Punggol Matilda.
But Venue Residences will have to stand on its own.
















