illustration
We didn’t find anything this timeTry changing or removing some of the filters
Almost there!

Refining your recommendations.

This may take a few seconds...

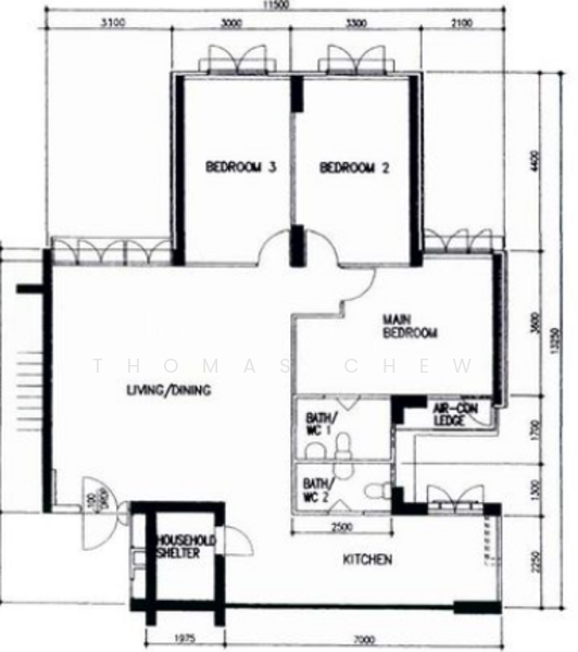
322B Anchorvale Drive
By Housing & Development Board (HDB)
No ratings yet

Project details
Type
HDB
Completion year
2000
Tenure
99-year Leasehold
No. of blocks
3
No. of floors
15

View project