1 HDB Flat for Rent - 2 Bedrooms at 783 Yishun Ring Road
Map View
We’ve shown you all the matches
Almost there!
Refining your recommendations.
This may take a few seconds...

783 Yishun Ring Road
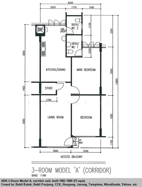
783 Yishun Ring Road 760783(D27) Sembawang / Yishun
Summary
783 Yishun Ring Road
Read more
Project details
TypeHDB
Completion year1987
Tenure99-year Leasehold
No. of blocks1
No. of floors12
Top facilities
Car park
DeveloperHousing & Development Board (HDB)