• Christopher Chitty
  • 26 May 2016

City Developments Limited (CDL) has long held a foothold in the property industry since 1963. It has developed more than 36,000 luxurious homes and owns close to 7.2 million square feet of commercial, retail, residential and hotel space locally and globally.

Project Name: Coco Palms

Address: 15 Pasir Ris Grove, 518142

Type: condominium

Site area: Approx. 446,857 sqft

Tenure: 99 years

District: 18

Configuration: 944 units, 6 shops in 12 towers of 12 & 16 storeys

Unit types: 137, 1BR units (463 – 624 sqft)

249, 2BR units (743 – 1,195 sqft)

228, 3BR units (904 – 1,249 sqft)

69, 3BR suites (1,098 – 1,432 sqft)

71, 4BR units (1,259 – 1,668 sqft)

87, 4BR suites (1,378 – 1,722 sqft)

29, 3BR Dual Key (1,152 – 1,561 sqft)

24, 4BR Dual Key (1,464 – 1,475 sqft)

33, 5BR units (1,744 – 2,142 sqft)

17, Penthouse units (1,744 – 3,111 sqft)

6, Retail shops (603 – 1,012 sqft)

Parking lots: 950 in 2 basement carparks

Expected TOP: 2019

Expected legal Completion: 2022

Project Details

With no showunits, show galleries and even fitted units to entice on the fence buyers, Coco Palms is very much in the wind now with its sales relying on its location, its large and impressive array of facilities and the pedigree of the joint developers involved.

Source: Coco Palms brochure

Source: Coco Palms brochure

The bulk of its sales (687 transacted) came in 2014, when prices started as low as $48,375,0 for a 462 sqft unit, as opposed to 2015 where only 75 were transacted throughout the year. In 2016, 11 has been transacted so far, with the latest at the time of this writing to be in mid-April. Still, with 773 units sold so far, Coco Palms can be considered a success, if not a resounding one.

Part of the reason for the slowdown are how the higher prices are tied directly with the shorter lease. The land was purchased in 2008 at a much lower price and has since been sat until now. By the time Coco Palms is completed and ready for occupation in 2019, residents would be adopting a unit with an 88-year lease remaining, instead of the traditional 99 years.

This is not a bad thing since people can still use their full CPF monies to help with payment unlike if the property had less than 60 years left. But the shorter lease does impact how people perceive the value of a unit at Coco Palms regardless of the convenience of the shopping mall/MRT station/Bus interchange combination.

Also, as the lease was extended in January 2008, bay windows and planters have yet to be exempted from the gross floor area calculations since this new policy would only be implemented in September of that same year. As a result, all the units come with bay windows and planters which as most buyers know, cannibalise useful space and make bedrooms smaller. In the larger units, the negative effects of bay windows and planters won’t be as apparent but for the smaller units, it is an unfortunate addition. The bay windows are also in the bathrooms which can be painful for some people needing more space there.

However, some smart renovation can turn the bay windows into something useful.

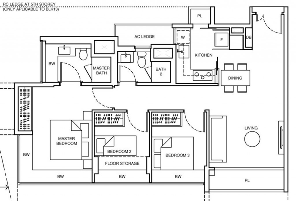
Bay windows and planters aside, the units are as what you’d expect. Most of the small units (B1 & B3) have open kitchens but the B2 type units come with a closed kitchen (via a sliding door), which is useful for heavier cooking. It is a small kitchen but it’s sufficient for one person to work in.

One of the more unique things about Coco Palms is the hidden Smart Storage space built into the floors/bay windows. It’s an unusual and interesting addition and is something that might be hyped as a feature to entice buyers. However, the need for it is directly tied to the existence of planters and bay windows.

3BR floorplan

3BR floorplan

With all said however, the layout of the units aren’t bad at all. The units are certainly liveable and the bedrooms are decent-sized. Even with the presence of bay windows, the existing space in the master bedrooms are well used. You can fit a queen size bed in them though that would prevent you from adding any other bigger furniture. The bay windows may in turn be used as a lounge area or a shelf for a TV. It might even double up as a computer/work table.

Smaller units (1-2BR) have been sold out as of the time when prices were slashed dramatically. This leaves the bigger 3BR, 4BR, 5BR and their Dual Key variants. As a result, the issues of bay windows and planters are mitigated by their bigger sizes.

Ultimately, the units here are functional in that they fall in line with overall expectations. They’re not tiny so as to be unliveable and there are several good moves made to the layouts that can offset the more questionable choices.

One final thing about Coco Palms; most of the stacks have a north-east/ south-west orientation which means south-western units will get some of the afternoon sun.

Show More

Location

Massive changes are coming to Pasir Ris Drive 1.

Gone is the hillock with dense trees blocking out all view of White Sands and bordered by coloured HDB estates. Now, flat land reigns from across White Sands up until where Drive 1 intersects with Drive 8, giving the rare feeling in Singapore that there’s more sky than buildings.

Pasir Ris Dr 8

Pasir Ris Dr 8

There are HDB flats all about, including Pasir Ris One – the only DBSS housing in Pasir Ris – which is directly across from White Sands. It’s an attractive bit of real estate but the high-rise blocks do make the area around White Sands look a bit darker. But being across the road from White Sands, the MRT station and bus interchange likely means higher rental/resale value.

Across White Sands

Pasir Ris One

The existing view (while it lasts) is nice as it gives this urbanizing and hilly district much needed empty space that avoids claustrophobia. And diagonally across of White Sands and in full view of the Pasir Ris MRT station, is CDL’s immense new venture; Coco Palms.

Once you’ve cleared White Sands, Coco Palms is the first thing that comes in view, despite there being HDB estates flanking it on either sides. The wider two-way roads along both streets helps ease traffic congestion and as a result, makes Coco Palms stand out even more.

Coco Palms

Coco Palms

Walking to Coco Palms from White Sands takes roughly eight minutes, including waiting time at the traffic junction. The path to and fro is a straight one and more convenient with the shortcut across the field, near the bus stop. With no shops to navigate around, the pathway is clear, outside of human traffic and will be relatively painless walking to and fro.

It is unsheltered however, so plan for scorching heat and/or wet weather accordingly.

Short cut from White Sands

Short cut from White Sands

The close proximity to White Sands is helpful for the residents as the mall is an excellent place to find food, grocery shop or just unwind at. There isn’t a cinema here as the closest would be at Downtown East along Pasir Ris Drive 3 and about a 15 minute drive away but it has the essentials. That the mall is connected with the MRT station and a bus interchange is doubly useful.

When the cross island line is developed, getting to places like Tampines West and Bedok Reservoir will be easier.

However, given the several developments (current and upcoming) here, over-crowding will be a prominent issue, especially during peak hours at the train station. There are two bus stops (one on each side of Pasir Ris Dr 1) if you’re partial toward taking the train.

Bus stop along Coco Palms Pasir Ris Dr 1

Bus stop along Coco Palms Pasir Ris Dr 1

On Coco Palm’s side, there are buses 403 (Pasir Ris Interchange), 53 (Bishan Interchange), 518 (Pasir Ris Interchange), 89 (Hougang Central Interchange), 81 (Tampines Interchange), 109 (Serangoon Interchange), 3 (Punggol Temp Interchange) and 39 (Yishun Interchange).

Across the road via the overhead bridge and in front of HDB block 571 are buses 518 (Pasir Ris Interchange/Tampines JC), 53 (Bishan Interchange), 81 (Tampines Interchange), 3 (Tampines Interchange), 89 (Hougang Central Interchange), 39 (Tampines Interchange), 109 (Changi Village Terrace), 15 (Pasir Ris Interchange), 403 (Pasir Ris Interchange), 518A (Opposite Marina Bay Sands MICE) and 538 (Fullerton Square).

Many of these buses are round trips with two buses – nos. 3 and 89 – that go toward Downtown East with travel time around 15 minutes, maybe less if the road is clear.

White Sands and Pasir Ris MRT station from Coco Palms overhead bridge

White Sands and Pasir Ris MRT station from Coco Palms overhead bridge

Alternatively, with several buses that end up at Tampines, you could go there to watch a movie. But taking the train one stop down to Tampines instead would be quicker and more efficient. Also not forgetting the bus interchange at White Sands, where there are even more buses that go to districts such as Marine Parade and further.

One additional incentive for potential residents is that Pasir Ris Interchange is the departure and arrival site for national service recruits stationed at Pulau Tekong for Basic Military Training (BMT). If your son is heading there, then for at least three months and on the weekends, it’ll be less painful for him to travel to and from the pick-up point which is a short walk away from Coco Palms.

Regardless of the method of transportation, Coco Palms is incredibly well-connected. Even getting on the TPE is as easy as driving out along Pasir Ris Drive 8 toward the Pasir Ris Flyover.

To TPE

To TPE

Going straight across the flyover instead of getting onto the TPE will get you to Tampines MRT station and the malls – Tampines 1 and Century Square – rather quickly. In fact, regardless of how easy it is to hop on a bus or walk to the train station, residents with personal vehicles stand to benefit more from living at Coco Palms.

The ease of mobility is further fuelled by the several schools like Elias Park Primary that are within 1km to the property. Numerous schools in 1-2km range of Coco Palms gives parents a wider option when enrolling their children.

But while Coco Palms is well-connected, due to Pasir Ris being in the extreme part of the north-east, travelling to other parts of the island, even central, can take more time. Ultimately, it’s an incredibly small price to pay, since with the TPE being so close by, getting to Changi, Punggol and beyond is uncomplicated if long.

Show More

Analysis

As mentioned in the previous category, 772 out of 944 units have been sold thus far. All 1 & 2BR units have been sold, leaving the bigger ones, including Dual Key units available.

Source: PropertyGuru, URA

Source: PropertyGuru, URA

The current graph alludes to a healthy history of transactions for Coco Palms, even with the sharp decline of buyers since the initial period of heavy discounts. That is to be expected when the units left are the bigger, more expensive ones. The proximity to the MRT station would demand that they are priced higher but the shorter lease is tempering quite strongly with public interest.

An 88-year lease however is not that bad a thing. If anything, it should balance the increase of price as a result of the nearness of the MRT station. Currently, based on the transactions, the approximate PSF of each unit type are as follows:

Source: PropertyGuru, URA

Source: PropertyGuru, URA

Penthouses cost the highest, with units mostly in the $2m – $2.5m range. 1BR units when they were available were transacted within $480 – $600K while 2BR units were in the $680K – $800K range. While these prices are arguably the standard for small units in most mass-marketed condominiums similar to Coco Palms, due to the nearby MRT station, their original prices would have been much higher. It is probable that the slightly larger 2BR units may even transact as high as $1M.

And as the land was bought cheaply, reducing the prices is certainly possible for the developers as they are already poised to churn a hefty profit.

But based on the glacial pace transactions have taken this year, a fire-sale may come in handy to expedite transactions. However, with four years left before Coco Palms is ready, there is plenty of time to stay the course and allow for transactions to continue normally. Interested parties may want to watch Coco Palms closely.

Rental

People expecting to buy for the purpose of rental should be wary. Pasir Ris Grove will be home to more than 4,000 units when adding the developers other projects like d’Nest to the overall population. Pasir Ris Grove will become overcrowded and the sheer number of units available will mean a price war between aspiring landlords.

According to URA, the rental yield is at a low 2.8% which means that for a 463 sqft 1BR unit, monthly rent has a base of $3,400. However, adhering to a strict rental amount may be detrimental due to the high number of units. Given the smaller rental pool here, landlords may have to rent at a lower cost just to be attractive while making sure that the unit on hand is well-maintained.

Ultimately, how high or low you can set your rental amount will depend on two things; number of landlords looking to rent out in Pasir Ris Grove and the demand for units. Realistically, given the high number of units, it may not be the best of decisions to buy solely to rent. Furthermore, Coco Palms is the last to be developed, meaning buyers from the other nearby properties would have had a significant head start.

And while currently, Coco Palms is the closest to the MRT station and thus sold at a premium as a result, in the near future this title will be taken over by two new residential properties, one of which will effectively hinder the unobstructed view of the MRT station now and in effect, be closer to the station.

But while their closeness may be desired, Coco Palms residents are well out of the noise from the train tracks.

For a more complete look at CDL’s properties in Pasir Ris Grove, check out our review of d’Nest.

Show More

Summary

Despite its flaws, Coco Palms is a decent new addition to Pasir Ris Grove. While renting out units here may not be the best idea, people who buy units for personal stay, especially if they want to live in Pasir Ris, won’t have much to complain. It is conveniently close to the MRT station, bus interchange and shopping mall. The cinema at Downtown East is but a few bus stops or short drive away, as are the chalets and resorts.

White Sands and Pasir Ris MRT station

White Sands and Pasir Ris MRT station

The noise from the train tracks won’t affect residents at Coco Palms while the distance makes it close enough to walk to comfortably. The many nearby schools also makes it convenient for parents. The feeder buses servicing most of Pasir Ris makes travelling within the district simple enough.

Top accessories from Kohler for the bathroom which also includes Grohe mixer taps shows that units come packed with premium fittings. The Hyflux water purification unit in the kitchen is also a nice addition.

At this point, the high quantum and shorter lease are preventing people from jumping in. It is difficult to assuage perceived opinion that 88 years left is not a bad thing. Besides it is possible that Coco Palms may very well see their lease extended when the 88 years is up. Furthermore, 88 years is an extremely long time and given how often property buyers move from property to property, it’s something you should consider only if you’re determined to stay there permanently. The biggest issue is that the higher premium is attached to the unit despite the shorter lease, due to the proximity of the MRT station.

Source: Coco Palms brochure

Source: Coco Palms brochure

Overcrowding is inevitable but this is the same in almost every district in Singapore so if you have concerns about that, then quickly dismiss it; there’s little that can be done about this.

It is possible there may come be a sale in the future but it looks unlikely at this point so interested buyers need to make their own decisions. Coco Palms is hardly a bad buy but it has a powerful reason to cause wariness. If you can deal with the (slightly) shorter lease and do not mind paying a higher price for convenience in an excellent area, then Coco Palms won’t disappoint.

Show More
Eric Wong

Christopher Chitty

"I read, I write, I lift. I am content"