163 Ang Mo Kio Avenue 4 - 1 Units for Sale
Map View
We’ve shown you all the matches
Almost there!
Refining your recommendations.
This may take a few seconds...
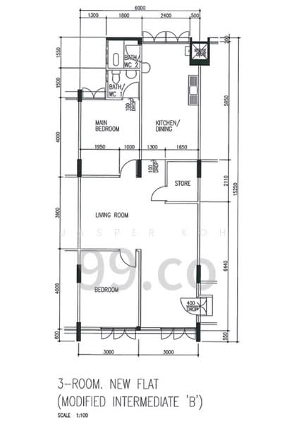
163 Ang Mo Kio Avenue 4
163 Ang Mo Kio Avenue 4 560163(D20) Ang Mo Kio / Bishan / Thomson
Summary
163 Ang Mo Kio Avenue 4
Read more
Project details
TypeHDB
PriceS$ 600K - 6M
Completion year1981
Tenure99-year Leasehold
No. of blocks1
No. of floors4
DeveloperHousing & Development Board (HDB)
Explore PropertyGuru
Properties by ownership











