154B Bedok South Road - 2 Units for Sale
Refining your recommendations.
This may take a few seconds...
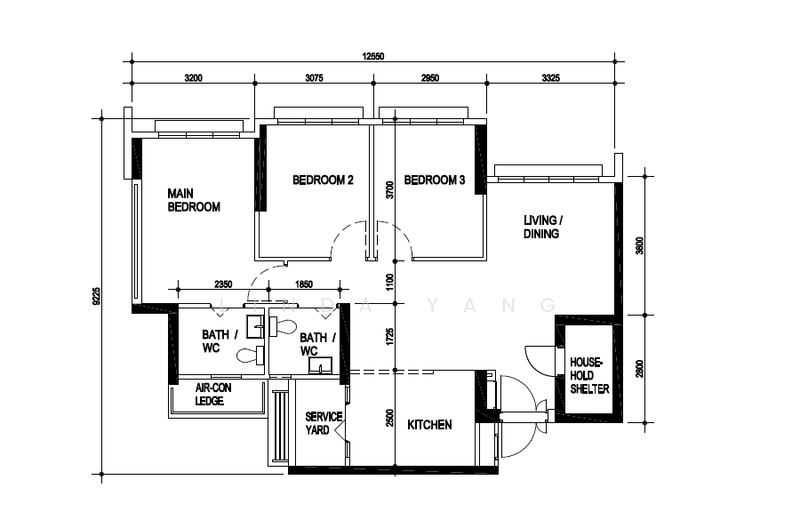
154B Bedok South Road is an upcoming 99-year leasehold HDB flat at Bedok South Horizon in Bedok. Bedok South Horizon enjoys proximity to popular schools with the possibility of priority admission. It is also near the scenic East Coast Park (ECP) for those who enjoy leisure activities like cycling, jogging, and rollerblading. Once Bedok South MRT station on the Thomson-East Coast Line (TEL) begins operation by 2025, residents will be able to enjoy greater travel convenience. The new line will provide access to Marine Parade and the Central Area. As a new development in the mature estate of Bedok, 154B Bedok South Road comes with a fresh lease that is expected to start from 2022. Bedok South Horizon enjoys access to two MRT stations: the future Bedok South MRT station on the TEL and Tanah Merah MRT station on the East-West Line (EWL). Bedok South MRT station is just opposite Bedok South Horizon and beside Temasek Secondary School. There is an entrance at the edge of Bedok South Horizon along Upper East Coast Road for underground access. Tanah Merah MRT station is slightly further away but still conveniently located just six bus stops away. There are both private and public preschools available around Bedok South Horizon. The private preschool options include Sunflower Preschool, Alphabet Playhouse @ East Coast, Wharton Preschool East Coast Centre, and Star Tots Playgroup. For public preschool, there are options like PCF Sparkletots in the neighbourhood. Bedok South Horizon is conveniently located just next to Temasek Primary School, which is a popular school in the neighbourhood. This means that future residents can apply for priority admission in the primary one registration. In addition, Temasek Primary School is affiliated with Temasek Secondary School, which is just diagonally opposite Temasek Primary School. General practitioner clinics can be found in the neighbourhood around Bedok South Horizon such as 58 New Upper Changi Road and Bedok Town Centre. For subsidised healthcare, it will be slightly further as SingHealth Polyclinic is located at Heartbeat@Bedok. The shopping malls (Bedok Mall and Bedok Point) near 154B Bedok South Road are located at Bedok Town Centre. Bedok Town Centre is also where you can find several neighbourhood-level shops and supermarkets. Neighbourhood-level shops can also be found at the void decks of blocks around 154B Bedok South Road for groceries and daily necessities. Several coffee shops and minimarts are located around 154B Bedok South Road and the neighbouring blocks. For example, affordable food fare can be found at 168 Bedok South Road and 69 Bedok South Avenue 3. If you want more food options, 58 New Upper Changi Market & Hawker Centre is located 15 minutes away by foot. The popular hawker centre is home to famous food stalls like 58 Minced Meat Mee and Bei Chuan Ting Fish Soup. Located in the East Coast of Singapore, 154B Bedok South Road is just 700m away from ECP. This makes it convenient to visit the popular park for leisure and sporting activities like cycling, jogging, and skating. There are several schools around 154B Bedok South Road which are all under the SportsSG dual-use scheme. The scheme allows public use of school facilities like the soccer field and indoor sports hall for sports such as soccer, volleyball, basketball, and badminton. Moreover, the nearby Heartbeat@Bedok also has a gym, fitness studios, and after-work workout classes organised by the community club such as Zumba and yoga. Changi Business Park, dubbed the East’s Central Business District (CBD), is about 2km away from Bedok South Horizon. It is where multinational corporations such as IBM, Xilinx, Nestle, JP Morgan, Standard Chartered Bank, and DBS Bank operate their technology functions. Apart from being a tech hub, the Changi area is also known as a warehouse operating base for many logistics firms like DB Schenker, SF Express, DHL, and U-Freight. 154A Bedok South Road at Bedok South Horizon has 153 units in total with a mix of 2-room flexi (68 units) and 4-room (85 units) flats across 18 storeys.
DeveloperHousing & Development Board (HDB)





















