473 Choa Chu Kang Avenue 3 - 1 Units for Sale
Map View
We’ve shown you all the matches
Almost there!
Refining your recommendations.
This may take a few seconds...
473 Choa Chu Kang Avenue 3
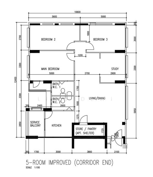
473 Choa Chu Kang Avenue 3 680473(D23) Dairy Farm / Bukit Panjang / Choa Chu Kang
Summary
473 Choa Chu Kang Avenue 3
Read more
Project details
TypeHDB
Completion year1999
Tenure99-year Leasehold
No. of blocks1
No. of floors15
Top facilities
Car park
DeveloperHousing & Development Board (HDB)
Explore PropertyGuru
Properties by ownership











