436929
S$ 2,050,000
Starting From3
Beds
3
Baths
1,399
sqft (floor)
S$ 1,465
psf (floor)
290 m (3 mins) from TE23 Tanjong Rhu MRT

Photos

Map View
About this property
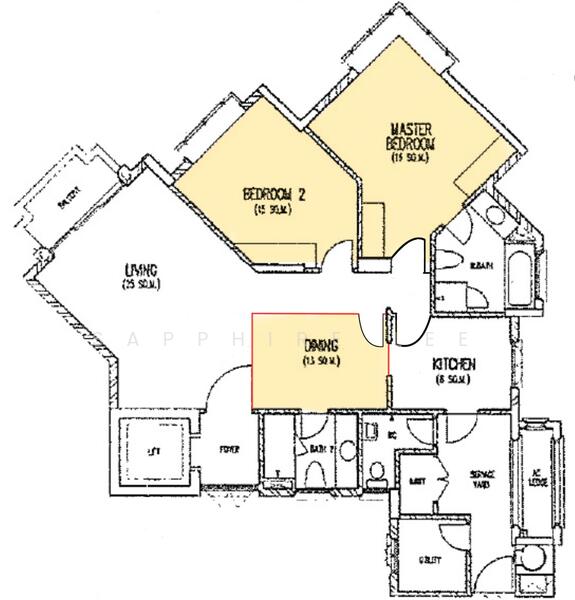
Rare 1399 sqft with private lift
Spacious 1,399 sqft, potential spacious 3bedroom with large living hall.
This rare 1,399 sqft residence offers exceptional space and versatility. Currently a 2-bedroom, the layout allows for an easy conversion into 3 bedrooms — such as adding a junior master suite in place of the dining area — while still retaining comfortable living zones.
Bright, airy interiors and well-proportioned rooms provide the kind of generous floor area that’s increasingly hard to find. Set in a serene, premium residential enclave with quick access to the CBD, nature parks, and waterfront leisure spots.
Call 9368.0505 to arrange for an exclusive viewing now!
This rare 1,399 sqft residence offers exceptional space and versatility. Currently a 2-bedroom, the layout allows for an easy conversion into 3 bedrooms — such as adding a junior master suite in place of the dining area — while still retaining comfortable living zones.
Bright, airy interiors and well-proportioned rooms provide the kind of generous floor area that’s increasingly hard to find. Set in a serene, premium residential enclave with quick access to the CBD, nature parks, and waterfront leisure spots.
Call 9368.0505 to arrange for an exclusive viewing now!
Affordability
Can I afford this property?
Tell us your monthly income and expenses to see if this home fits your budget.
Mortgage breakdown
Est. monthly repayment
S$ 0 / mo
S$ 0 Principal
S$ 0 Interest
Upfront costs
Total downpayment
S$ 0
Downpayment
S$ 0 Loan amount at 0% Loan-to-value
FAQs
The sale price of this unit at 436929 is S$ 2,050,000.
Current PSF at 436929 is about S$ 1,465.33 psf.
The estimated loan repayment is S$ 6,011 / mo.
436929 is located at East Coast / Marine Parade .
Floor size of this unit at 436929 is 1,399 sqft.
Explore other options in and around East Coast / Marine Parade
Based on the property criteria, you might be interested on the following
Condominium For Sale
Nearest MRT Stations





